Sustainable Architecture in Peru: A Model for Eco-friendly Design
Exploring the French Institute of Andean Studies' blend of sustainable architecture and traditional Peruvian construction techniques.
In the heart of Barranco, Peru, the French Institute of Andean Studies stands as a testament to sustainable architecture, blending traditional construction methods with modern design. This project, realized by Roman Bauer Arquitectos and ESARQUITECTURA Atelier, serves as a shining example of how eco-friendly principles can be integrated into architectural projects to address contemporary environmental challenges while respecting historical context.

The Concept of Sustainable Architecture
Sustainable architecture is a design philosophy that seeks to minimize the negative environmental impact of buildings by enhancing efficiency and moderation in the use of materials, energy, and development space. It's a concept that not only preserves our planet but also enriches our quality of life.


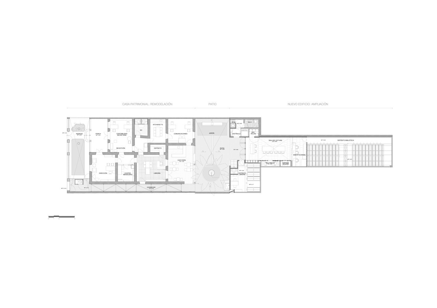
The Project: French Institute of Andean Studies
Located in Barranco, the cultural heart of Lima, the French Institute of Andean Studies (IFEA) is a pioneering project that marries traditional Peruvian building techniques with cutting-edge sustainable design. The project comprises two main structures: a renovated historic house that hosts administrative offices, a bookstore, and a cafeteria, and a new building designed to accommodate a library and research offices.


Design and Structure
The IFEA project is notable for its use of natural light, passive climatization, and local materials, which together create a space that is both environmentally responsible and deeply rooted in the local context. The library, with its double-height reading room and zenithal lighting, demonstrates a flexible design using sliding panels, allowing the space to transform as needed.


Traditional Techniques for Modern Challenges
One of the project's most remarkable aspects is its use of improved traditional construction techniques, such as the "quincha" method, which involves intertwined caña brava covered in mud. This technique not only utilizes local materials but also offers excellent thermal insulation and seismic resilience, critical in Peru's climate and geographical context.


Environmental Sustainability
The project's commitment to sustainability extends beyond its construction methods. The design incorporates passive climatization strategies, understanding the solar path and local winds to create comfortable indoor environments without relying heavily on mechanical systems. Materials such as caña, mud, stone, and wood were chosen for their low environmental impact and ability to blend with the historical surroundings.


Awards and Recognition
The French Institute of Andean Studies has received national and international acclaim, including the National Hexagon Steel Award at the XIX Biennial of Peruvian Architecture 2022. It was also a finalist at the Quito Biennial 2022 and for the Oscar Niemeyer Award 2022, underscoring its significance as a model for sustainable architectural design.


The French Institute of Andean Studies exemplifies how sustainable architecture can preserve cultural heritage while addressing modern environmental challenges. By integrating traditional techniques with innovative design, the project offers valuable lessons for architects, planners, and communities worldwide, proving that sustainability and cultural relevance can go hand in hand in the pursuit of a more sustainable future.


All photographs are work of JAG Studio,Juan Solano
Popular Articles
Popular articles from the community
Atelier Macri Concept Store Interior Design by CASE-REAL
Atelier Macri store features a "ko" counter, walnut wood details, cork displays, blending retail, gallery, and seamless customer experiences.
Inverted Architecture Installation by Studio Link-Arc: Exploring the Intersection of Architecture and Living Organisms
Inverted Architecture Installation by Studio Link-Arc blends mycelium, sustainability, inverted design, ecological cycles, and urban adaptive architecture in Shenzhen.
Louis Malle Cinema: A Limestone Cultural Landmark Revitalizing Community Life in Prayssac
Limestone cinema extension with public forecourt, blending heritage and modern design to create flexible cultural spaces and strengthen community interaction.
On the Brooks House by Monsoon Collective – A Contemporary Kerala Home Rooted in Tradition
Kerala home blending tradition and modernity with water-inspired design, brick architecture, courtyard planning, and sustainable rainwater harvesting strategies.
Similar Reads
You might also enjoy these articles
Top 15 Architecture Competitions to Enter in 2026
From student-friendly idea competitions to prestigious international awards, here are the best architecture competitions open for entries in 2026. Updated regularly.
DIY & Engineering in Computational Design : Enter the BeeGraphy Design Awards
Showcase Your Creativity with Computational Design and Open Source Projects

Innovative Design Solutions: Award-Winning Projects from Recent Architecture Competitions
Exploring award-winning architectural projects shaping the future of design, sustainability, and community.
Explore Architecture Competitions
Discover active competitions in this discipline
The International Standard for Design Portfolios
The Global Benchmark for Architecture Dissertation Awards
The Global Benchmark for Graduation Excellence
Challenge to design public laboratory
Comments (0)
Please login or sign up to add comments
No comments yet. Be the first to comment!