Three Courtyards House: Nested Brick Thresholds and Spatial Depth
Brick-wrapped Argentine residence organized around three courtyards, integrating thickened walls, layered thresholds, and climate-responsive domestic architecture.
Three Courtyards by Balsa Crosetto Piazzi Completed in 2024 in Argentina, Three Courtyards House by Balsa Crosetto Piazzi is a refined exploration of spatial sequencing, material density, and climatic intelligence. Spanning approximately 2,906 square feet (270 m²), the residence reinterprets the courtyard typology through a contemporary lens, transforming a seemingly introverted brick façade into a layered domestic landscape organized around three open-air voids.

At its core, the project investigates how architecture can unfold gradually—how enclosure and openness can coexist, and how the thickness of a wall can become an inhabitable condition rather than a simple boundary. The result is a house that feels simultaneously intimate and expansive, structured by a nested spatial logic reminiscent of a matryoshka doll.
The Austere Brick Façade as Urban Gesture
From the street, the house presents itself as a long, austere brick wall. This gesture is deliberate. Instead of exposing interior life to the public realm, the architects establish a strong perimeter that evokes the sensation of entering a courtyard before even crossing the threshold.

The façade does not announce domesticity in a conventional way. There are no overt windows or decorative elements. Instead, the consistent masonry surface suggests solidity and privacy. Yet, paradoxically, it also implies openness. The wall reads less like a defensive barrier and more like the outer enclosure of a larger courtyard system.
This ambiguity defines the project’s conceptual framework. The street-facing wall compresses perception, creating anticipation. It sets up a spatial narrative that unfolds only once the boundary is crossed.

The Threshold and the Disappearing Gate
Upon passing through the initial brick envelope, the house begins to reveal itself. Immediately behind a sliding metal gate lies the central gallery—a flexible, open space that anchors the project.
The gate itself is a key architectural element. Serving as the main entrance, it slides seamlessly into the thickness of the wall, disappearing completely when open. This mechanism dissolves the boundary between exterior and interior, transforming the gallery into an extension of the street courtyard. When closed, the gate restores privacy without disrupting the architectural coherence.

The central gallery functions as a dynamic intermediary zone. It accommodates the grill—an essential feature in Argentine domestic culture—while also acting as circulation spine and social gathering space. Rather than isolating the grill in a backyard, the architects integrate it into the spatial heart of the house.
This decision reinforces the social dimension of the project. The gallery becomes a place of encounter, bridging public and private life, while maintaining climatic comfort through shade and cross-ventilation.

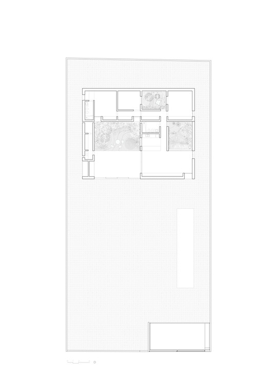
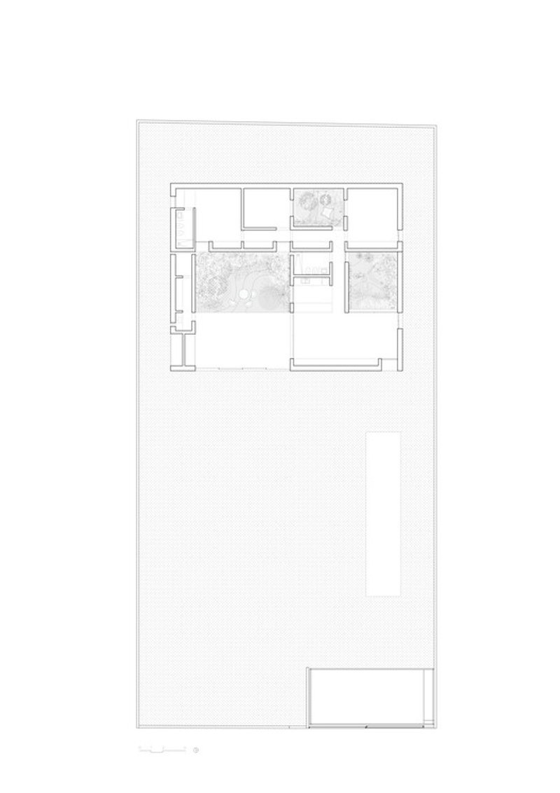
Three Courtyards: A Gradual Unfolding
The defining feature of the house is its organization around three courtyards. Rather than relying on a single central patio, the architects distribute open space throughout the plan, creating a sequence of spatial episodes that unfold gradually.
Each courtyard has its own character and orientation. Together, they orchestrate light, ventilation, and visual continuity. Movement through the house becomes a choreographed experience—moments of compression give way to expansion, solid surfaces open to sky, and views align diagonally across spaces.

This layered arrangement generates depth beyond the physical dimensions of the site. Spaces are not revealed all at once; instead, they emerge through carefully framed perspectives. The interplay between solid and void creates rhythm, guiding inhabitants through the domestic landscape.
The courtyards also perform essential environmental functions. They introduce natural light into the core of the house, enable cross-ventilation, and create shaded outdoor rooms protected from harsh sun exposure. In doing so, they reinforce the project’s commitment to passive climatic strategies.

Thickened Walls as Functional Architecture
A central conceptual move in Three Courtyards House is the transformation of walls into thickened architectural elements. Here, walls are not thin partitions but volumetric components endowed with programmatic and environmental roles.
At times, these walls become grills or storage units. In other moments, they act as window frames, niches, or built-in furniture. Their depth allows functions to be embedded within the architecture itself, reducing the need for applied elements.

This strategy enhances thermal performance. The mass of the brick absorbs and moderates heat, keeping interiors cool during the summer and stabilizing indoor temperatures throughout the year. The walls act as thermal buffers, shielding living spaces from direct solar gain while allowing filtered light to penetrate.
Beyond performance, the thickness of the walls enriches spatial experience. Deep reveals create shadows that shift throughout the day. Openings feel carved rather than applied. The architecture acquires a sculptural quality, defined by mass and void rather than decoration.

Material Consistency and Construction Logic
Brick is the dominant material language of the project. Its consistent use establishes continuity between façade, courtyard walls, and interior surfaces. The masonry conveys permanence and tactile richness while anchoring the house within its local context.
However, the material is not static. In certain areas, brick surfaces remain solid and opaque. Elsewhere, they become permeable or articulated, allowing light and air to pass through. The interplay between heavy masonry and lightweight metal elements—such as the sliding gate—creates a dialogue between solidity and movement.

The restrained palette emphasizes construction logic. Rather than relying on ornamental gestures, the architects allow proportion, texture, and shadow to define character. The simplicity of materials reinforces the clarity of spatial organization.
Climate-Responsive Domesticity
The courtyard typology has long been associated with climatic intelligence. In this project, it is reinterpreted for contemporary living. The distributed courtyards function as thermal moderators, enabling cross-ventilation and natural cooling.

By fragmenting open space into three distinct voids, the architects create microclimates within the house. Each courtyard captures light differently depending on time of day and orientation. Morning light animates one zone, while afternoon shade cools another.
The thick brick envelope further enhances environmental performance. Its mass absorbs heat during the day and releases it gradually at night, stabilizing indoor temperatures. Combined with shaded galleries and transitional spaces, this passive strategy reduces reliance on mechanical systems while maintaining comfort.

Spatial Narrative and Everyday Life
Beyond formal and environmental considerations, Three Courtyards House is fundamentally about domestic experience. The sequence of courtyards creates varied atmospheres for gathering, retreat, and contemplation.
The central gallery acts as the communal heart of the home. Surrounding rooms maintain visual connections with outdoor spaces, ensuring that nature is always present. Private areas are positioned to balance intimacy with openness, benefiting from light and ventilation without sacrificing privacy.

Daily routines—entering, cooking, relaxing—become part of a spatial narrative shaped by thresholds and layered perspectives. The house transforms movement into discovery, encouraging occupants to engage actively with their environment.
Reinterpreting a Timeless Typology
The courtyard house is one of the oldest residential typologies in architectural history. In Argentina, it has traditionally provided privacy and climatic comfort within urban settings. Three Courtyards House reimagines this typology through fragmentation and layering.

Instead of centering the home around a single patio, the architects multiply the void. This decision enriches spatial complexity while preserving clarity. The house remains legible, yet its experiential depth exceeds its modest footprint.

By embracing thickness, sequencing, and climatic responsiveness, Balsa Crosetto Piazzi demonstrate how contemporary residential architecture can be rooted in tradition while addressing present-day needs. The project stands as a thoughtful meditation on enclosure and openness—on how walls can protect without isolating, and how courtyards can connect without exposing.
All the Photographs are works of Marcos Guiponi
Popular Articles
Popular articles from the community
Alton Cliff House: A Harmonious Retreat by f2a Architecture in Lake Country, Canada
Alton Cliff House blends corten steel, prefabrication, and sustainable design, creating a luxurious, energy-efficient retreat perched on Canadian cliffs.
Split House: A Compact Urban Home Blending Privacy, Light, and Flexible Living in Japan
Compact Japanese home featuring DOMA space, flexible café potential, passive lighting, privacy zoning, and sustainable urban living design.
Inverted Architecture Installation by Studio Link-Arc: Exploring the Intersection of Architecture and Living Organisms
Inverted Architecture Installation by Studio Link-Arc blends mycelium, sustainability, inverted design, ecological cycles, and urban adaptive architecture in Shenzhen.
Gads Hill Early Learning Center by JGMA: Adaptive Reuse Shaping Community-Focused Educational Architecture
Adaptive reuse transforms fragmented structure into vibrant early learning center with playful façade, natural light, and community-focused sustainable design.
Similar Reads
You might also enjoy these articles
Free Architecture Competitions You Can Enter Right Now
No entry fees, real prizes. Here are the best free architecture competitions open for submissions in 2026.
Top 15 Architecture Competitions to Enter in 2026
From student-friendly idea competitions to prestigious international awards, here are the best architecture competitions open for entries in 2026. Updated regularly.
DIY & Engineering in Computational Design : Enter the BeeGraphy Design Awards
Showcase Your Creativity with Computational Design and Open Source Projects

Innovative Design Solutions: Award-Winning Projects from Recent Architecture Competitions
Exploring award-winning architectural projects shaping the future of design, sustainability, and community.
Explore Architecture Competitions
Discover active competitions in this discipline
The International Standard for Design Portfolios
The Global Benchmark for Architecture Dissertation Awards
The Global Benchmark for Graduation Excellence
Challenge to reimagine the Iron Throne
Comments (0)
Please login or sign up to add comments
No comments yet. Be the first to comment!