Venceslau House: A Modern Concrete Design in São Paulo by Canoa Arquitetura
The Venceslau House showcases modern concrete design in São Paulo, combining privacy, space, and aesthetic beauty through innovative architecture.
Located in the Jardim Paulistano neighborhood of São Paulo, the Venceslau House designed by Canoa Arquitetura is a striking example of modern architecture. With a total area of 516 m² and completed in 2023, this residence stands out with its innovative use of concrete, strategic planning for privacy, and emphasis on maximizing outdoor space despite challenging urban regulations. The house exemplifies how thoughtful design can create a harmonious balance between functionality, privacy, and aesthetic beauty.




Addressing Urban Challenges with Strategic Design
The plot on which Venceslau House is situated comes with its own set of challenges: a narrow, flat terrain of just 12 meters in width, located within a conservation area that demands strict urban regulations. A primary concern was the clients' desire for a large lawn at the back of the property, which seemed impossible to achieve given the space limitations and surrounding buildings that offered little to no remarkable external qualities.



The design response was the creation of two reinforced concrete lateral walls that provided privacy while framing new perspectives of the space. These walls not only shield the interior from the neighboring properties but also allow for a fresh visual relationship with the garden and surrounding landscape, creating a sense of openness despite the constraints.



Innovative Use of Space and Layout
The upper floor of the Venceslau House consists of two separate blocks, each containing two bedrooms. These blocks are strategically placed to maximize sunlight exposure. The first block faces north and is equipped with retractable brise-soleils that allow for temperature control and privacy from the street. The second block is rotated 90° and positioned towards the western boundary, ensuring the bedrooms receive the soothing morning sun.



This clever configuration concentrates the house's built area in the center of the lot, leaving more space for the expansive lawn that spans the full width of the property. The strategic layout allows for a private, spacious backyard, which was a key request of the clients.


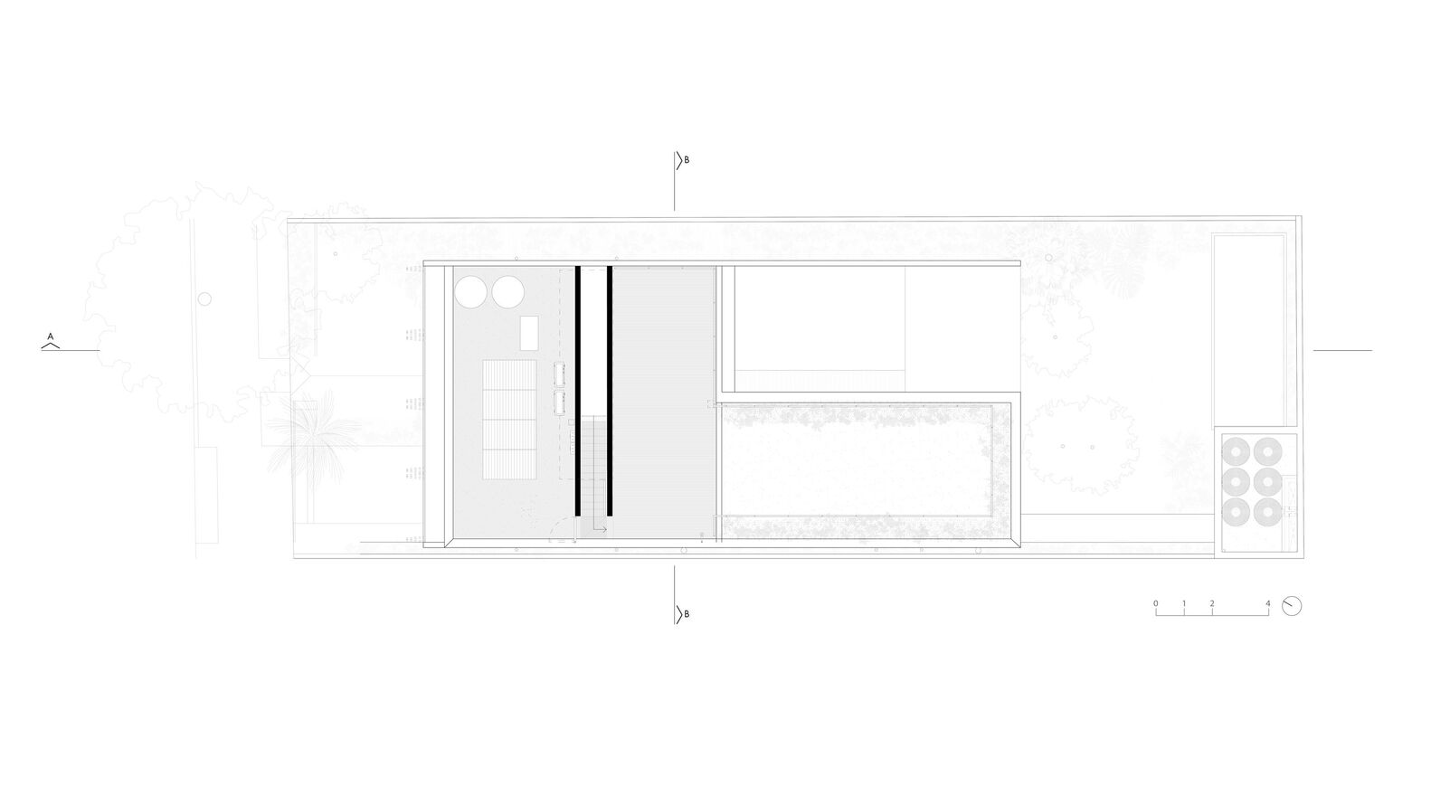
The Ground Floor: Open and Inviting
The ground floor is designed as an open, flexible area that hosts the social spaces, including the living room, dining room, kitchen, and barbecue areas. The layout features a double-volume space that connects the living room and the TV room on the first floor, creating a feeling of openness and allowing for a visual connection between different areas of the house.


A central skylight, positioned within the vertical circulation area, brings in natural light and highlights the central space of the floor plan. Large glass openings facing the south offer unobstructed views of the sky and stars while avoiding direct sunlight. This allows for a perfect blend of indoor and outdoor spaces, offering various configurations for the family to interact with the garden and enjoy different atmospheres throughout the day.


Concrete Structure as a Design Element
The concrete walls that frame the property play a significant role not only structurally but also in the aesthetic appeal of the Venceslau House. Elevated 1.5 meters from the ground, the walls ensure privacy from neighbors while allowing the family to enjoy the lush garden planted beside the property’s boundaries. The raw concrete surfaces are treated meticulously, with attention paid to the placement of plywood panels and the concreting process to avoid visible junctions, giving the concrete a refined, sophisticated appearance.


The concrete slabs and beams that support the structure are designed to be both functional and visually appealing. Supported by a series of central pillars, the house’s concrete elements appear to float, enhancing the sense of openness and integration with the surrounding landscape.



Basement and Roof: Maximizing Space and Views
The basement of the house is dedicated to technical and service facilities, providing essential functions while allowing for natural light and ventilation via a lowered garden. On the roof, a deck/solarium and garden area offer a private retreat with a panoramic view of the Jardins neighborhood and beyond. This top floor captures sunlight throughout the day, providing a tranquil escape for the family to enjoy.



The Venceslau House by Canoa Arquitetura is a brilliant example of how modern concrete design can address the challenges of urban living while creating a stylish, functional, and inviting home. By skillfully combining strategic use of space, thoughtful integration with the landscape, and a focus on privacy and openness, the design successfully meets the needs of the clients and transforms the limitations of the site into a unique architectural experience.



All Photographs are work of Ana Mello
Popular Articles
Popular articles from the community
Treehouse Apartment: A Warm Timber Interior Blending Craft, Play, and Contemporary Living
Warm timber apartment with integrated treehouse, combining natural materials, craftsmanship, and playful design to create a flexible, family-oriented living environment.
Flamboyant House by Juliana Camargo + Prumo Projetos
Modern Brazilian house integrating existing tree, pool, and volumes with glass, wood, and transitional spaces blending interior, exterior, and landscape seamlessly.
Louis Malle Cinema: A Limestone Cultural Landmark Revitalizing Community Life in Prayssac
Limestone cinema extension with public forecourt, blending heritage and modern design to create flexible cultural spaces and strengthen community interaction.
On the Brooks House by Monsoon Collective – A Contemporary Kerala Home Rooted in Tradition
Kerala home blending tradition and modernity with water-inspired design, brick architecture, courtyard planning, and sustainable rainwater harvesting strategies.
Similar Reads
You might also enjoy these articles
The Ken Roberts Memorial Delineation Competition (Krob)
As the most senior architectural drawing competition currently in operation anywhere in the world, it draws hundreds of entries each year, awarding the very best submissions in a series of medium-based categories.
Waterfront Redevelopment and Urban Revitalization in Mumbai: Forging a New Dawn for Darukhana
A transformative waterfront redevelopment project reimagining Darukhana’s shipbreaking heritage into an inclusive urban future.
OUT-OF-MAP: A Call for Postcards on Feminist Narratives of Public Space
Rhizoma Design and Research Lab invites artists, designers, architects, researchers, and students to reflect on how feminist perspectives can reshape public space. Selected works will be exhibited in Barcelona, October 2026. Submissions open until 15 April 2026.
Documentation Work on Buddhist Wooden Temple
Architectural syncretism and cultural hybridity: A comparative study of the Buddhist temples in Chattogram Hill tracks
Explore Architecture Competitions
Discover active competitions in this discipline
The International Standard for Design Portfolios
The Global Benchmark for Architecture Dissertation Awards
The Global Benchmark for Graduation Excellence
Challenge to reimagine the Iron Throne
Comments (0)
Please login or sign up to add comments
No comments yet. Be the first to comment!