1516 W Carroll Ave Adaptive Reuse Building: A Modern Transformation of a Historic Warehouse
Explore the 1516 W Carroll Ave Adaptive Reuse Building, a historic warehouse reimagined into a sustainable, multifunctional urban hub in Chicago.
The 1516 W Carroll Ave Adaptive Reuse Building is a striking example of how thoughtful architecture can breathe new life into historic structures. Designed collaboratively by Bureau Gemmell and New Office, this 1920s warehouse in Chicago has been transformed into a multifunctional hub, blending commercial, culinary, and community spaces. Completed in 2024, the adaptive reuse project harmoniously integrates modern functionality with the raw authenticity of the building's original structure, creating a vibrant, sustainable space for diverse tenants and programs.



Historical Context and Vision
Originally constructed in the 1920s, the warehouse and attached office building at 1516 W Carroll Ave have undergone various transformations over the decades. This latest iteration marks the second collaboration between Bureau Gemmell and the building's client, with consulting architect New Office joining for this phase. The design preserves the building's industrial heritage while adapting it to meet contemporary needs, reflecting a commitment to sustainability, innovation, and community engagement.


The project adds a second floor within the existing high-bay warehouse, modernizing the structure to accommodate new tenants while retaining its historic character. By exposing original architectural and structural elements, the design celebrates the building's history, allowing different eras of construction to coexist seamlessly.

Multifunctional Spaces and Programs
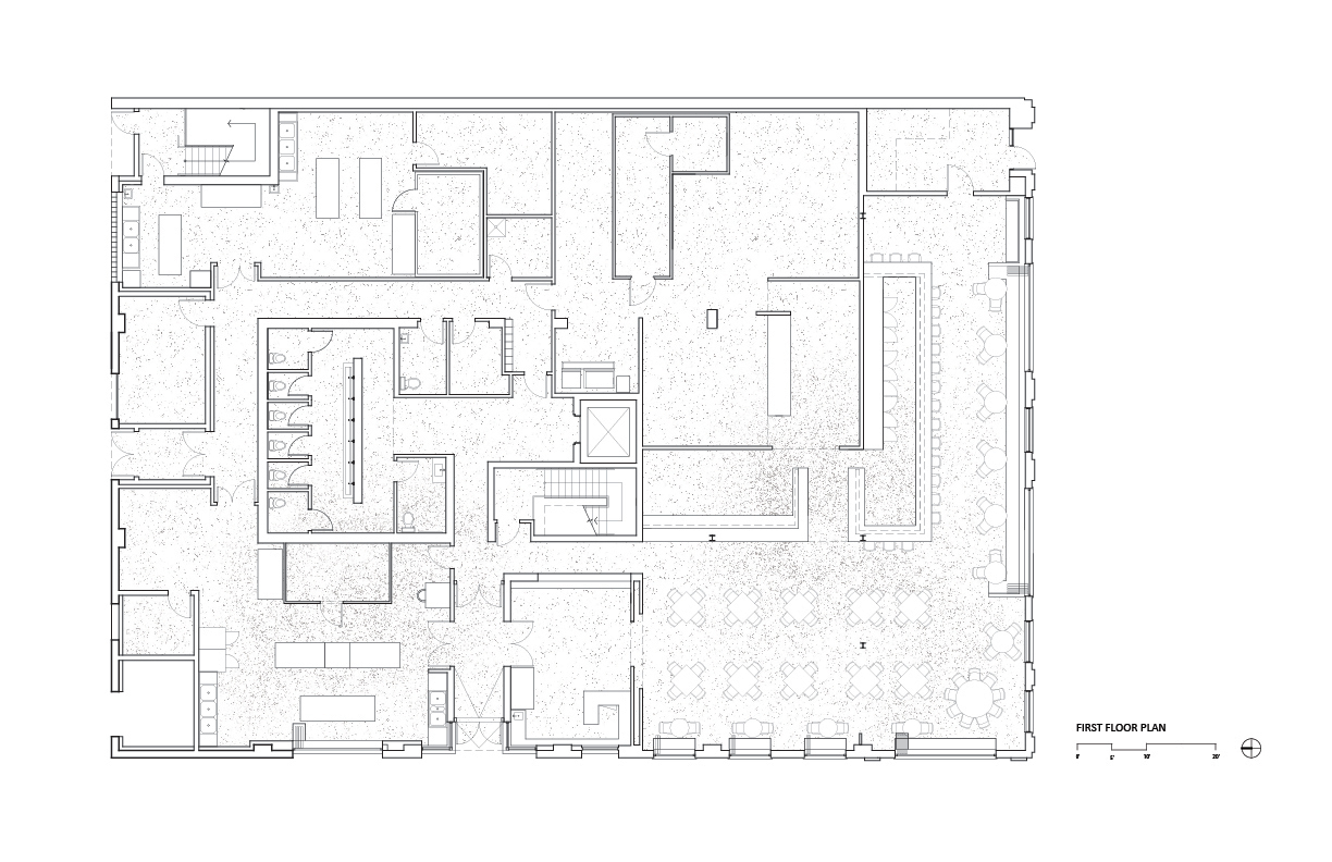
The adaptive reuse project reimagines the building as a dynamic, multifunctional space catering to various tenants and activities. The ground floor houses a restaurant with sidewalk seating, a coffee bar, and a retail store, offering a welcoming environment for both tenants and visitors. These spaces create a lively street-level presence, fostering community interaction and engagement.

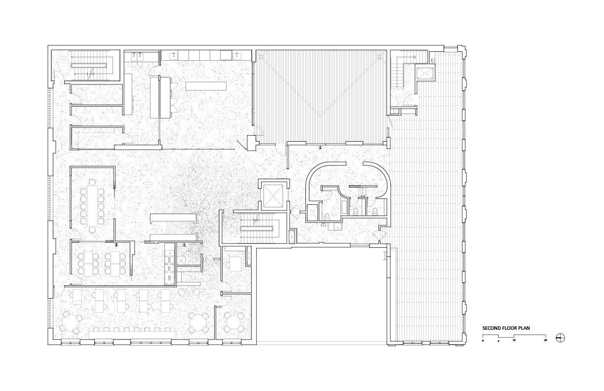
The second floor introduces specialized programs, including a food innovation film studio, test kitchens, private dining areas, office spaces, and event venues. These spaces cater to creative professionals and entrepreneurs, reflecting the city's vibrant culinary and cultural scene. By incorporating diverse programs, the building becomes a hub for innovation and collaboration.

On the third floor, a rooftop farm and greenhouses enhance the project’s sustainability and provide unique opportunities for urban agriculture. These green spaces not only contribute to environmental goals but also offer a serene retreat amidst the bustling urban landscape.

Architectural Features and Design Approach
The 1516 W Carroll Ave Adaptive Reuse Building maintains a restrained material palette, emphasizing the honest expression of raw materials. Exposed architectural and structural elements from earlier projects, such as brick walls, steel beams, and wood finishes, become defining features of the interior spaces. This design approach creates a cohesive aesthetic that blends the past with the present.

The renovation also introduces new vertical circulation elements, floor and roof structures, and updated building systems. These improvements enhance functionality and ensure compliance with modern standards while respecting the building’s historic character. Sensitive acoustic treatments further contribute to the comfort and usability of the spaces, balancing aesthetics with practicality.

Large windows and open layouts allow natural light to permeate the interiors, creating a welcoming and energy-efficient environment. The integration of new systems and sustainable practices aligns with the project’s commitment to reducing its environmental impact.

A Celebration of Adaptive Reuse
The 1516 W Carroll Ave Adaptive Reuse Building exemplifies the potential of adaptive reuse architecture to revitalize historic structures. By retaining and celebrating the building's industrial heritage, the project creates a vibrant, multifunctional space that meets the needs of contemporary tenants while preserving the character of its past.

This transformation highlights the importance of sustainability, community engagement, and innovation in modern architecture. By integrating diverse programs and embracing the raw beauty of its materials, the project sets a benchmark for adaptive reuse in urban contexts.

The 1516 W Carroll Ave Adaptive Reuse Building is a testament to the power of thoughtful design and collaboration. Through its harmonious blend of historic preservation and modern innovation, the project redefines how we approach the reuse of existing structures. It is not only a functional space for tenants and visitors but also an inspiring model for sustainable and adaptive urban development.




All Photographs are work of Annabell Ren, Jiachen Wang
Popular Articles
Popular articles from the community
A Contemporary Take on Iranian Residential Architecture
A modern interior design in Mashhad that reinterprets brick, light, and spatial flow to create a warm, contemporary residential architecture.
Inverted Architecture Installation by Studio Link-Arc: Exploring the Intersection of Architecture and Living Organisms
Inverted Architecture Installation by Studio Link-Arc blends mycelium, sustainability, inverted design, ecological cycles, and urban adaptive architecture in Shenzhen.
An Miên Lumière Cafe by xưởng xép, Ho Chi Minh City, Vietnam
An industrial-inspired café where layered steel and warm light create a dynamic, immersive environment shaped by reflection, depth, and perception.
Atelier Macri Concept Store Interior Design by CASE-REAL
Atelier Macri store features a "ko" counter, walnut wood details, cork displays, blending retail, gallery, and seamless customer experiences.
Similar Reads
You might also enjoy these articles
The Ken Roberts Memorial Delineation Competition (Krob)
As the most senior architectural drawing competition currently in operation anywhere in the world, it draws hundreds of entries each year, awarding the very best submissions in a series of medium-based categories.
Waterfront Redevelopment and Urban Revitalization in Mumbai: Forging a New Dawn for Darukhana
A transformative waterfront redevelopment project reimagining Darukhana’s shipbreaking heritage into an inclusive urban future.
OUT-OF-MAP: A Call for Postcards on Feminist Narratives of Public Space
Rhizoma Design and Research Lab invites artists, designers, architects, researchers, and students to reflect on how feminist perspectives can reshape public space. Selected works will be exhibited in Barcelona, October 2026. Submissions open until 15 April 2026.
Documentation Work on Buddhist Wooden Temple
Architectural syncretism and cultural hybridity: A comparative study of the Buddhist temples in Chattogram Hill tracks
Explore Architecture Competitions
Discover active competitions in this discipline
The International Standard for Design Portfolios
The Global Benchmark for Architecture Dissertation Awards
The Global Benchmark for Graduation Excellence
Challenge to reimagine the Iron Throne
Comments (0)
Please login or sign up to add comments
No comments yet. Be the first to comment!