A House Overlooking the Persian Gulf: A Harmonious Blend of Tradition and Sustainability
A sustainable house in Qeshm Island blends traditional Iranian architecture with passive cooling, recycled materials, and energy-efficient design for rural expansion.
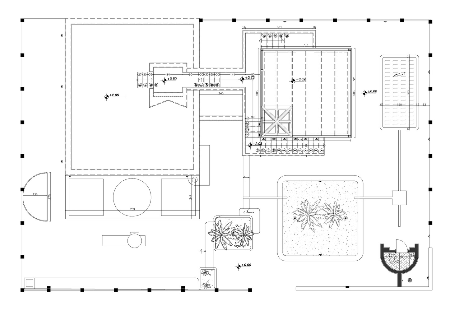
Nestled in the evolving village of Gacho on Qeshm Island, A House Looking to the Persian Gulf, designed by Kooshk Office, presents a sustainable and context-sensitive architectural approach. As Qeshm experiences rapid expansion due to an influx of non-native residents and capital investments, the architectural landscape faces challenges of uncoordinated development. The project seeks to counteract this trend by offering a design that not only respects the region’s vernacular traditions but also integrates sustainable solutions for energy efficiency.


Preserving the Cultural Fabric of Gacho
Gacho remains a closely connected, family-oriented village where the introduction of new architecture risks disrupting its visual and social cohesion. The design team prioritized maintaining harmony with the surroundings by incorporating elements of traditional southern Iranian architecture while ensuring that the house seamlessly integrates with the village's existing aesthetic. By avoiding overly modern or incongruent architectural expressions, the project aligns with the cultural identity of Qeshm while subtly redefining its contemporary evolution.

Design Challenges and Sustainable Solutions
One of the primary concerns of the project was addressing energy consumption. The village lacks access to natural gas, and its electrical grid suffers from wear and tear, making energy efficiency a critical design component. To mitigate these challenges, the design employs passive cooling strategies inspired by local construction techniques. Large windows allow for natural ventilation, while the use of locally sourced materials helps regulate indoor temperatures, reducing reliance on artificial cooling systems.

Revitalizing an Existing Structure
The project was initially presented with a 40-square-meter dilapidated structure. Instead of demolishing it, the team incorporated it into the new design, expanding the total built area to 100 square meters while maintaining sustainability at its core. The reuse of materials, such as salvaged wooden parts from retired local sailing boats and dried palm leaves, reduces embodied carbon emissions and reinforces a circular construction approach.


A Blueprint for Sustainable Rural Expansion
Located at the main entrance of the village, the house serves as a model for future rural expansion. The design principles emphasize low-energy architecture, integration of local patterns and techniques, and a commitment to preserving visual comfort for the local community. Through its careful planning and execution, the project proposes a balanced response to the increasing demand for new housing while respecting Qeshm’s unique architectural identity.


This project by Kooshk Office exemplifies how contemporary architecture can blend sustainability, cultural heritage, and modern living needs. By staying true to regional construction practices while introducing thoughtful innovations, A House Looking to the Persian Gulf offers a pathway toward responsible and environmentally conscious development in Qeshm.


Popular Articles
Popular articles from the community
Alton Cliff House: A Harmonious Retreat by f2a Architecture in Lake Country, Canada
Alton Cliff House blends corten steel, prefabrication, and sustainable design, creating a luxurious, energy-efficient retreat perched on Canadian cliffs.
Atelier Macri Concept Store Interior Design by CASE-REAL
Atelier Macri store features a "ko" counter, walnut wood details, cork displays, blending retail, gallery, and seamless customer experiences.
The Ken Roberts Memorial Delineation Competition (Krob)
As the most senior architectural drawing competition currently in operation anywhere in the world, it draws hundreds of entries each year, awarding the very best submissions in a series of medium-based categories.
Solar Steam: A Climate-Responsive Architecture That Redefines the Monument
A climate-responsive memorial architecture that transforms heat, decay, and time into a living system reflecting humanity’s ecological impact.
Similar Reads
You might also enjoy these articles
The Ken Roberts Memorial Delineation Competition (Krob)
As the most senior architectural drawing competition currently in operation anywhere in the world, it draws hundreds of entries each year, awarding the very best submissions in a series of medium-based categories.
Waterfront Redevelopment and Urban Revitalization in Mumbai: Forging a New Dawn for Darukhana
A transformative waterfront redevelopment project reimagining Darukhana’s shipbreaking heritage into an inclusive urban future.
OUT-OF-MAP: A Call for Postcards on Feminist Narratives of Public Space
Rhizoma Design and Research Lab invites artists, designers, architects, researchers, and students to reflect on how feminist perspectives can reshape public space. Selected works will be exhibited in Barcelona, October 2026. Submissions open until 15 April 2026.
Documentation Work on Buddhist Wooden Temple
Architectural syncretism and cultural hybridity: A comparative study of the Buddhist temples in Chattogram Hill tracks
Explore Architecture Competitions
Discover active competitions in this discipline
The International Standard for Design Portfolios
The Global Benchmark for Architecture Dissertation Awards
The Global Benchmark for Graduation Excellence
Challenge to reimagine the Iron Throne
Comments (0)
Please login or sign up to add comments
No comments yet. Be the first to comment!