Art Nouveau Residential Architecture: The Arch House in Portugal
The Arch House in Portugal redefines Art Nouveau residential architecture, blending historical elegance with modern functionality through arches and open spaces.
The Arch House in Paredes de Coura, Portugal, designed by Tiago Castro Sousa Lda, is a striking example of Art Nouveau residential architecture. Originally built for commercial use as a pharmacy, the structure stood as a prominent architectural element within the village, defined by its elegant stonework and large openings. However, the interior lacked the grandeur of its exterior, with small, compartmentalized rooms that did not align with the house’s refined façade. The renovation aimed to transform the house into a harmonious living space while embracing the elegance and artistic expression of Art Nouveau.




The Architectural Transformation
The project sought to bridge the gap between the home’s exterior grandeur and its interior functionality. The original structure had a central space flanked by four smaller rooms, creating a disjointed and restrictive layout. The attic housed two bedrooms, accessible by a narrow, enclosed staircase, reinforcing the sense of segmentation. The redesign introduced a seamless spatial flow through the use of arches, open spaces, and natural light.




The Arch as a Defining Element
One of the most significant design interventions was the incorporation of arches as both structural and aesthetic elements. The arch, a timeless architectural motif, was used to organize the interior space and evoke the Art Nouveau style. On the ground floor, two prominent arcades subtly divide the space into three distinct yet interconnected zones: the kitchen, living room, and dining area. This open-plan concept enhances spatial fluidity while preserving the elegance and ornamental quality characteristic of Art Nouveau.




Interior Elegance and Materiality
The use of natural light played a crucial role in reshaping the atmosphere of the Arch House. Northern light, soft and constant, was harnessed to create a tranquil and serene environment, particularly in the private quarters. The staircase, a sculptural concrete structure clad in wood, serves as both a functional and decorative element, aligning with the geometric precision of the arches. Through careful material selection, including wood, stone, and refined metal details, the interior reflects both modern comfort and historical artistry.





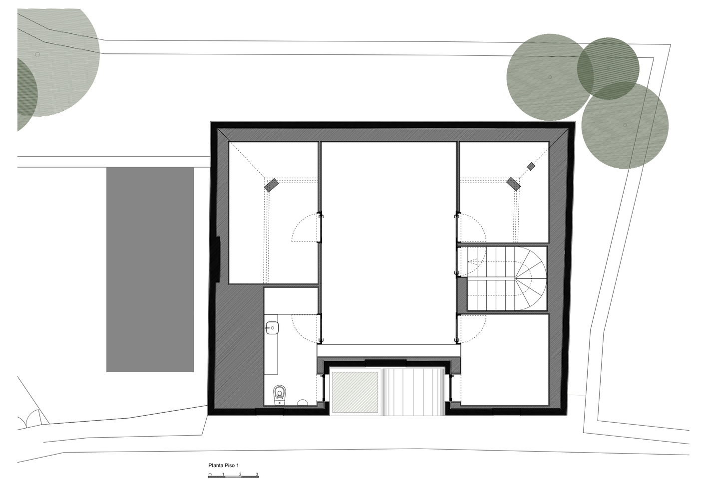
Functional Zoning and Spatial Organization
The renovated house follows a logical distribution of spaces across three levels. The entrance level features a single open-plan area divided by arches, providing visual and functional separation between communal spaces. The upper floor serves as an office and support area, while the semi-buried lower floor accommodates the bedrooms, a bathroom, and a laundry room. This arrangement ensures that private areas maintain a sense of calm, shielded from the more active social spaces above.



The Influence of Art Nouveau in the Renovation
The homeowners, passionate admirers of Art Nouveau and the Arts and Crafts movement, sought to embed these influences into their living space. The renovation preserved the house’s historical character while integrating contemporary elements that complement the ornate nature of Art Nouveau design. The arches not only serve as a unifying design feature but also reflect the era’s preference for organic forms and flowing lines. The result is a home that is both functional and artistically evocative, fulfilling the vision of creating an architectural work that embodies Art Nouveau ideals.




The Arch House exemplifies the successful adaptation of Art Nouveau residential architecture in a modern context. Through the thoughtful use of arches, open spaces, and refined materials, the house now offers a living experience that aligns with its original grandeur. This transformation highlights the enduring beauty of Art Nouveau design principles, proving that historic styles can be reinterpreted to meet contemporary living needs while preserving their artistic essence.






Popular Articles
Popular articles from the community
Flamboyant House by Juliana Camargo + Prumo Projetos
Modern Brazilian house integrating existing tree, pool, and volumes with glass, wood, and transitional spaces blending interior, exterior, and landscape seamlessly.
Solar Steam: A Climate-Responsive Architecture That Redefines the Monument
A climate-responsive memorial architecture that transforms heat, decay, and time into a living system reflecting humanity’s ecological impact.
An Miên Lumière Cafe by xưởng xép, Ho Chi Minh City, Vietnam
An industrial-inspired café where layered steel and warm light create a dynamic, immersive environment shaped by reflection, depth, and perception.
A Contemporary Take on Iranian Residential Architecture
A modern interior design in Mashhad that reinterprets brick, light, and spatial flow to create a warm, contemporary residential architecture.
Similar Reads
You might also enjoy these articles
Top 15 Architecture Competitions to Enter in 2026
From student-friendly idea competitions to prestigious international awards, here are the best architecture competitions open for entries in 2026. Updated regularly.
DIY & Engineering in Computational Design : Enter the BeeGraphy Design Awards
Showcase Your Creativity with Computational Design and Open Source Projects

Innovative Design Solutions: Award-Winning Projects from Recent Architecture Competitions
Exploring award-winning architectural projects shaping the future of design, sustainability, and community.
Explore Architecture Competitions
Discover active competitions in this discipline
The International Standard for Design Portfolios
The Global Benchmark for Architecture Dissertation Awards
The Global Benchmark for Graduation Excellence
Challenge to reimagine the Iron Throne
Comments (0)
Please login or sign up to add comments
No comments yet. Be the first to comment!