Contemporary Rural Art Museum China: Songzhuang Z Museum by TEAM BLDG
A former house reborn as a woven‑skin rural art museum that catalyzes cultural life in Songzhuang Village, Zhejiang, China.
Weaving New Cultural Life into an Ancient Village
Perched over 400 meters above sea level in Songzhuang Village, Lishui, Zhejiang, the Songzhuang Z Museum by TEAM BLDG, led by Xiao Lei, stands as a striking exemplar of a contemporary rural art museum in China. This 472 m² transformation of a neglected 1990s brick-concrete house redefines how contemporary architecture can power cultural revitalization. What was once overlooked terrain has now become a living cultural landmark deeply rooted in the local—and yet unmistakably modern.





Embracing Contrast Rather Than Erasure
Unlike previous attempts to make the building recede, the architects chose to amplify its contrast with the historic rammed-earth homes of the village. By retaining its mass and embracing its boldness, they created a memorable presence that resonates both with the spirit of art and the village’s existing character. The building was reconfigured inside-out into four interlocking volumes—referred to as a “quartet”—separated by inner courtyards and connected through shifting roof terraces and interstitial canopies. This approach both honors the village’s traditional fabric and asserts the building’s new identity.




A Skin That Weaves Light and Place
The outer envelope of the museum is clad in a meticulously crafted aluminum lattice—reminiscent of a loom’s warp and weft. Painted red on three sides and white on one, 20 × 40 mm tubes are woven into a dynamic façade that filters daylight, grounds the building in texture, and evokes the region’s rich textile heritage.




Rather than appearing mechanical, the pattern shifts gracefully: denser above, more open below, and especially intricate at terrace levels. As sunlight changes throughout the day, the façade transitions from translucent pink hues in bright afternoon light to serene white in overcast or snowy conditions. The building seems to breathe with its surroundings.




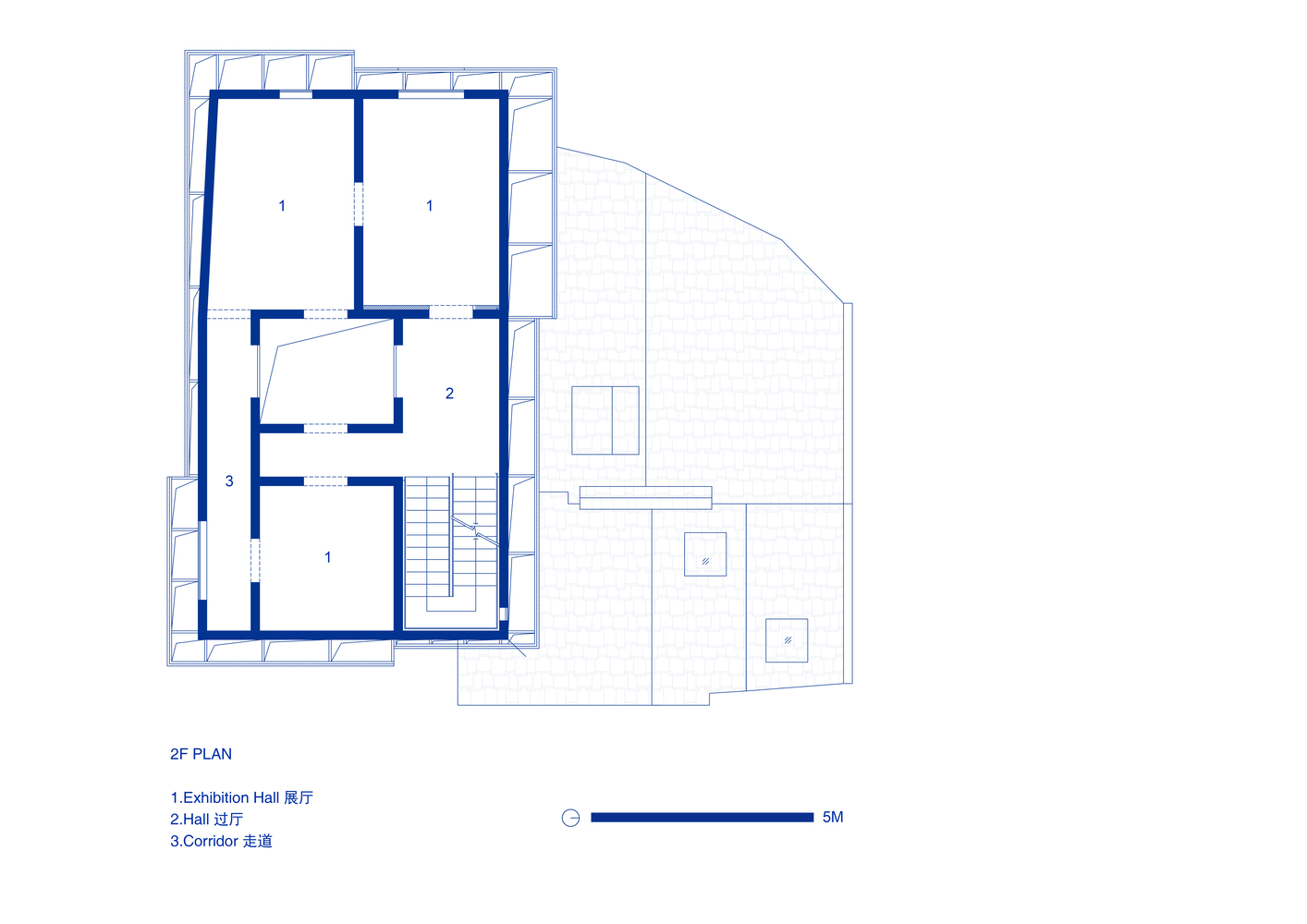
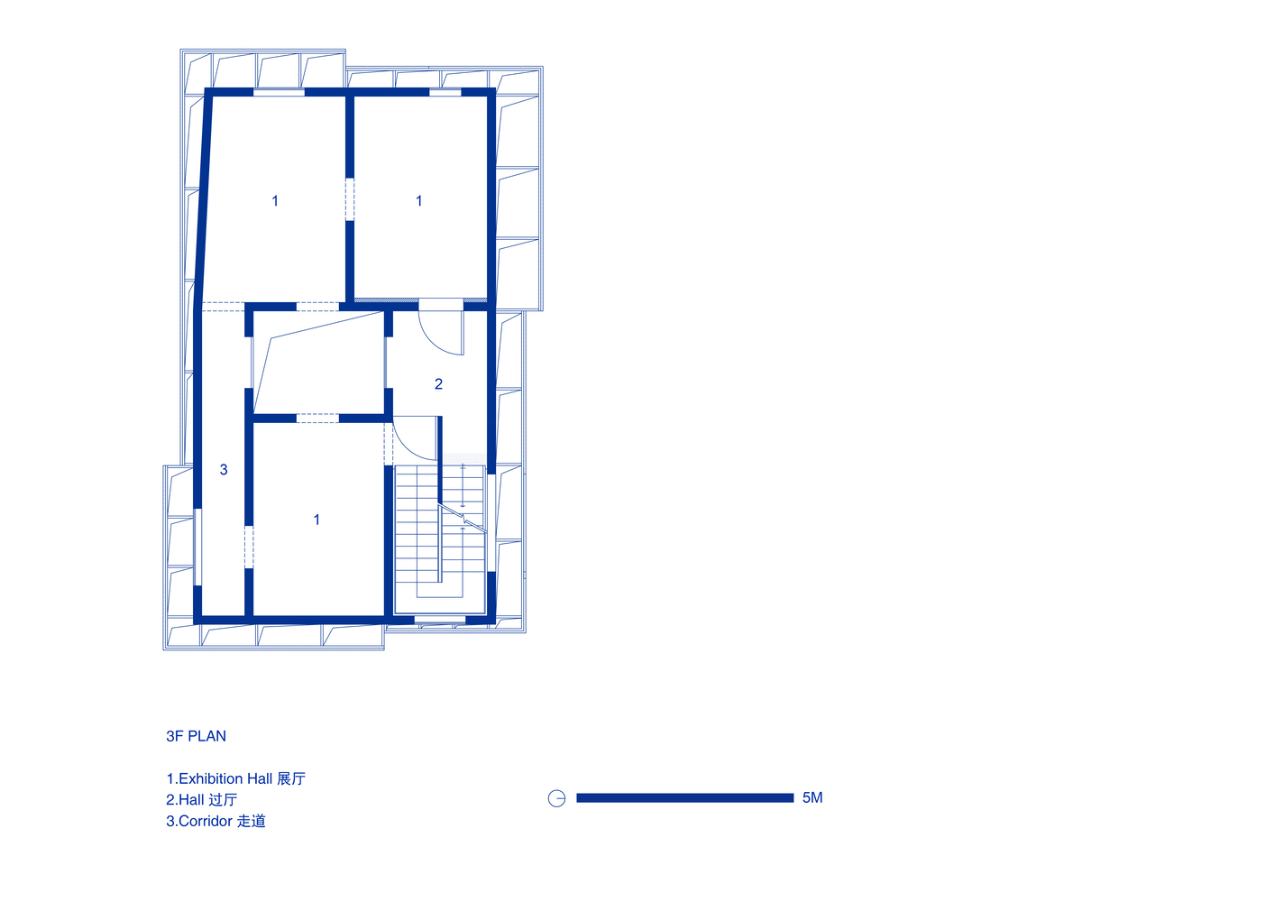
Light Well and Curated Circulation
Inside, the museum’s spatial clarity reinforces its role as a vessel for art. A slender atrium-clad light well runs vertically through all three floors, drawing daylight deep into the structure and unifying circulation. Galleries are arranged around this shaft, enabling visitors to glimpse exhibitions from multiple vantage points—and even across floors—creating an intimate dialogue between works and observers.



Original window openings were reconfigured to frame the rural village views like natural works of art themselves. On the upper floors, new openings transform part of the gallery into a semi-outdoor pavilion. The crowning rooftop terrace offers sweeping panoramic views of Songzhuang, turning the museum into both a contemplative space and a cultural lookout.



Dialogue Between Habitat and Art
Visitors enter through a renovated adjacent rammed-earth structure—a subdued “prologue hall” that pays homage to local tradition. Minimal interventions here enhance the sense of arrival and context. The contrast between its muted calm and the clean, luminous main volumes highlights the journey from village memory to contemporary expression.



The intentional design of circulation—the vertical light-driven connection, minimal interior decoration, and framed landscape views—ensures that the museum highlights its exhibitions without distraction, while maintaining deep sensitivity to place.



From Façade to Furniture: A Loom Theme Extended
The wool thread of the woven façade carries further into the interior through a custom-designed “LOOM” furniture series. Café tables and shop fixtures feature steel frames wrapped in red woven straps, maintaining the building’s motif and weaving continuity between envelope and user experience.




A Modern Cultural Catalyst for Rural Revitalization
The Songzhuang Z Museum is more than a showcase of textile art—it is a cultural catalyst for the village and a model of contemporary rural art museum design in China. By embracing its original identity and weaving in fresh contemporary relevance, the museum reanimates local heritage while cultivating a new form of artistic life—one framed in light, dialogue, craft, and place.



All Photographs are works of Jonathan Leijonhufvud
Popular Articles
Popular articles from the community
Treehouse Apartment: A Warm Timber Interior Blending Craft, Play, and Contemporary Living
Warm timber apartment with integrated treehouse, combining natural materials, craftsmanship, and playful design to create a flexible, family-oriented living environment.
On the Brooks House by Monsoon Collective – A Contemporary Kerala Home Rooted in Tradition
Kerala home blending tradition and modernity with water-inspired design, brick architecture, courtyard planning, and sustainable rainwater harvesting strategies.
Solar Steam: A Climate-Responsive Architecture That Redefines the Monument
A climate-responsive memorial architecture that transforms heat, decay, and time into a living system reflecting humanity’s ecological impact.
Atelier Macri Concept Store Interior Design by CASE-REAL
Atelier Macri store features a "ko" counter, walnut wood details, cork displays, blending retail, gallery, and seamless customer experiences.
Similar Reads
You might also enjoy these articles
Top 15 Architecture Competitions to Enter in 2026
From student-friendly idea competitions to prestigious international awards, here are the best architecture competitions open for entries in 2026. Updated regularly.
DIY & Engineering in Computational Design : Enter the BeeGraphy Design Awards
Showcase Your Creativity with Computational Design and Open Source Projects

Innovative Design Solutions: Award-Winning Projects from Recent Architecture Competitions
Exploring award-winning architectural projects shaping the future of design, sustainability, and community.
Explore Architecture Competitions
Discover active competitions in this discipline
The International Standard for Design Portfolios
The Global Benchmark for Architecture Dissertation Awards
The Global Benchmark for Graduation Excellence
Challenge to reimagine the Iron Throne
Comments (0)
Please login or sign up to add comments
No comments yet. Be the first to comment!