Cultra Taproom Cafe Bar: A Fusion of Colonial Architecture and Modern Adaptation in Hanoi
Cultra Taproom blends historical colonial architecture with modern design, creating a vibrant, multifunctional space in Hanoi.
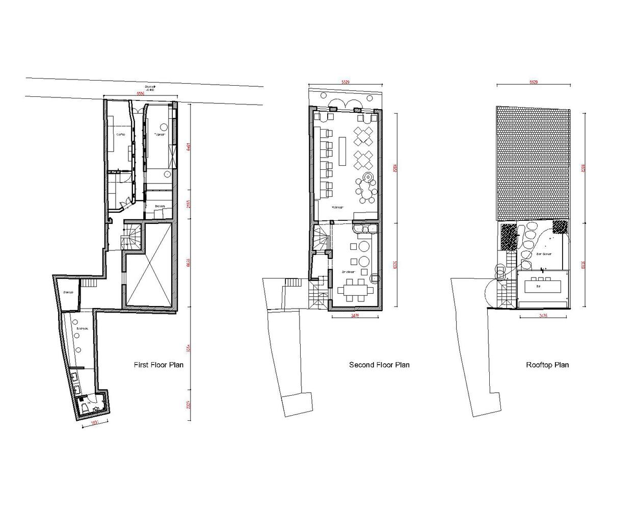
The Cultra Taproom Cafe Bar in Hanoi, designed by Idee architects, is an exceptional example of restoration and modern adaptation of colonial architecture. Situated in the heart of Hanoi's historic Hang Da Street, this project breathes new life into a century-old colonial house, blending the architectural heritage of Hanoi with a vibrant, contemporary atmosphere. This restoration project stands as a testament to how modern life can seamlessly coexist with historical architecture, creating an environment that honors the past while embracing the future.


The building, which dates back over 100 years to the French colonial era, had deteriorated over time, suffering from neglect, historical upheavals, and multiple ownership changes. Despite these challenges, the project aimed to preserve the building's historical essence while adapting it for modern use, meeting the diverse needs of its new occupants. The result is a dynamic multi-functional space that embodies both the cultural identity of Hanoi and the energy of its youth.


Blending History with Modernity: Restoring the Colonial Façade
One of the standout features of the Cultra Taproom is the careful restoration of the building's front façade. The upper part of the façade, a key part of Hanoi’s architectural identity, was preserved with intricate detailing, brickwork, and natural greenery. The iconic balcony and windows, symbols of Hanoi’s colonial era, were carefully rejuvenated, maintaining their original charm. This attention to historical accuracy allows the building to retain its character while aligning with contemporary architectural demands.


However, the ground floor presented a challenge. A narrow alley, only 60 cm wide, split the building’s façade into two distinct sections. This alley could not be removed due to the shared ownership of the building, but the design team embraced this constraint, using it to create a unique spatial experience. The alley was redesigned to serve as an inviting display space for Cultra's Kombucha tea products, highlighting the fusion of old and new. The narrow passage contrasts with the broader spaces of the building, adding an element of surprise and intimacy that evokes Hanoi's famous alleys and courtyards.


Preserving Original Features: Wooden Floors, Bricks, and Staircases
The restoration process included the careful repair and preservation of the original wooden floors and bricks, retaining their historical textures and emotional appeal. These features contribute to the building’s nostalgic charm and provide a tangible connection to Hanoi's architectural past. The wooden staircase, which had previously collapsed, was replaced with a new one that blends historical and modern elements. The new staircase is a central feature of the design, serving as both a functional circulation point and an aesthetic focal point that links the various sections of the building.



A Rooftop Bar with a Contemporary Twist
A key feature of the Cultra Taproom is its rooftop bar, a space that brings modern flair to the colonial building. The original roof tiles were carefully restored, and new tiles were added to maintain the roof's nostalgic character. This careful restoration, combined with the addition of a sleek glass and stainless steel skylight, creates a minimalist and modern touch. The skylight introduces natural light into the space, illuminating the building's old, weathered walls where nature has taken root over time. This juxtaposition of natural materials and modern design elements is a hallmark of the project’s philosophy of blending the old with the new.


Enhancing the Visitor Experience: Flow and Connectivity
The Cultra Taproom is designed with an emphasis on connectivity between spaces. Visitors are seamlessly guided through the building, from the interior to the exterior, allowing them to experience the fluid transition between the different areas. The lighting system was carefully placed to highlight the architectural details, creating a welcoming atmosphere that draws attention to both the historic features and modern interventions. This thoughtful design enhances the visitor experience, inviting them to explore the building’s rich history while enjoying its contemporary amenities.




A Dynamic Fusion of Past and Present
The Cultra Taproom Cafe Bar represents an exceptional example of how colonial architecture can be restored and adapted for modern use. By carefully preserving the building’s historical charm and integrating contemporary design elements, the project creates a vibrant, multi-functional space that reflects Hanoi's architectural identity. It stands as a symbol of how modern life can coexist with tradition, providing a dynamic environment for both locals and visitors to experience the rich cultural heritage of Hanoi.



All Photographs are work of Trieu Chien
Popular Articles
Popular articles from the community
Gads Hill Early Learning Center by JGMA: Adaptive Reuse Shaping Community-Focused Educational Architecture
Adaptive reuse transforms fragmented structure into vibrant early learning center with playful façade, natural light, and community-focused sustainable design.
The Ken Roberts Memorial Delineation Competition (Krob)
As the most senior architectural drawing competition currently in operation anywhere in the world, it draws hundreds of entries each year, awarding the very best submissions in a series of medium-based categories.
Alton Cliff House: A Harmonious Retreat by f2a Architecture in Lake Country, Canada
Alton Cliff House blends corten steel, prefabrication, and sustainable design, creating a luxurious, energy-efficient retreat perched on Canadian cliffs.
Split House: A Compact Urban Home Blending Privacy, Light, and Flexible Living in Japan
Compact Japanese home featuring DOMA space, flexible café potential, passive lighting, privacy zoning, and sustainable urban living design.
Similar Reads
You might also enjoy these articles
The Ken Roberts Memorial Delineation Competition (Krob)
As the most senior architectural drawing competition currently in operation anywhere in the world, it draws hundreds of entries each year, awarding the very best submissions in a series of medium-based categories.
Waterfront Redevelopment and Urban Revitalization in Mumbai: Forging a New Dawn for Darukhana
A transformative waterfront redevelopment project reimagining Darukhana’s shipbreaking heritage into an inclusive urban future.
OUT-OF-MAP: A Call for Postcards on Feminist Narratives of Public Space
Rhizoma Design and Research Lab invites artists, designers, architects, researchers, and students to reflect on how feminist perspectives can reshape public space. Selected works will be exhibited in Barcelona, October 2026. Submissions open until 15 April 2026.
Documentation Work on Buddhist Wooden Temple
Architectural syncretism and cultural hybridity: A comparative study of the Buddhist temples in Chattogram Hill tracks
Explore Architecture Competitions
Discover active competitions in this discipline
The International Standard for Design Portfolios
The Global Benchmark for Architecture Dissertation Awards
The Global Benchmark for Graduation Excellence
Challenge to reimagine the Iron Throne
Comments (0)
Please login or sign up to add comments
No comments yet. Be the first to comment!