DeValera Library & Súil Art Gallery by Keith Williams Architects: A Landmark of Civic Architecture in Ireland
A landmark civic architecture project in Ireland unifying library, gallery, and theatre in a sustainable cultural complex by Keith Williams Architects.
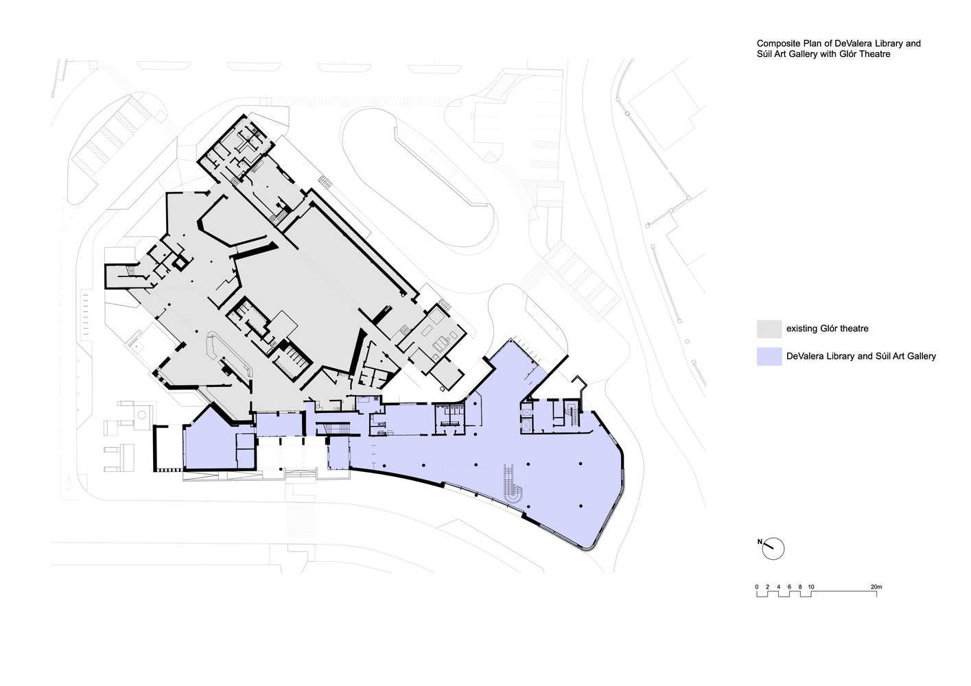
A Cultural Nexus in Ennis
The DeValera Library and Súil Art Gallery in Ennis, Ireland, designed by Keith Williams Architects, is a bold new expression of civic architecture in Ireland. The 2,321 m² cultural complex brings together literature, visual arts, and performing arts by uniting a public library, an art gallery, and the existing Glór theatre. Strategically placed at the edge of Ennis town centre, adjacent to Monastery Park and the historic Poor Clare Monastery, the development enhances the cultural identity of the town while celebrating its civic character.





Unifying Three Cultural Disciplines
The masterstroke of this design lies in the seamless integration of the library, art gallery, and Glór theatre into a single civic complex. The architectural narrative begins with a double-height colonnaded portico that connects the three programmatic elements and creates a central entrance. This entrance forms a gateway not only to the building but to the arts themselves, embodying the convergence of literary, visual, and performing arts within one architectural volume.




A Fluid, Sculptural Façade
The DeValera Library & Súil Gallery is enveloped in a 10-meter-high undulating façade of polished, reconstituted stone. This flowing exterior, composed of precast concrete panels, not only allows for aesthetic fluidity but also lends the structure a civic gravitas. The ribbed texture and soft pale tone provide a refined materiality that stands in harmony with the surrounding historical and natural context. A large glazed opening on the main façade provides sweeping views from within the library to Monastery Park, and at night, this transparency reverses, turning the building into a glowing cultural beacon.




Spatial Experience and Public Engagement
Internally, the library is arranged over two open floors and houses over 73,000 books, publications, archives, and digital media. A large central void and a public staircase connect the floors and open visual axes across the plan, enhancing transparency and accessibility. This spatial strategy maximizes public engagement and transforms the building into a permeable civic space. The County Library offices occupy a minimalist bar structure above the library, while the Súil Art Gallery sits across a shared public forecourt, adjacent to an external sculpture court, further enriching the visitor experience.




Sustainable and Enduring Construction
Keith Williams Architects employed a structural system combining reinforced concrete with steel to accommodate programmatic needs. The substructure utilizes mass concrete and piled foundations tailored to local geotechnical conditions. Importantly, the concrete mix incorporates Ground Granulated Blast-furnace Slag (GGBS), reducing the building's environmental impact and aligning it with contemporary sustainability goals.




The structure's thermal inertia supports natural energy regulation, helping the project achieve NZEB (Nearly Zero Energy Building) performance. Natural ventilation systems, low-energy lighting, and careful orientation all contribute to reduced operational energy consumption. With a design lifespan of over 60 years, the library and gallery stand as an example of sustainable civic architecture with low embedded carbon.




Architectural Legacy in Ireland
The DeValera Library and Súil Art Gallery marks the sixth project completed by Keith Williams Architects in Ireland. It was officially opened in November 2024 by Taoiseach Simon Harris, further affirming the project’s national importance. The design reflects not only a deep understanding of civic function but also a visionary approach to architecture that shapes how communities interact with culture.





This project is a prime example of how civic architecture in Ireland can be both contextually sensitive and forward-looking—anchoring cultural programs in sculptural forms, sustainable construction, and spatial clarity.



All the photographs are works of Sté Murray
Popular Articles
Popular articles from the community
Solar Steam: A Climate-Responsive Architecture That Redefines the Monument
A climate-responsive memorial architecture that transforms heat, decay, and time into a living system reflecting humanity’s ecological impact.
Louis Malle Cinema: A Limestone Cultural Landmark Revitalizing Community Life in Prayssac
Limestone cinema extension with public forecourt, blending heritage and modern design to create flexible cultural spaces and strengthen community interaction.
A Contemporary Take on Iranian Residential Architecture
A modern interior design in Mashhad that reinterprets brick, light, and spatial flow to create a warm, contemporary residential architecture.
Treehouse Apartment: A Warm Timber Interior Blending Craft, Play, and Contemporary Living
Warm timber apartment with integrated treehouse, combining natural materials, craftsmanship, and playful design to create a flexible, family-oriented living environment.
Similar Reads
You might also enjoy these articles
Top 15 Architecture Competitions to Enter in 2026
From student-friendly idea competitions to prestigious international awards, here are the best architecture competitions open for entries in 2026. Updated regularly.
DIY & Engineering in Computational Design : Enter the BeeGraphy Design Awards
Showcase Your Creativity with Computational Design and Open Source Projects

Innovative Design Solutions: Award-Winning Projects from Recent Architecture Competitions
Exploring award-winning architectural projects shaping the future of design, sustainability, and community.
Explore Architecture Competitions
Discover active competitions in this discipline
The International Standard for Design Portfolios
The Global Benchmark for Architecture Dissertation Awards
The Global Benchmark for Graduation Excellence
Challenge to reimagine the Iron Throne
Comments (0)
Please login or sign up to add comments
No comments yet. Be the first to comment!