Diciassette Clothing Store Interior Design: Biophilic Retail Architecture in Morbegno, Italy
Biophilic women's boutique in Morbegno, Italy unites local stone, timber, and landscape-inspired islands to elevate experiential retail architecture and wellbeing.
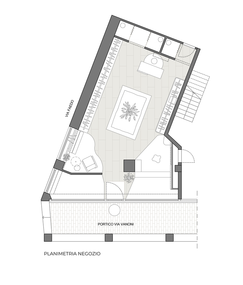
Diciassette Clothing Store in Morbegno reimagines small-format retail as a place of sensory engagement, regional identity, and biophilic connection. Designed by RdN studio beneath the historic porticoes of the first Morbegno building by Luigi Caccia Dominioni, the project transforms just 60 square meters into an experiential boutique that weaves stone, wood, light, and landscape references into a narrative shopping environment for women’s fashion.



Urban and Architectural Context
Morbegno, in Italy’s Valtellina valley, is framed by the Rhaetian Alps and animated by waterways that define its geography and culture. The nearby Ganda bridge—a late eighteenth-century masonry structure spanning the Adda River with three monumental arches—serves as an architectural symbol of continuity and connection. Setting the boutique beneath a Caccia Dominioni building situates contemporary retail within a lineage of Italian architectural craft, while the surrounding mountains and river valley provide the conceptual ecosystem from which the interior draws form, texture, and mood.



Concept: Genius Loci Through Biophilic Retail Design
RdN studio approached the commission as an opportunity to express genius loci—the spirit of place—through a biophilic retail framework. Rather than laying out linear racks, the design invites discovery along a loose circular path organized around a living tree at the center of the store. The tree acts as an orienting landmark, a vertical touch of nature that slows movement, encourages curiosity, and roots the boutique in an ecological metaphor aligned with the alpine landscape beyond the storefront.


Spatial Experience and Circulation
Customers enter under the portico and are drawn inward by layered sightlines that unfold around the central tree. Display islands define a fluid loop rather than rigid aisles. Each island embodies a micro-landscape—river, forest, branch, refuge—so shoppers progress through subtly shifting atmospheres that support different retail behaviors, from browsing garments to testing footwear to pausing in conversation. This choreographed circulation enhances dwell time and deepens product interaction without relying on cluttered merchandising.


Material Identity: Granite, Wood, Stone, Iron
Material decisions anchor the interior to regional geology and craft. The checkout counter is carved from a salvaged block of Ghiandone-Serizzo granite, a rare stone with deep local resonance and visual kinship to the masonry of the Ganda bridge. Behind the counter, a sequence of arched profiles recalls the bridge’s three spans, translating infrastructure into a tactile brand backdrop. Natural wood appears in rails, benches, and custom millwork, balancing the cool density of stone with warmth and human scale. Exposed iron details lend structural clarity and industrial honesty appropriate to a mountain town economy historically tied to making and material exchange.

The Branch Wall and Fitting Room Threshold
Along the Via Faedo wall, a continuous wooden clothes rail grows outward like a branching limb emerging from nature-themed wall covering. This gesture visually links merchandise display to the central tree, reinforcing the biophilic narrative. The rail leads toward the fitting rooms, which are conceived as a more secluded zone—an architectural clearing where customers step beyond the canopy into a personal pause space. Softened transitions, enveloping finishes, and controlled lighting support comfort and self-reflection, essential to the try-on experience.

The River Island
On the east side, a composition of rounded stones scattered across the floor plane evokes the worn boulders and smoothed riverbed forms found along alpine waterways. A custom gray-blue rack arcs gently overhead, suggesting flow and current. Garments displayed here read against a cool chromatic field that contrasts with warmer material zones elsewhere in the store, subtly cueing movement between microclimates and encouraging visitors to circulate.

The Green Island and Footwear Experience
Another zone recalls a forest floor. Walls and carpet share a green tonal field that softens acoustics and invites tactile interaction. The carpeted surface is intentionally suggestive of grass, encouraging visitors to remove shoes and try on footwear in a setting that feels grounded, playful, and intimate. By aligning product testing with embodied sensation—a soft, “outdoor” underfoot feel—the design turns a standard retail task into a memorable experiential moment.

Lounge Corner as Social Interlude
A lounge nook in warm hues—mustard seating, a small round table, and a wooden bench—offers an intentional slowdown point within the circulation loop. The adjacent storefront opening frames controlled glimpses outward while preserving interior coziness, creating a threshold between public street and curated retail interior. Shoppers can rest, compare garments, or wait comfortably, extending the social dimension of the boutique and supporting group visits.
Light as Atmosphere and Orientation
Lighting is tuned to differentiate program zones without overwhelming the modest footprint. Focused illumination highlights products on the branch rail and granite counter, while softer ambient levels surround the tree and lounge areas. Reflected light off stone and pale surfaces modulates brightness across the looped path, guiding visitors intuitively from one island to the next. The contrast between cool and warm light temperatures further supports the environmental metaphors—river cool, forest soft, hearth warm.

Sustainability and Adaptive Reuse
Working within an existing urban shell beneath historically significant porticoes allowed the project to prioritize reuse over new construction. The selective introduction of salvaged granite and natural, minimally processed materials reduces embodied carbon relative to synthetic finish packages typical in fast-turnover retail. The compact 60-square-meter footprint supports efficient mechanical loads, while the biophilic emphasis draws psychological comfort from natural analogues rather than energy-intensive spectacle.

Brand Positioning Through Place
Diciassette.Morbegno leverages architecture as brand storytelling. Every material choice, spatial cue, and landscape reference reinforces rootedness in Morbegno’s geography and cultural memory. Customers do not merely shop; they participate in a narrative of alpine connection, stone craft, and local sensibility reframed for contemporary women’s fashion. In an era of homogenized global retail, this specificity becomes competitive identity.

The Diciassette Clothing Store interior design by RdN studio proves that small-scale commercial spaces can achieve outsized experiential and cultural impact when guided by biophilic principles, local material intelligence, and narrative-driven spatial sequencing. By centering a tree, honoring regional stone, abstracting the arches of the Ganda bridge, and choreographing movement through micro-landscapes, the boutique creates an architecture of belonging that elevates retail into place-based experience.

All the photographs are works of Marcello Mariana
Popular Articles
Popular articles from the community
Treehouse Apartment: A Warm Timber Interior Blending Craft, Play, and Contemporary Living
Warm timber apartment with integrated treehouse, combining natural materials, craftsmanship, and playful design to create a flexible, family-oriented living environment.
On the Brooks House by Monsoon Collective – A Contemporary Kerala Home Rooted in Tradition
Kerala home blending tradition and modernity with water-inspired design, brick architecture, courtyard planning, and sustainable rainwater harvesting strategies.
Inverted Architecture Installation by Studio Link-Arc: Exploring the Intersection of Architecture and Living Organisms
Inverted Architecture Installation by Studio Link-Arc blends mycelium, sustainability, inverted design, ecological cycles, and urban adaptive architecture in Shenzhen.
Atelier Macri Concept Store Interior Design by CASE-REAL
Atelier Macri store features a "ko" counter, walnut wood details, cork displays, blending retail, gallery, and seamless customer experiences.
Similar Reads
You might also enjoy these articles
Bamboo Housing Challenge 2026: Design Affordable, Sustainable Homes Using Bamboo
An international design competition by Bamboo U and IBUKU inviting architects and designers to reimagine affordable housing using bamboo — with the winning design built full-scale in Bali.
Computational Design & Education: Beegraphy Design Awards Introduces 7th Category (Featuring Jiyun's Innovative Approach)
Dive into Beegraphy’s 7th Design Awards category, where computational design meets education to create immersive, interactive learning tools, inspired by Jiyun’s work.
From Parametric Lighting to Urban Furniture: Join the 2nd Workshop in Beegraphy’s Computational Design Series
Dive into Cutting-Edge Design Techniques and Practical Applications with Industry Experts
Introducing Sphere by UNI: Pioneering a New Era in AEC Industry
Unlocking Global Potential with BIM and Agile Management
Explore Architecture Competitions
Discover active competitions in this discipline
The International Standard for Design Portfolios
The Global Benchmark for Architecture Dissertation Awards
The Global Benchmark for Graduation Excellence
Challenge to reimagine the Iron Throne
Comments (0)
Please login or sign up to add comments
No comments yet. Be the first to comment!