Discovering Modern Concrete Architecture: MC House by Cristián Romero Valente
Explore the MC House by Cristián Romero Valente, a stunning example of modern concrete architecture blending privacy with open living spaces.
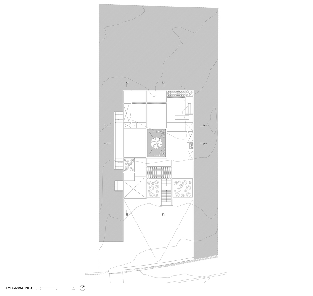
Concrete has become a staple in modern architectural design, known for its versatility, durability, and aesthetic flexibility. The MC House, situated in the scenic Chicureo Estate of Santiago, Chile, exemplifies the innovative use of concrete in contemporary homes. Designed by Cristián Romero Valente, this residence integrates modern architectural principles with the natural landscape.




Architectural Design of MC House
Strategic Use of Concrete
The MC House showcases the sophisticated use of reinforced concrete to create a structure that is both sturdy and visually striking. The concrete walls not only ensure the home's stability and security but also contribute to its minimalist aesthetic. This solid facade facing the street contrasts with the transparent back facade, which opens to the gardens, illustrating concrete’s versatility in modern architecture.




Privacy and Openness
A unique feature of MC House is its dual approach to privacy and openness. While the street-facing facade presents a solid, private exterior, the rear of the house opens up with large glass windows and terraces, fostering a connection with the outdoor environment. This design approach reflects a core principle of modern concrete architecture: balancing secure, private spaces with open, airy living areas.




Core Features and Layout
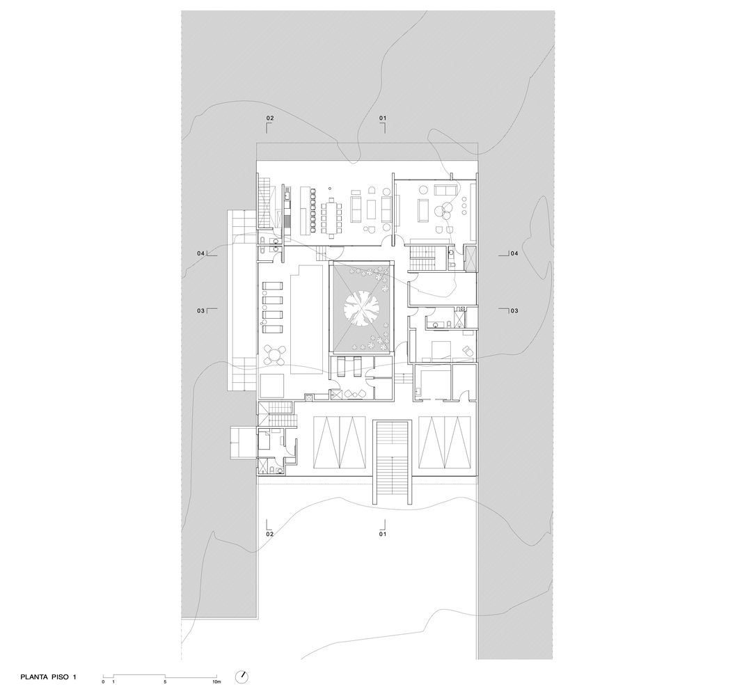
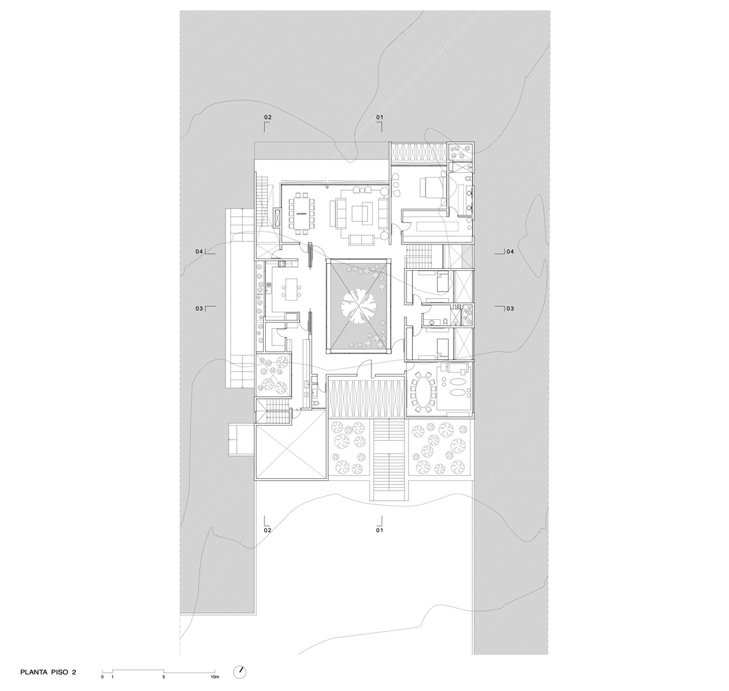
Central Courtyard and Indoor Pool
At the heart of MC House is a double-height central courtyard, which acts as a light well and a spatial organizer for the home. Surrounding this courtyard are key living areas, including an indoor pool and spa, which enhance the home’s luxury and functionality. The courtyard not only unifies the various spaces but also introduces natural light and greenery into the core of the home.



Spatial Dynamics
The first floor is designed with transparency and fluidity in mind, allowing for unobstructed views across different areas and into the central courtyard. This openness is facilitated by the strategic use of concrete and glass, which defines the spaces while maintaining a sense of continuity.


Sustainable Features and Interior Design
Natural Lighting and Ventilation
MC House incorporates several eco-friendly features, such as skylights and strategically placed eaves, to maximize natural lighting and reduce the need for artificial illumination. These elements, combined with the home’s layout, promote natural ventilation, helping to maintain a comfortable interior climate throughout the year.


Material Selection and Interior Aesthetics
The interior of MC House blends the cool, industrial feel of concrete with the warmth of wood cladding and furniture. This material combination enriches the home’s texture and color palette, creating a cozy yet modern living environment. The careful selection of materials reflects the architect’s commitment to sustainable and aesthetic design principles.





The Future of Modern Concrete Architecture
MC House by Cristián Romero Valente stands as a testament to the possibilities of modern concrete architecture. It demonstrates how concrete can be used to achieve both aesthetic beauty and functional design in residential architecture. As this architectural trend continues to evolve, projects like MC House will inspire future innovations in building and design, highlighting the enduring appeal of concrete in modern architecture.




All photographs are work of Juan Pablo Calderón