FBL House: A Masterpiece of Modern House Renovation by HGMA + Claudia Haguiara Arquitetura
This article explores the transformation of FBL House in São Paulo, blending 1940s architecture with a modern steel-structured extension.
Introduction to the FBL House Renovation
FBL House, located in a lush residential neighborhood of São Paulo, Brazil, represents a remarkable example of modern house renovation, combining architectural heritage with contemporary design. Developed by Claudia Haguiara Arquitetura in collaboration with HGMA, this project breathes new life into a 1940s single-story home while integrating a sleek, modern extension. The result is a harmonious dialogue between the past and the present, encapsulating the evolving identity of residential architecture.




Preserving History Through Modern House Renovation
The project began with the intention of demolishing the original 1940s house due to its deteriorated condition. However, upon visiting the site, both the architects and the client were captivated by the charm of the existing structure. This prompted a shift in vision, transforming what was once a demolition project into a modern house renovation. The decision was made to preserve part of the original home, embracing its historical value while enhancing it with modern interventions.




The original house was a modest structure with intimate rooms that opened onto a small garden, shaded by mature trees along the street. A hidden lap pool had been added to the property over time, further enriching the outdoor space. These elements collectively contributed to the home's nostalgic atmosphere, setting the stage for a sensitive renovation.




Architectural Concept: Uniting the Old and the New
The core concept of the renovation was to create a residence that preserved the essence of the existing house while introducing a modern wing tailored to contemporary living needs. The architects achieved this by establishing a longitudinal concrete corridor that acts as a spine, separating and connecting the two distinct sections of the house.




On one side lies the restored 1940s structure, characterized by traditional white walls, brick textures, and warm wooden finishes. On the other side stands the new wing, defined by a steel structure, black cladding, and expansive glass surfaces. This contrast between materials and colors highlights the transition from past to present, creating a visual narrative of architectural evolution.




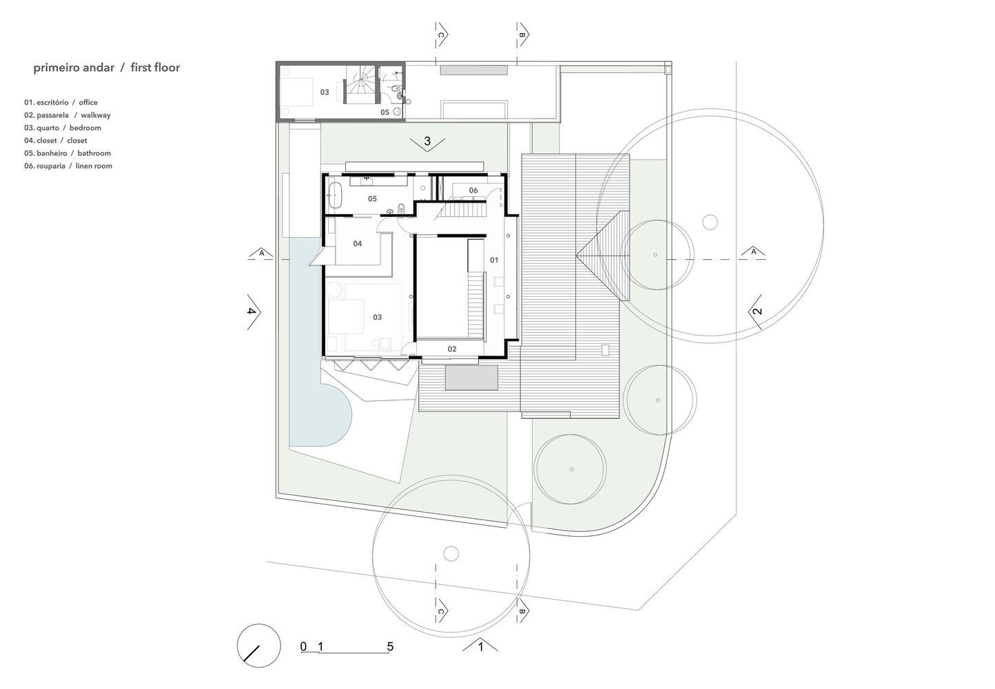
Spatial Organization and Interior Flow
The ground floor of the original house was meticulously restored to house the TV room, a cozy library, and the main kitchen. These spaces retain their original charm while incorporating modern amenities. Large windows frame views of the lush garden, fostering a connection to nature.



The new wing expands vertically across three floors, with large open-plan living and dining areas on the ground floor. These spaces are designed for fluidity, with seamless transitions between the indoors and the poolside terrace. A small grandstand connects the living room to the pool, encouraging informal gatherings and enhancing the social atmosphere.



On the upper floors, the master suite occupies the first level, offering privacy and elevated views of the surrounding greenery. A mezzanine level houses a home office, while the rooftop becomes a sanctuary with a hot tub, guest room, and solarium. An observation deck crowns the structure, providing panoramic views of the tree-lined neighborhood.



Blending Nature and Modern Design
A defining aspect of this modern house renovation is the integration of outdoor spaces into the architectural narrative. The project emphasizes natural light, ventilation, and views of the surrounding trees. Floor-to-ceiling windows in the new wing frame the landscape, blurring the boundary between the built environment and nature.


The rooftop garden and solarium offer a tranquil retreat, while the poolside terrace serves as an active gathering place. These spaces collectively promote well-being, transforming the house into a sanctuary that embraces the rhythms of nature.


Material Palette and Design Contrast
The renovation carefully balances contrasting materials to emphasize the distinction between old and new. The restored portion features white walls, roughcast surfaces, and timber flooring, evoking a sense of warmth and familiarity. Exposed wooden beams further enhance this classic aesthetic.


In contrast, the new wing employs steel, glass, and black cladding, resulting in a sleek, industrial-inspired appearance. Cold stone floors complement the minimalist design, while large glass openings flood the interiors with natural light. This material duality reflects the broader theme of the project—bridging history with modernity.



Functionality and Comfort
The functional layout of FBL House is designed to meet the diverse needs of a contemporary family. The integration of multiple kitchens, lounge areas, and guest accommodations ensures flexibility and convenience. The annex, situated at the end of the concrete corridor, houses the service area, a pool lounge, and an additional guest room, further expanding the home's capacity.



This modern house renovation exemplifies how architectural interventions can enhance functionality without compromising aesthetic integrity. The project demonstrates that preserving the past can coexist with forward-thinking design solutions.


Redefining Modern House Renovation
FBL House by HGMA and Claudia Haguiara Arquitetura serves as a benchmark in modern house renovation. By preserving the essence of a 1940s home while introducing a bold contemporary wing, the project showcases the potential of adaptive reuse in residential architecture. It celebrates the beauty of architectural contrast, proving that the fusion of history and modernity can result in spaces that are both timeless and innovative.




All Photographs are works of Christian Maldonado
Popular Articles
Popular articles from the community
Atelier Macri Concept Store Interior Design by CASE-REAL
Atelier Macri store features a "ko" counter, walnut wood details, cork displays, blending retail, gallery, and seamless customer experiences.
Inverted Architecture Installation by Studio Link-Arc: Exploring the Intersection of Architecture and Living Organisms
Inverted Architecture Installation by Studio Link-Arc blends mycelium, sustainability, inverted design, ecological cycles, and urban adaptive architecture in Shenzhen.
Solar Steam: A Climate-Responsive Architecture That Redefines the Monument
A climate-responsive memorial architecture that transforms heat, decay, and time into a living system reflecting humanity’s ecological impact.
Gads Hill Early Learning Center by JGMA: Adaptive Reuse Shaping Community-Focused Educational Architecture
Adaptive reuse transforms fragmented structure into vibrant early learning center with playful façade, natural light, and community-focused sustainable design.
Similar Reads
You might also enjoy these articles
The Ken Roberts Memorial Delineation Competition (Krob)
As the most senior architectural drawing competition currently in operation anywhere in the world, it draws hundreds of entries each year, awarding the very best submissions in a series of medium-based categories.
Waterfront Redevelopment and Urban Revitalization in Mumbai: Forging a New Dawn for Darukhana
A transformative waterfront redevelopment project reimagining Darukhana’s shipbreaking heritage into an inclusive urban future.
OUT-OF-MAP: A Call for Postcards on Feminist Narratives of Public Space
Rhizoma Design and Research Lab invites artists, designers, architects, researchers, and students to reflect on how feminist perspectives can reshape public space. Selected works will be exhibited in Barcelona, October 2026. Submissions open until 15 April 2026.
Documentation Work on Buddhist Wooden Temple
Architectural syncretism and cultural hybridity: A comparative study of the Buddhist temples in Chattogram Hill tracks
Explore Architecture Competitions
Discover active competitions in this discipline
The International Standard for Design Portfolios
The Global Benchmark for Architecture Dissertation Awards
The Global Benchmark for Graduation Excellence
Challenge to reimagine the Iron Throne
Comments (0)
Please login or sign up to add comments
No comments yet. Be the first to comment!