Floating Nest by YŪ Momoeda Architects: Adaptive Reuse of Residential Buildings in Japan
Floating Nest redefines adaptive reuse of residential buildings, transforming an outdated concrete home into a sustainable, flexible, and socially connected space.
The Floating Nest by YŪ Momoeda Architects is a striking example of adaptive reuse of residential buildings, transforming a 40-year-old reinforced concrete house in a regional Japanese city into a modern, energy-efficient, and socially relevant home. Through a process of subtraction, structural integration, and spatial reimagination, the project addresses Japan’s shifting demographics, aging housing stock, and the urgent need for sustainable renovation strategies.



Context and Existing Challenges
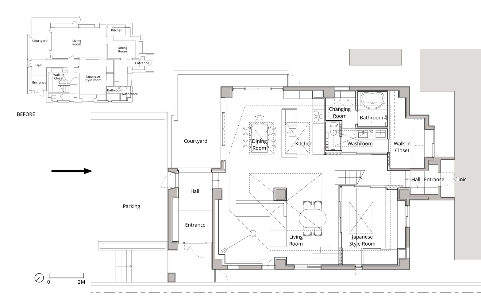
Originally a three-story home built under outdated seismic standards, the structure suffered from excessive unused space, poor insulation, and limited daylight due to its proximity to a neighboring medical clinic. The building’s size far exceeded the needs of a single-family household, and its compartmentalized plan made it feel closed-off and underutilized. The renovation aimed to modernize the building without wasteful demolition—focusing on improving natural light, reducing thermal loads, and consolidating the main living areas into a two-story arrangement.


Architectural Strategy: Light, Space, and Flexibility
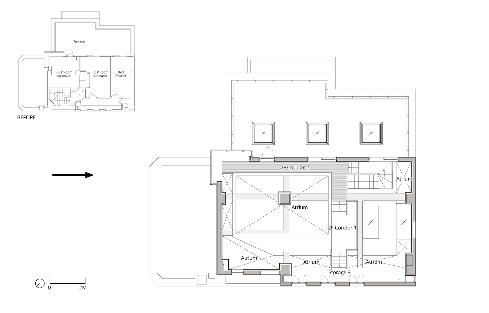
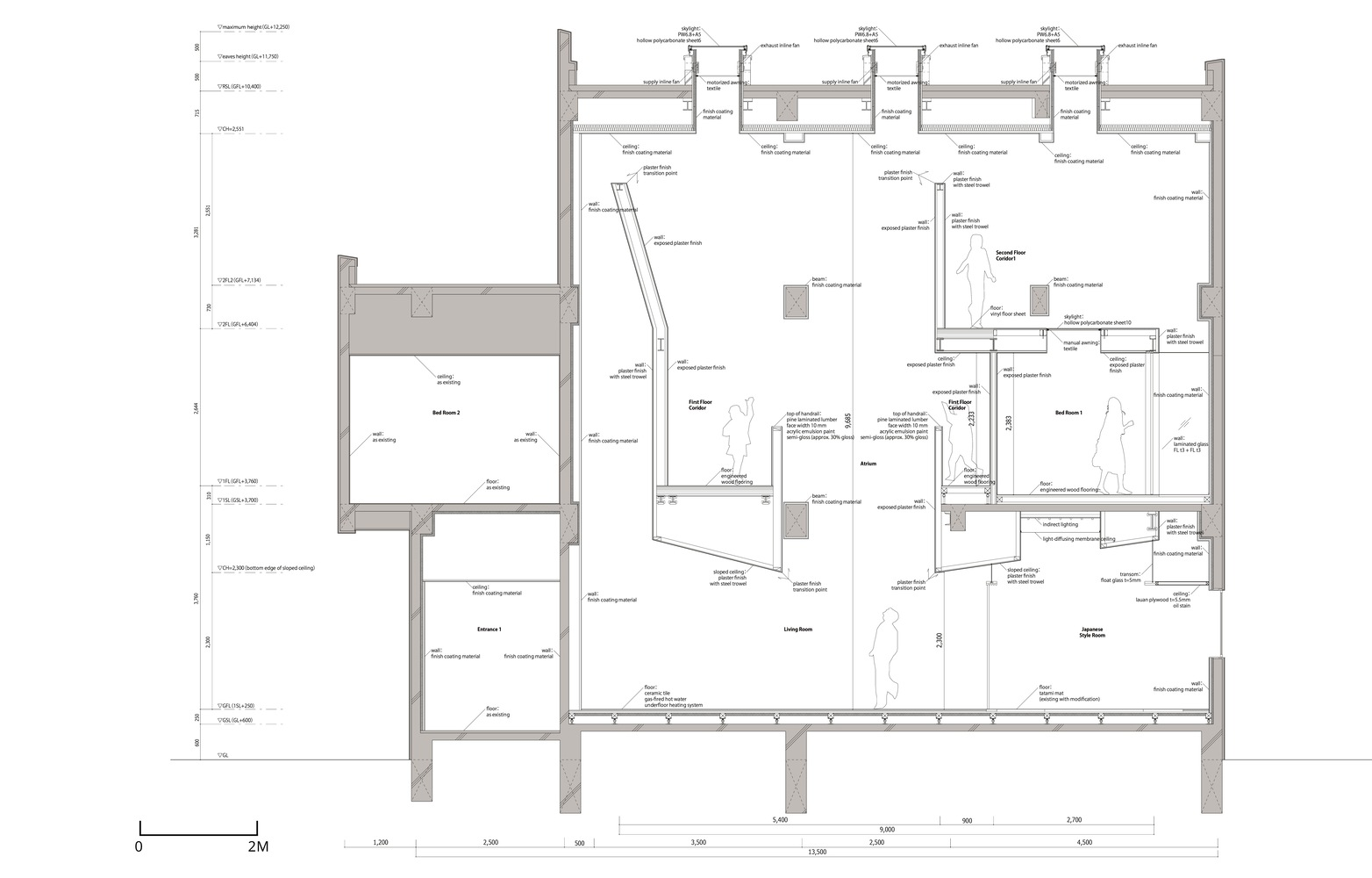
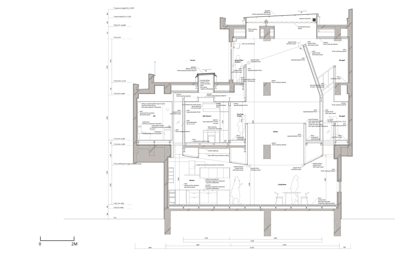
The design began with the removal of selected floor areas to create a large vertical void, introducing skylights and enabling daylight to reach the ground level. Within this void, a secondary structure—the “nest”—was inserted to house private rooms. Rather than standing independently, the nest is parasitically attached to the existing beams and columns, relying entirely on the host structure for seismic stability. This integration eliminates the need for new load-bearing walls, ensuring spatial flexibility for future reconfigurations.



The Nest as a Social and Environmental Element
The nest accommodates four private rooms and a connecting corridor, all facing the central shared void. This orientation allows light, air, and visual connections to circulate freely between private and communal spaces. An inner veranda links the nest to the common areas, acting as a transitional space where family members can sense each other’s presence even when apart. Initially, the team considered inserting rigid, box-like volumes into the existing frame. However, this would have reinforced a strict old-versus-new separation. By reinterpreting the existing concrete frame as an environmental partner rather than a constraint, the architects created a harmonious, floating element—much like a bird’s nest or mistletoe—integrated within the host volume.




Structural Reinforcement and Minimal Exterior Alterations
While the interior underwent substantial transformation, the exterior was altered only minimally: waterproofing, tile repairs, and upgraded windows. Structural repairs ensured compliance with modern seismic standards without requiring a full building permit. This restrained approach minimized environmental impact, reduced construction waste, and retained the building’s urban presence while making it functionally and aesthetically contemporary.



Adaptive Reuse as a Response to Societal Shifts
Japan faces a combination of population decline, an aging society, and a growing surplus of reinforced concrete buildings constructed in the postwar era. Projects like Floating Nest demonstrate how adaptive reuse of residential buildings can respond to these challenges by creating homes that are efficient, flexible, and socially connected. The design reflects a broader architectural philosophy: that meaningful innovation often comes not from new construction, but from reinterpreting and reactivating the structures we already have.



The Floating Nest is more than a home renovation—it is a model for resilient urban living. Through a delicate balance of subtraction and addition, parasitic integration, and sustainable design, YŪ Momoeda Architects have shown how the adaptive reuse of residential buildings can create spaces that serve both immediate family needs and future societal demands.


All the photographs are works of yashiro photo office
Popular Articles
Popular articles from the community
Treehouse Apartment: A Warm Timber Interior Blending Craft, Play, and Contemporary Living
Warm timber apartment with integrated treehouse, combining natural materials, craftsmanship, and playful design to create a flexible, family-oriented living environment.
A Contemporary Take on Iranian Residential Architecture
A modern interior design in Mashhad that reinterprets brick, light, and spatial flow to create a warm, contemporary residential architecture.
On the Brooks House by Monsoon Collective – A Contemporary Kerala Home Rooted in Tradition
Kerala home blending tradition and modernity with water-inspired design, brick architecture, courtyard planning, and sustainable rainwater harvesting strategies.
Solar Steam: A Climate-Responsive Architecture That Redefines the Monument
A climate-responsive memorial architecture that transforms heat, decay, and time into a living system reflecting humanity’s ecological impact.
Similar Reads
You might also enjoy these articles
Top 15 Architecture Competitions to Enter in 2026
From student-friendly idea competitions to prestigious international awards, here are the best architecture competitions open for entries in 2026. Updated regularly.
DIY & Engineering in Computational Design : Enter the BeeGraphy Design Awards
Showcase Your Creativity with Computational Design and Open Source Projects

Innovative Design Solutions: Award-Winning Projects from Recent Architecture Competitions
Exploring award-winning architectural projects shaping the future of design, sustainability, and community.
Explore Architecture Competitions
Discover active competitions in this discipline
The International Standard for Design Portfolios
The Global Benchmark for Architecture Dissertation Awards
The Global Benchmark for Graduation Excellence
Challenge to reimagine the Iron Throne
Comments (0)
Please login or sign up to add comments
No comments yet. Be the first to comment!