House in Santa Emilia: A Reflection of Modern Suburban Architecture by Anibal Bizzotto and Bruno Sirabo
The House in Santa Emilia combines traditional construction with modern design in a suburban setting, reflecting contemporary architectural trends.
Modern suburban architecture encompasses designs that merge contemporary aesthetics with the practical needs of suburban living. The House in Santa Emilia in Villa Rosa, Argentina, designed by Anibal Bizzotto and Bruno Sirabo, exemplifies this by blending traditional construction methods with modern design principles to create a home that suits the middle-class lifestyle in gated communities.




Architectural Design and Concept
Embracing Traditional Construction with a Contemporary Twist
The House in Santa Emilia adheres to conventional construction techniques while incorporating a contemporary design that makes it stand out in a gated community. The architects aimed to create a home that fits seamlessly within its environment yet provides a unique aesthetic through its thoughtful layout and structural elements.





Strategic Use of Space and Light
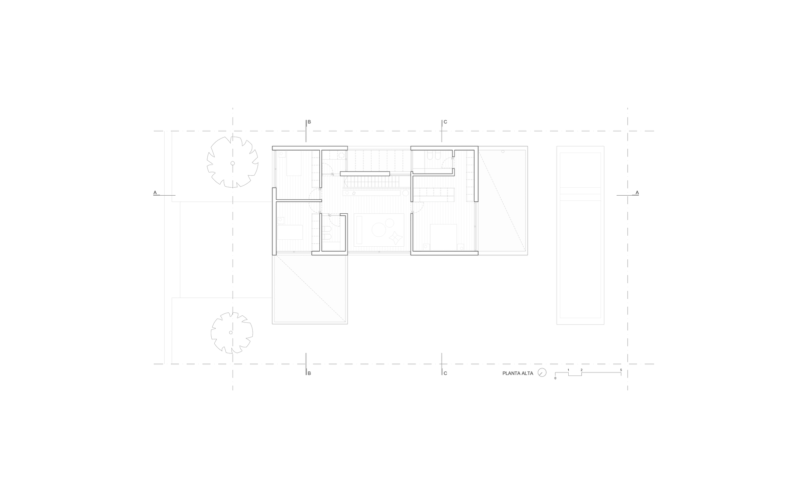
The home is designed to maximize the use of a compact lot, with a layout that enhances the flow of natural light and facilitates family interaction. The ground floor features a spacious living-dining area extending directly into the garden, highlighted by large windows that span nine meters in length, enhancing the connection between indoor and outdoor spaces.





Key Features of the Design
Functional and Flexible Living Areas
The design includes a semi-covered entrance that leads to a versatile space which can function as a consulting room or guest bedroom, providing flexibility depending on the homeowners' needs. The main living areas on the ground floor are designed for openness and fluidity, promoting family activities and gatherings.




Private and Communal Spaces
On the first floor, the layout separates the parents' area from the children's bedrooms, with an intimate living room connecting these spaces. This arrangement allows for both private moments and shared family time, demonstrating the architects' focus on catering to the dynamics of family life.


Material Selection and Construction Techniques
Sustainable and Local Materials
The construction utilizes locally sourced materials like wooden formwork for concrete and hollow brick masonry, which ensures thermal comfort and suits the suburban environment. The use of simple, durable materials reflects a commitment to sustainability and practicality.



Integration with the Natural Environment
The architects have chosen materials and colors that harmonize with the natural surroundings. The external white cement finish and plastered interiors reflect light and contribute to the home’s thermal efficiency, while metal pillars on the ground floor add a touch of modernity and lightness to the structure.




Redefining Suburban Living
The House in Santa Emilia by Anibal Bizzotto and Bruno Sirabo stands as a prime example of modern suburban architecture. It reflects how contemporary design can be harmoniously integrated into a suburban setting, providing functional, beautiful living spaces that meet the needs of modern families. This project serves as an inspiration for future suburban architectural endeavors, emphasizing sustainability, community, and quality of life.




All photographs are work of Albano García
Popular Articles
Popular articles from the community
The Ken Roberts Memorial Delineation Competition (Krob)
As the most senior architectural drawing competition currently in operation anywhere in the world, it draws hundreds of entries each year, awarding the very best submissions in a series of medium-based categories.
Alton Cliff House: A Harmonious Retreat by f2a Architecture in Lake Country, Canada
Alton Cliff House blends corten steel, prefabrication, and sustainable design, creating a luxurious, energy-efficient retreat perched on Canadian cliffs.
Split House: A Compact Urban Home Blending Privacy, Light, and Flexible Living in Japan
Compact Japanese home featuring DOMA space, flexible café potential, passive lighting, privacy zoning, and sustainable urban living design.
Atelier Macri Concept Store Interior Design by CASE-REAL
Atelier Macri store features a "ko" counter, walnut wood details, cork displays, blending retail, gallery, and seamless customer experiences.
Similar Reads
You might also enjoy these articles
The Ken Roberts Memorial Delineation Competition (Krob)
As the most senior architectural drawing competition currently in operation anywhere in the world, it draws hundreds of entries each year, awarding the very best submissions in a series of medium-based categories.
Waterfront Redevelopment and Urban Revitalization in Mumbai: Forging a New Dawn for Darukhana
A transformative waterfront redevelopment project reimagining Darukhana’s shipbreaking heritage into an inclusive urban future.
OUT-OF-MAP: A Call for Postcards on Feminist Narratives of Public Space
Rhizoma Design and Research Lab invites artists, designers, architects, researchers, and students to reflect on how feminist perspectives can reshape public space. Selected works will be exhibited in Barcelona, October 2026. Submissions open until 15 April 2026.
Documentation Work on Buddhist Wooden Temple
Architectural syncretism and cultural hybridity: A comparative study of the Buddhist temples in Chattogram Hill tracks
Explore Architecture Competitions
Discover active competitions in this discipline
The International Standard for Design Portfolios
The Global Benchmark for Architecture Dissertation Awards
The Global Benchmark for Graduation Excellence
Challenge to reimagine the Iron Throne
Comments (0)
Please login or sign up to add comments
No comments yet. Be the first to comment!