Kimitsu House: A Thoughtful Approach to Traditional Japanese House Renovation
Kimitsu House is a refined example of traditional Japanese house renovation, preserving historical elements while introducing modern updates to enhance functionality and livability.
The traditional Japanese house renovation of Kimitsu House by ROOVICE is a masterful blend of historical preservation and modern adaptation. Located in Kimitsu, Chiba, this 1960s wooden house had stood vacant for years before being revitalized through the Kariage initiative. The project aimed to honor the original craftsmanship while introducing subtle modifications that improve functionality and comfort. The result is a home that retains its cultural identity while embracing contemporary living.




Preserving Architectural Heritage
Kimitsu House reflects the architectural traditions of Japan, with natural materials such as wood and stone forming the essence of its structure. One of its most striking elements is the kura—a traditional fireproof storage building made with stone bricks and iron-reinforced doors. The renovation focused on preserving these defining features rather than making drastic alterations.



To highlight the kura, the team removed an extension that partially obscured its entrance. A large 2m × 2m fixed window was installed, creating a framed view of the structure and emphasizing its presence. The doors of the kura were restored and repainted, transforming them into a focal point within the house. Inside, larch plywood flooring finished in a grey EP wipe-off coating replaced the original soil floor, enhancing usability while maintaining a connection to traditional materials.



Modernizing the Spatial Layout
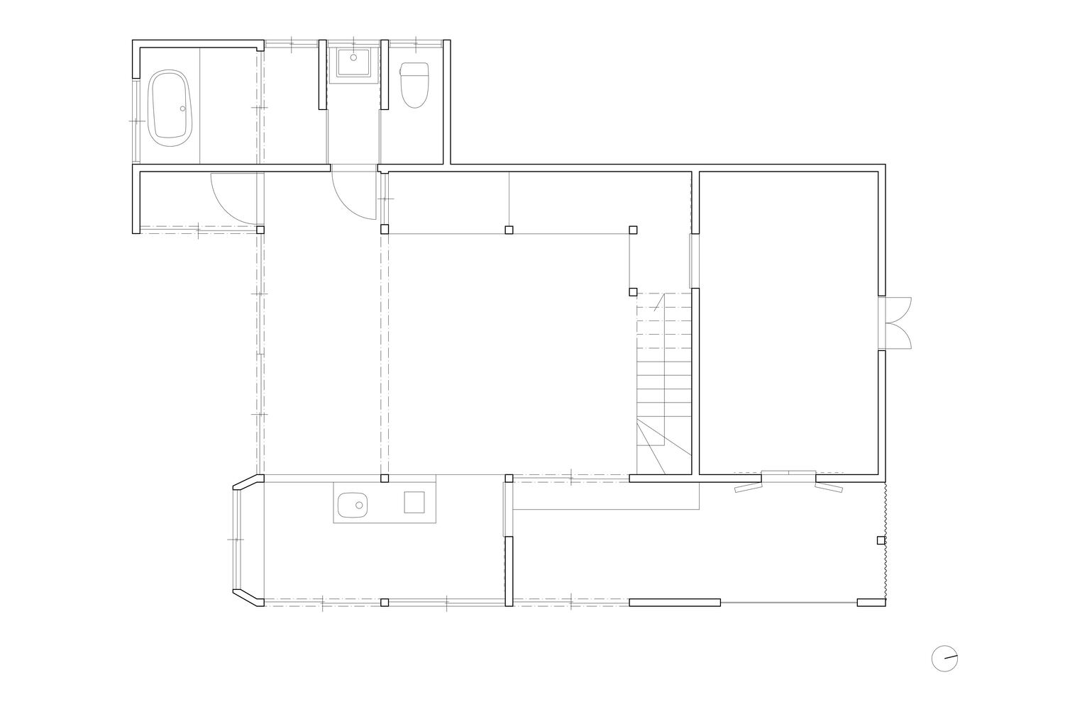
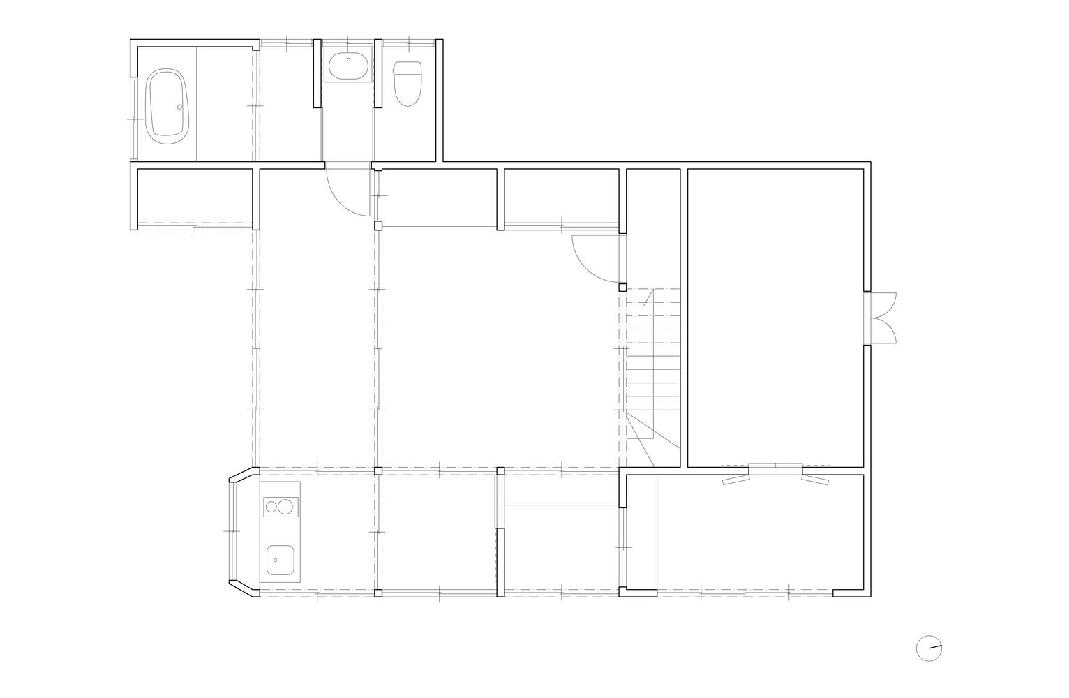
One of the key objectives of this traditional Japanese house renovation was to improve spatial functionality while preserving the home's essence. The original separation between the kura and the main house was removed, creating an open and flexible layout. The once-enclosed staircase was exposed, bringing in more light and establishing a stronger visual connection between different parts of the house.



The first floor was reconfigured to create an open-plan living area. The kitchen was relocated to face the living room, improving circulation and interaction. A pony wall was added to subtly define the kitchen space without disrupting the open feel. The flooring in certain areas, such as the former engawa (exterior corridor), was updated with grey PVC sheets, contrasting with the natural wood flooring to delineate different functional zones.



Enhancing Natural Light and Connectivity
Lighting played a crucial role in the renovation. The walls were painted white to reflect light, creating a bright and airy atmosphere. The removal of built-in wardrobes exposed markings on the walls, which were intentionally left visible, adding a layer of historical texture to the space.



A significant improvement was made to the laundry area, which previously could only be accessed from outside. A new interior door was introduced, seamlessly integrating the space into the house’s main circulation. In the bathroom, a new sink was installed on the existing countertop, and a mirror was mounted directly onto the original ornamental window, preserving its decorative role while enhancing usability.

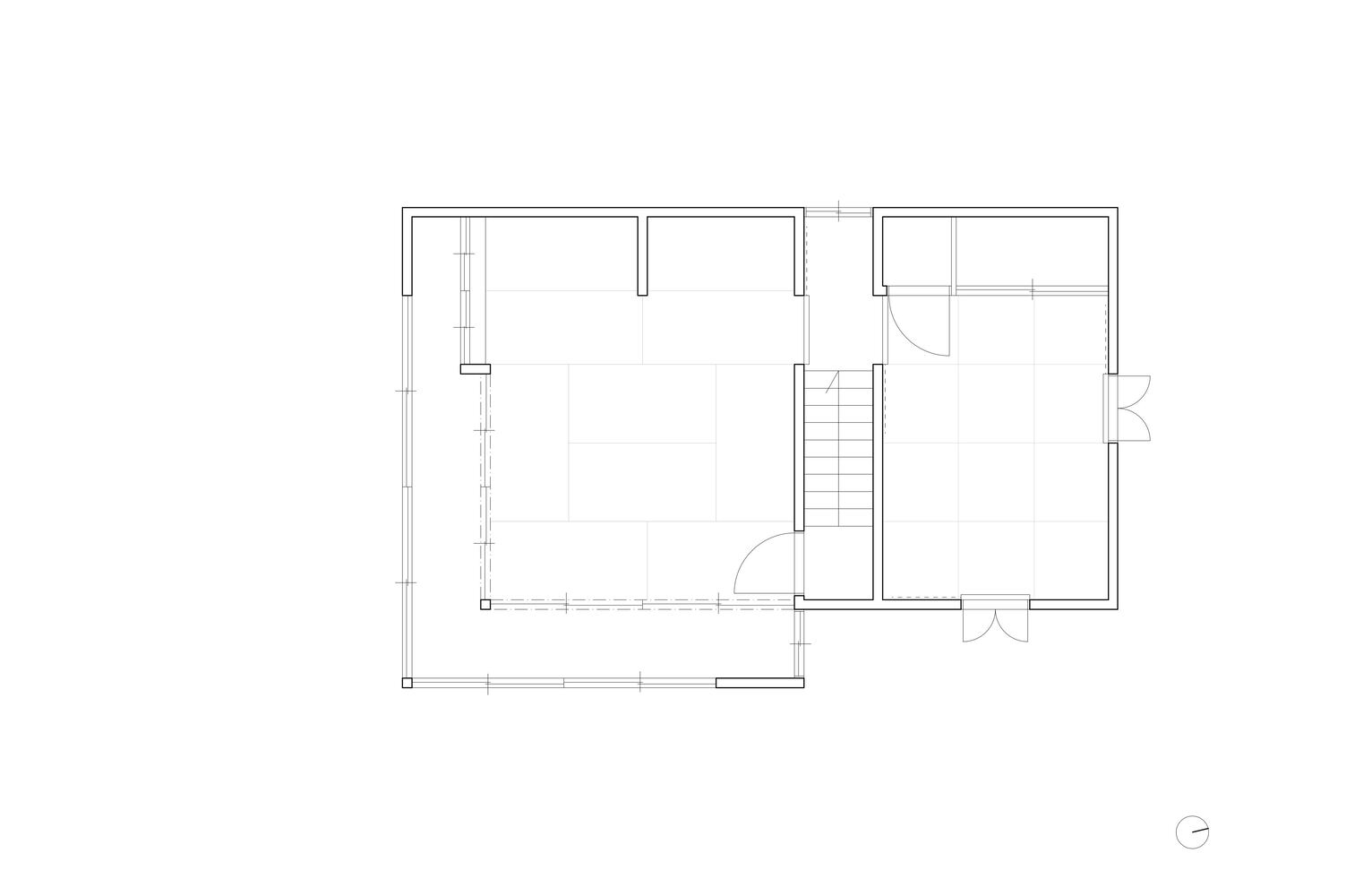
Respecting Tradition on the Second Floor
Minimal modifications were made to the second floor to maintain its traditional aesthetic. The tatami flooring in the main room was carefully restored, while other elements, such as the tokonoma (decorative alcove), remained unchanged. A stainless steel pole was added to introduce a functional update, allowing the alcove to serve as a space for hanging clothes while retaining its visual integrity.



The kura storage area, accessible from the second floor, underwent subtle updates to enhance its usability. The larch plywood flooring was finished in a red accent EP wipe-off coating, introducing a subtle contrast to the natural materials. The original ceiling boards were removed to expose the structure’s wooden framework, revealing layers of the building’s history.



Two small traditional windows with iron bars were slightly modified by introducing an opening in the center. This adjustment allowed for increased natural light while preserving the architectural character of the windows. The original sliding doors and shutters were also repainted, refreshing their appearance without altering their historical essence.





A Balanced Approach to Renovation
The Kimitsu House renovation exemplifies how a traditional Japanese house renovation can balance historical preservation with modern living requirements. Rather than imposing drastic changes, the project focused on thoughtful, minimal interventions that enhance functionality while celebrating the home’s original craftsmanship.






By respecting the house’s past and making subtle updates for the present, ROOVICE has ensured that Kimitsu House can be appreciated and lived in for generations to come. This approach offers a sustainable model for revitalizing Japan’s growing number of akiya (vacant homes), demonstrating that old houses can be transformed into comfortable, livable spaces while maintaining their cultural and architectural significance.




All photographs are works of Akira Nakamura
Popular Articles
Popular articles from the community
An Miên Lumière Cafe by xưởng xép, Ho Chi Minh City, Vietnam
An industrial-inspired café where layered steel and warm light create a dynamic, immersive environment shaped by reflection, depth, and perception.
Flamboyant House by Juliana Camargo + Prumo Projetos
Modern Brazilian house integrating existing tree, pool, and volumes with glass, wood, and transitional spaces blending interior, exterior, and landscape seamlessly.
Atelier Macri Concept Store Interior Design by CASE-REAL
Atelier Macri store features a "ko" counter, walnut wood details, cork displays, blending retail, gallery, and seamless customer experiences.
Inverted Architecture Installation by Studio Link-Arc: Exploring the Intersection of Architecture and Living Organisms
Inverted Architecture Installation by Studio Link-Arc blends mycelium, sustainability, inverted design, ecological cycles, and urban adaptive architecture in Shenzhen.
Similar Reads
You might also enjoy these articles
Top 15 Architecture Competitions to Enter in 2026
From student-friendly idea competitions to prestigious international awards, here are the best architecture competitions open for entries in 2026. Updated regularly.
DIY & Engineering in Computational Design : Enter the BeeGraphy Design Awards
Showcase Your Creativity with Computational Design and Open Source Projects

Innovative Design Solutions: Award-Winning Projects from Recent Architecture Competitions
Exploring award-winning architectural projects shaping the future of design, sustainability, and community.
Explore Architecture Competitions
Discover active competitions in this discipline
The International Standard for Design Portfolios
The Global Benchmark for Architecture Dissertation Awards
The Global Benchmark for Graduation Excellence
Challenge to reimagine the Iron Throne
Comments (0)
Please login or sign up to add comments
No comments yet. Be the first to comment!