Lookout Tower Vysoké Pole: A Fusion of Nature, Simplicity, and Modern Craftsmanship
A sustainable 15-meter-high timber tower offering stunning views of Vysoké Pole and the evolving Vlachovice Waterworks.
A New Landmark in Vysoké Pole
In the charming Zlín region of the Czech Republic, m.aus architects have designed the Lookout Tower Vysoké Pole, a 15-meter-high structure offering breathtaking views of the surrounding landscape and the Vlachovice Waterworks project. Built in 2022, this tower is a testament to architectural simplicity, sustainable design, and the harmonious integration of function and aesthetics.


Purpose and Location: Enhancing Rural Exploration
The Lookout Tower is strategically situated near Díly Hill, accessible by a newly constructed cycle path. Its position is not atop a mountain peak but instead complements the future Vlachovice Waterworks, set to flood the nearby valley by 2030. Visitors can enjoy panoramic views of the tranquil countryside and observe the progression of this significant infrastructure project.


Architectural Design: A Minimalist Approach
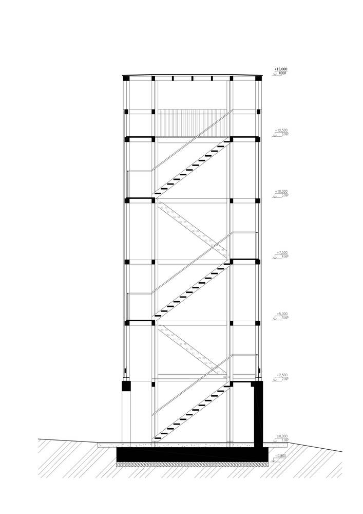
Structural Composition
The tower comprises:
- Concrete Plinth Base: A robust fair-faced concrete foundation forms the first storey.
- Timber Framework: Five wooden storeys of larch timber create a total height of 15 meters.
- Steel Reinforcements: Steel connectors ensure joint durability and minimize maintenance needs.
This combination of materials balances the warmth of wood with the strength of steel, achieving both durability and elegance.




Exterior Aesthetic
The outer shell features timber lathing, thickening as it ascends, creating a visually dynamic texture. The hipped roof, made of asphalt strips, shelters the observation deck, blending practicality with design simplicity.


Interior Experience: A Journey to the Top
Double Wooden Staircase
A central wooden staircase spirals upward, offering visitors a seamless journey through the tower. Its natural timber finish complements the surrounding landscape and enhances the tactile experience of climbing to the observation deck.


Observation Deck
At the summit, the open deck provides sweeping views of Wallachian country, making the ascent both rewarding and memorable.



Sustainability and Craftsmanship
Sustainable Materials
- Larch Timber: Chosen for its natural resistance to decay and low maintenance requirements.
- Galvanized Steel: Ensures the longevity of structural joints exposed to weather elements.

Crafted for Longevity
Subtle steel joints enhance the strength of the tower while maintaining an understated aesthetic. These details underscore the precision and thoughtfulness of m.aus architects.

Visitor Amenities: Welcoming Tourists
The surrounding area is paved, offering a welcoming space for tourists and cyclists to rest. Whether exploring the Wallachian countryside on foot or by bike, the Lookout Tower serves as a serene and inspiring waypoint.

A Model of Rural Architectural Excellence
The Lookout Tower Vysoké Pole stands as more than just an observation point; it is a symbol of thoughtful design, sustainability, and community integration. By harmonizing modern techniques with the natural environment, m.aus architects have created a timeless structure that enhances the region's charm and functionality.


All photographs are work of Julius Filip
Popular Articles
Popular articles from the community
Inverted Architecture Installation by Studio Link-Arc: Exploring the Intersection of Architecture and Living Organisms
Inverted Architecture Installation by Studio Link-Arc blends mycelium, sustainability, inverted design, ecological cycles, and urban adaptive architecture in Shenzhen.
The Ken Roberts Memorial Delineation Competition (Krob)
As the most senior architectural drawing competition currently in operation anywhere in the world, it draws hundreds of entries each year, awarding the very best submissions in a series of medium-based categories.
A Contemporary Take on Iranian Residential Architecture
A modern interior design in Mashhad that reinterprets brick, light, and spatial flow to create a warm, contemporary residential architecture.
Louis Malle Cinema: A Limestone Cultural Landmark Revitalizing Community Life in Prayssac
Limestone cinema extension with public forecourt, blending heritage and modern design to create flexible cultural spaces and strengthen community interaction.
Similar Reads
You might also enjoy these articles
The Ken Roberts Memorial Delineation Competition (Krob)
As the most senior architectural drawing competition currently in operation anywhere in the world, it draws hundreds of entries each year, awarding the very best submissions in a series of medium-based categories.
Waterfront Redevelopment and Urban Revitalization in Mumbai: Forging a New Dawn for Darukhana
A transformative waterfront redevelopment project reimagining Darukhana’s shipbreaking heritage into an inclusive urban future.
OUT-OF-MAP: A Call for Postcards on Feminist Narratives of Public Space
Rhizoma Design and Research Lab invites artists, designers, architects, researchers, and students to reflect on how feminist perspectives can reshape public space. Selected works will be exhibited in Barcelona, October 2026. Submissions open until 15 April 2026.
Documentation Work on Buddhist Wooden Temple
Architectural syncretism and cultural hybridity: A comparative study of the Buddhist temples in Chattogram Hill tracks
Explore Architecture Competitions
Discover active competitions in this discipline
The International Standard for Design Portfolios
The Global Benchmark for Architecture Dissertation Awards
The Global Benchmark for Graduation Excellence
Challenge to reimagine the Iron Throne
Comments (0)
Please login or sign up to add comments
No comments yet. Be the first to comment!