Mathamangalam House: A Stunning Tropical House Design by SOHO Architects
The article highlights the Mathamangalam House's tropical design, blending sustainability, functionality, and aesthetics to suit Kerala's climate.
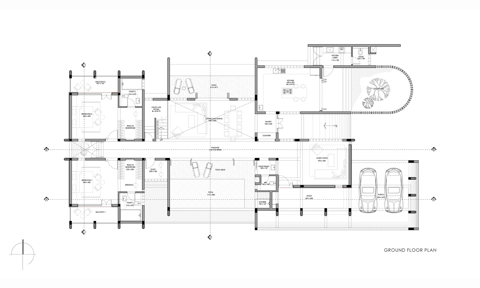
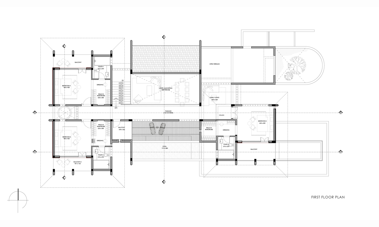
The Mathamangalam House, designed by SOHO Architects, is a masterful example of tropical house design located in the serene village of Mathamangalam, Kannur, Kerala. This 5000-square-foot residence is a harmonious blend of modern architectural elements and traditional design strategies, perfectly adapted to Kerala's humid tropical climate. The house integrates its elevated topography and natural surroundings into a living experience that is both functional and visually captivating.




A Gradual Approach to the Tropical Retreat
The journey to the Mathamangalam House begins with a gradual ascent, guided by the site's elevated topography. The design takes full advantage of the expansive foreground, creating a sense of anticipation as one approaches the residence. This rising progression draws visitors into a deeper connection with the surrounding natural environment, allowing the home to reveal itself gradually and organically.




A Thoughtfully Organized Layout
The Mathamangalam House is composed of two distinct blocks designed for functionality and comfort. The first block contains the sleeping quarters, offering a private and tranquil retreat for the residents. The second block houses the guest living areas, kitchen, and service zones, ensuring an efficient flow of daily activities.


Linking these two blocks is a long, expansive family area that serves as the home's vibrant core. The family space features a double-height ceiling, enhancing its openness and grandeur. Large windows and sliding doors connect this central area to outdoor spaces, creating a seamless indoor-outdoor living experience. On one side of the family area lies a serene swimming pool, while the other side features a peaceful garden court, blending relaxation with nature.



Adapting to Kerala's Tropical Climate
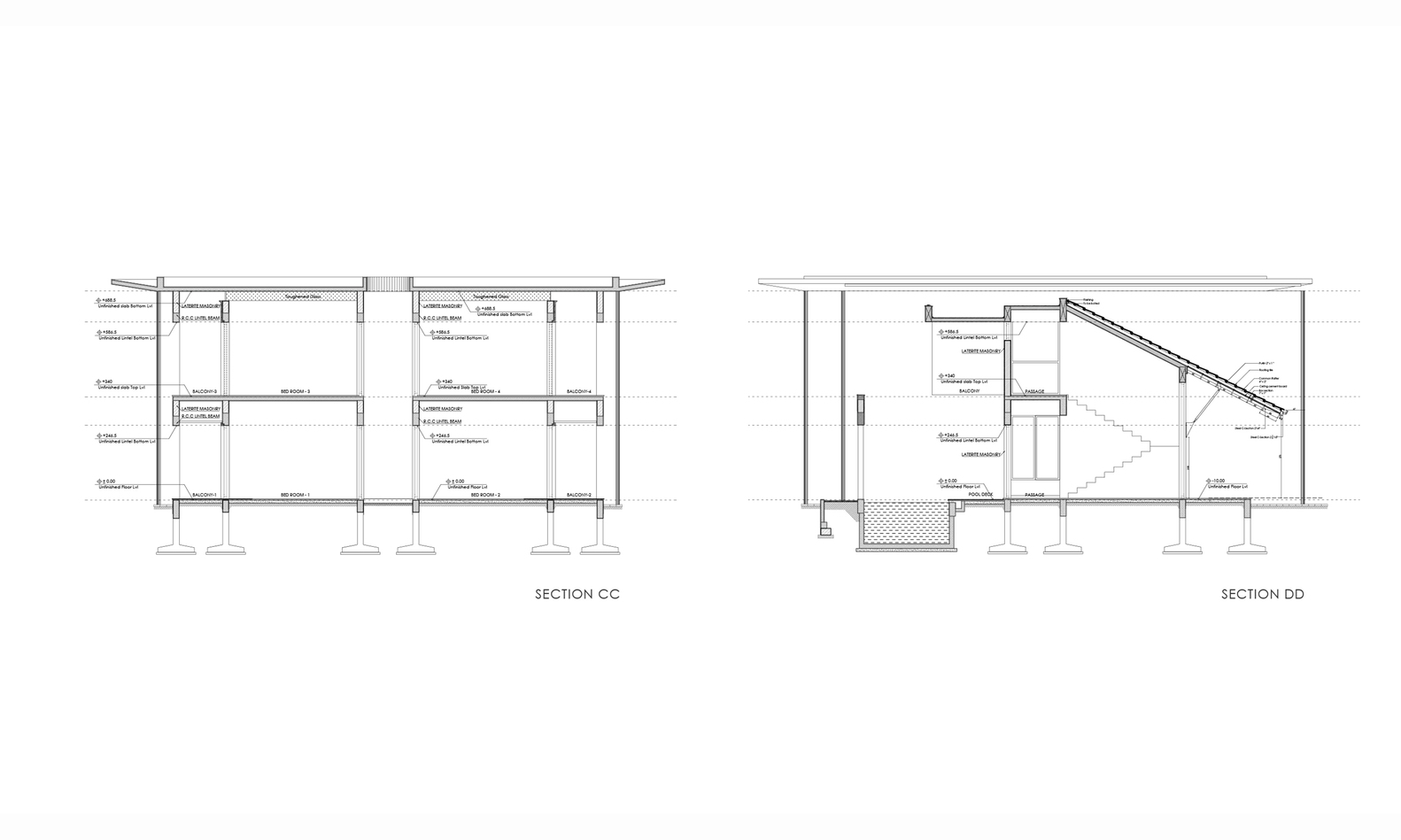
The design of Mathamangalam House responds intelligently to Kerala's humid tropical climate. The house's orientation is strategically planned to align with the predominant southwest and northeast wind patterns, ensuring continuous ventilation throughout the year. This thoughtful approach minimizes the reliance on artificial cooling systems, enhancing energy efficiency and creating a sustainable living environment.


Overhanging roofs supported by double-height columns further protect the house from direct sunlight while adding a rhythmic elegance to the façade. These design elements ensure that the residence remains cool and comfortable while maintaining a striking architectural presence.


Balancing Privacy and Openness
Privacy and openness are meticulously balanced in the design of Mathamangalam House. Perforated walls are strategically placed around the kitchen court and the pool area, creating a sense of enclosure for private spaces while allowing natural airflow. The perforations serve a dual purpose by maintaining ventilation and establishing a visual connection to the outdoors.


The design ensures that intimate spaces, such as the kitchen and pool, remain shielded from direct view, creating a private oasis within the home. At the same time, the open and airy layout fosters a connection between the interior and the surrounding natural environment.



A Perfect Blend of Functionality and Aesthetics
The Mathamangalam House exemplifies the principles of tropical house design through its seamless integration of nature, climate responsiveness, and thoughtful spatial planning. SOHO Architects have created a residence that embodies tranquility and functionality, setting a benchmark for sustainable and elegant architecture in tropical climates.





All Photographs are work of Varun Gopal, Abin Biju
Popular Articles
Popular articles from the community
A Contemporary Take on Iranian Residential Architecture
A modern interior design in Mashhad that reinterprets brick, light, and spatial flow to create a warm, contemporary residential architecture.
Atelier Macri Concept Store Interior Design by CASE-REAL
Atelier Macri store features a "ko" counter, walnut wood details, cork displays, blending retail, gallery, and seamless customer experiences.
Solar Steam: A Climate-Responsive Architecture That Redefines the Monument
A climate-responsive memorial architecture that transforms heat, decay, and time into a living system reflecting humanity’s ecological impact.
The Ken Roberts Memorial Delineation Competition (Krob)
As the most senior architectural drawing competition currently in operation anywhere in the world, it draws hundreds of entries each year, awarding the very best submissions in a series of medium-based categories.
Similar Reads
You might also enjoy these articles
The Ken Roberts Memorial Delineation Competition (Krob)
As the most senior architectural drawing competition currently in operation anywhere in the world, it draws hundreds of entries each year, awarding the very best submissions in a series of medium-based categories.
Waterfront Redevelopment and Urban Revitalization in Mumbai: Forging a New Dawn for Darukhana
A transformative waterfront redevelopment project reimagining Darukhana’s shipbreaking heritage into an inclusive urban future.
OUT-OF-MAP: A Call for Postcards on Feminist Narratives of Public Space
Rhizoma Design and Research Lab invites artists, designers, architects, researchers, and students to reflect on how feminist perspectives can reshape public space. Selected works will be exhibited in Barcelona, October 2026. Submissions open until 15 April 2026.
Documentation Work on Buddhist Wooden Temple
Architectural syncretism and cultural hybridity: A comparative study of the Buddhist temples in Chattogram Hill tracks
Explore Architecture Competitions
Discover active competitions in this discipline
The International Standard for Design Portfolios
The Global Benchmark for Architecture Dissertation Awards
The Global Benchmark for Graduation Excellence
Challenge to reimagine the Iron Throne
Comments (0)
Please login or sign up to add comments
No comments yet. Be the first to comment!