Minimalist Retail Store Design: 025S Harajuku Store by ATELIER KHJ
The 025S Harajuku Store by ATELIER KHJ redefines minimalist retail store design, blending fragrance, memory, and architecture into an immersive experience.
A Fusion of Scent and Space in the Heart of Tokyo
The 025S Harajuku Store, designed by ATELIER KHJ, is the first official showroom in Japan for the Korean scent brand POINTTWOFIVE.SECOND. Located in Shibuya, Tokyo, this retail space redefines the sensory shopping experience through a minimalist retail store design that reflects the brand’s philosophy of ‘time’ and ‘memory.’ The showroom merges architectural form with olfactory storytelling, transforming fragrance sampling into an immersive, interactive experience.



Concept and Spatial Narrative
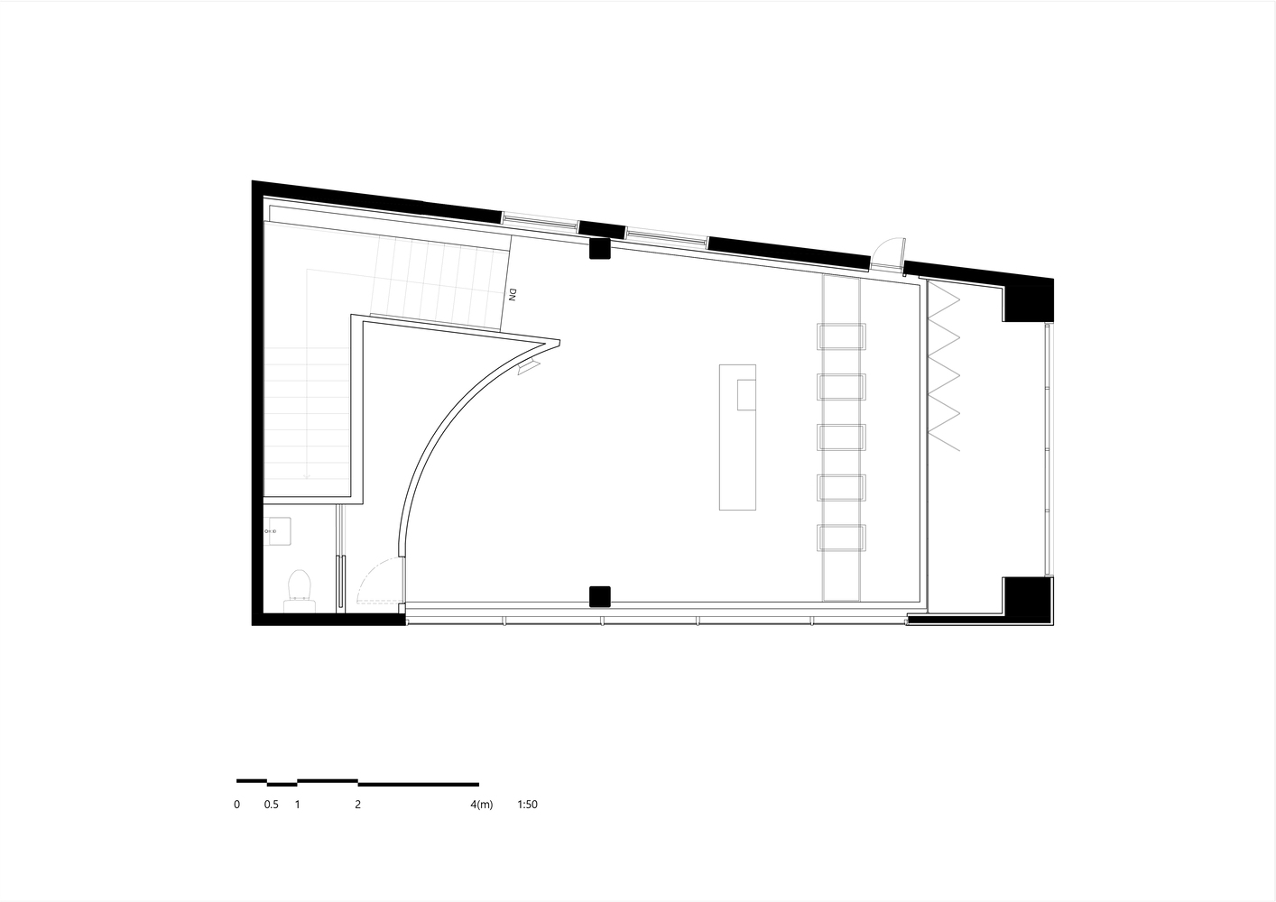
At the core of the design is the concept of a memory-evoking repository. The showroom is structured as a curated archive of scents, where each fragrance serves as a portal to a past moment, reinforcing the brand’s connection to time and personal recollections. Spread across two floors, the space is intentionally designed to go beyond conventional retail functions, offering visitors a setting where they can engage with scents in a contemplative and meaningful way.


Design Aesthetics: A Minimalist Approach
The architecture embraces minimalist retail store design principles, using clean lines, neutral tones, and carefully curated materials to create a serene environment. Industrial elements such as glass, steel, and concrete blend seamlessly with soft lighting and structured forms, allowing the focus to remain on the sensory experience. The functional fragrance counter stands as the iconic centerpiece, enhancing the interplay between space and scent.




User Experience and Interaction
Unlike traditional retail spaces, the 025S Harajuku Store encourages a deeper engagement with the product. Visitors do not simply browse but instead participate in a ritualistic process of selecting scents that resonate with their memories. The showroom’s layout promotes fluid movement, guiding individuals through different scent experiences in a natural, intuitive manner. This immersive strategy transforms the act of fragrance sampling into a sensory journey.



Redefining Retail Architecture
By integrating scent, memory, and minimalist retail store design, the 025S Harajuku Store reimagines the way customers interact with a brand. This project stands as a testament to how architecture can enhance brand storytelling, offering a space that is not only functional but also deeply experiential. ATELIER KHJ’s design for POINTTWOFIVE.SECOND sets a new standard for retail interiors, proving that a showroom can be more than just a place of transaction—it can be a space of emotion, engagement, and lasting impression.




All Photographs are works of Sun Kim(ATELIER KHJ)
Popular Articles
Popular articles from the community
Gads Hill Early Learning Center by JGMA: Adaptive Reuse Shaping Community-Focused Educational Architecture
Adaptive reuse transforms fragmented structure into vibrant early learning center with playful façade, natural light, and community-focused sustainable design.
The Ken Roberts Memorial Delineation Competition (Krob)
As the most senior architectural drawing competition currently in operation anywhere in the world, it draws hundreds of entries each year, awarding the very best submissions in a series of medium-based categories.
Inverted Architecture Installation by Studio Link-Arc: Exploring the Intersection of Architecture and Living Organisms
Inverted Architecture Installation by Studio Link-Arc blends mycelium, sustainability, inverted design, ecological cycles, and urban adaptive architecture in Shenzhen.
Fifth NRE Jazz Club – De Bever Architecten: Eindhoven’s Revitalized Cultural Hub
Historic gas factory transformed into Fifth NRE Jazz Club blending modern sustainability, jazz culture, dining, and heritage architecture seamlessly.
Similar Reads
You might also enjoy these articles
The Ken Roberts Memorial Delineation Competition (Krob)
As the most senior architectural drawing competition currently in operation anywhere in the world, it draws hundreds of entries each year, awarding the very best submissions in a series of medium-based categories.
Waterfront Redevelopment and Urban Revitalization in Mumbai: Forging a New Dawn for Darukhana
A transformative waterfront redevelopment project reimagining Darukhana’s shipbreaking heritage into an inclusive urban future.
OUT-OF-MAP: A Call for Postcards on Feminist Narratives of Public Space
Rhizoma Design and Research Lab invites artists, designers, architects, researchers, and students to reflect on how feminist perspectives can reshape public space. Selected works will be exhibited in Barcelona, October 2026. Submissions open until 15 April 2026.
Documentation Work on Buddhist Wooden Temple
Architectural syncretism and cultural hybridity: A comparative study of the Buddhist temples in Chattogram Hill tracks
Explore Architecture Competitions
Discover active competitions in this discipline
The International Standard for Design Portfolios
The Global Benchmark for Architecture Dissertation Awards
The Global Benchmark for Graduation Excellence
Challenge to reimagine the Iron Throne
Comments (0)
Please login or sign up to add comments
No comments yet. Be the first to comment!