MIR Office Building: A Contemporary Architectural Approach in Sofia
Explore the MIR Office Building, a modern architectural design in Sofia that combines flexible office spaces with historical integration.
Bridging History and Modernity in Office Design
The MIR Office Building, located in Sofia, Bulgaria, is a contemporary architectural masterpiece designed by Bureau XII. Spanning 3950 m², the project features flexible office spaces for rent, integrating modern functionality with a rich historical context. Situated in the heart of Sofia, a city steeped in centuries of history, the building aims to both honor and enhance its surroundings by blending sleek, modern design with elements of the city’s past.



Concept and Design: Balancing Tradition with Innovation
Responding to the Urban Context
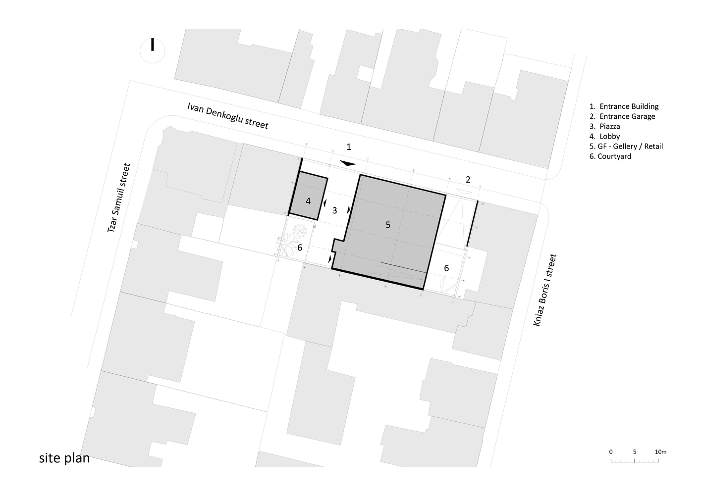
The design of the MIR Office Building responds thoughtfully to the fragmented urban environment of Sofia, characterized by buildings from the early to mid-20th century. The architects worked to preserve the DNA of the city, ensuring the building complements its environment while introducing a contemporary approach. This careful balance honors the patina of the city’s architecture, allowing the structure to both stand out and blend in harmoniously.



Archaeological Integration: A Link to Sofia’s Past
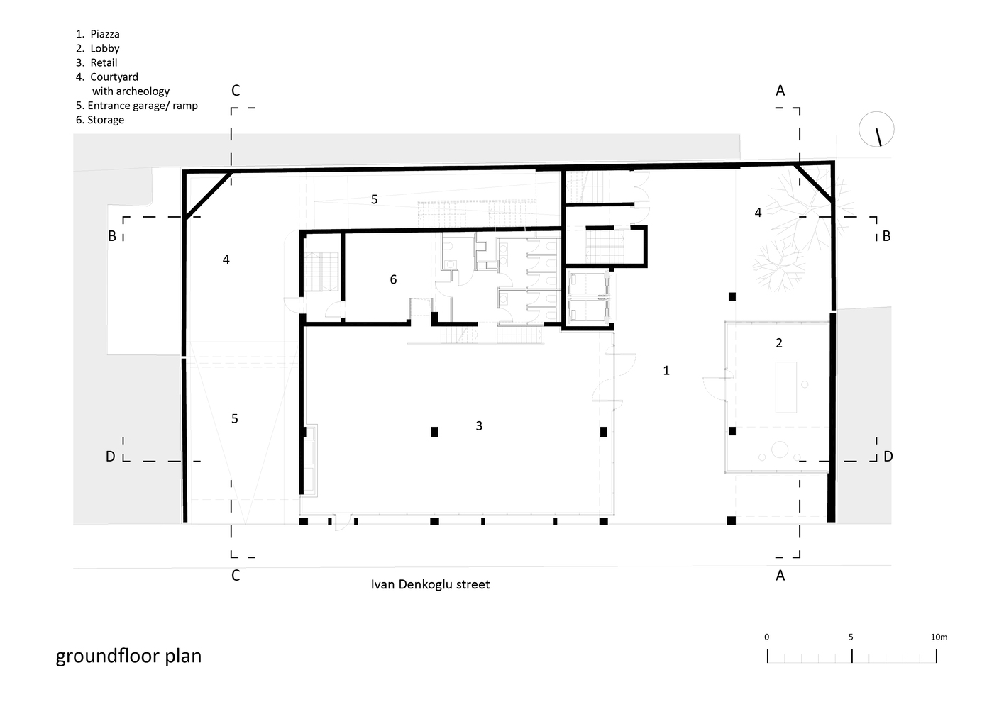
During the archaeological research for the site, remains of a late antique tomb were discovered, which were incorporated into the building design. This connection to Sofia’s ancient Roman heritage adds a unique cultural layer to the structure, giving it historical significance while modernizing the office spaces for contemporary use.



The Building’s Facade: Monolithic and Modern
The facade of the MIR Office Building is designed with a monolithic grid of exposed concrete paired with large-scale windows framed in aluminum. This creates a modern, clean look that is both bold and timeless. The scale of the building is carefully controlled with the introduction of cascading terraces that disrupt the facade and introduce vertical landscaping—a design element that allows light to penetrate the space and provides a visual break from the building’s long frontage.



Functional Layout: Flexibility and Innovation for Modern Workspaces
Flexible Office Spaces
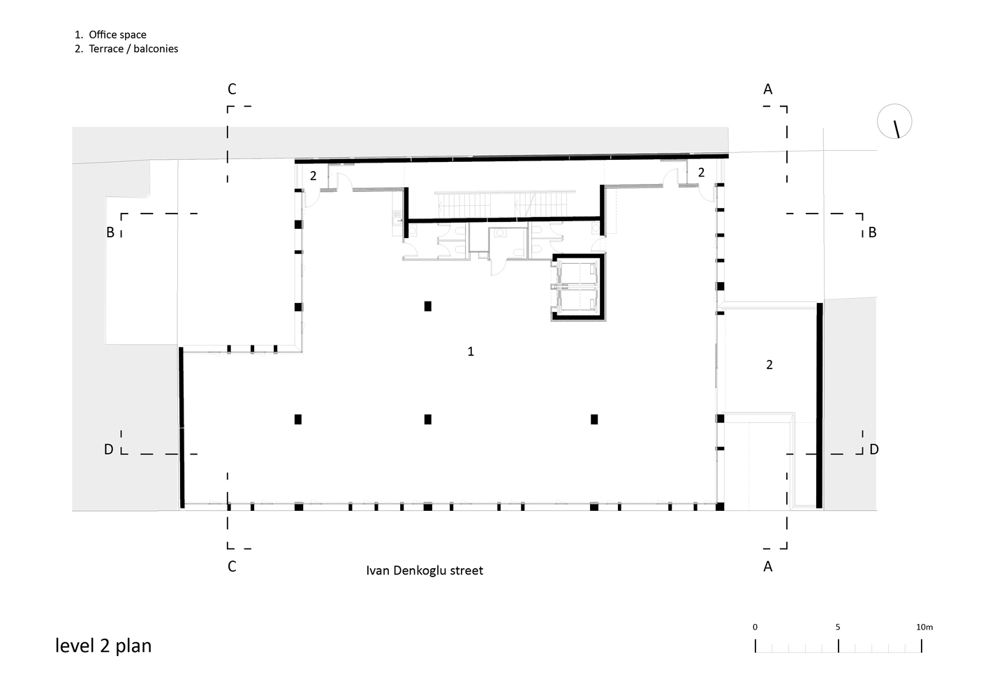
The building is designed on the shell and core principle, allowing for highly flexible office spaces that can be customized for tenants. With two underground levels dedicated to parking, the building supports both convenience and functionality. This setup caters to the diverse needs of modern businesses while maintaining an efficient and sleek design.



Rooftop Glass Pavilion: A Space for Gathering and Reflection
On the highest level of the building is a glass pavilion offering panoramic views over Sofia’s skyline. This area is designed to function as a shared space for meetings, conferences, and relaxation, providing tenants with an exclusive retreat above the bustling city. The landscaped rooftop garden further enhances the building's connection to nature, offering both leisure and a place for corporate gatherings.




The Piazza and Courtyard: Bridging the Building with the City
The piazza serves as a public/private space, extending the streetscape and connecting the building to the urban fabric of Sofia. The inner green courtyard acts as a relaxing retreat for building occupants, featuring lush greenery and a Roman tomb as an evocative historical landmark. This thoughtful integration of open spaces allows the building to foster both community interaction and private business operations.



Sustainability and Materials: Modern Design with Environmental Sensitivity
The material palette of the MIR Office Building is carefully chosen to reflect both contemporary needs and environmental concerns. Materials like Reynaers aluminum and Agglotech create a balance of sustainability and elegance, while the inclusion of green terraces, the rooftop garden, and the courtyard add to the building’s eco-friendly design.




A Modern Architectural Landmark in Sofia
The MIR Office Building is a perfect example of modern office building design that respects its historical context while incorporating cutting-edge functionality. The architects have successfully married flexibility, sustainability, and historical awareness in a way that ensures the building serves as both a work environment and a cultural landmark in Sofia.




All Photographs are work of Assen Emilov
Popular Articles
Popular articles from the community
Gads Hill Early Learning Center by JGMA: Adaptive Reuse Shaping Community-Focused Educational Architecture
Adaptive reuse transforms fragmented structure into vibrant early learning center with playful façade, natural light, and community-focused sustainable design.
Split House: A Compact Urban Home Blending Privacy, Light, and Flexible Living in Japan
Compact Japanese home featuring DOMA space, flexible café potential, passive lighting, privacy zoning, and sustainable urban living design.
Free Architecture Competitions You Can Enter Right Now
No entry fees, real prizes. Here are the best free architecture competitions open for submissions in 2026.
Similar Reads
You might also enjoy these articles
The Ken Roberts Memorial Delineation Competition (Krob)
As the most senior architectural drawing competition currently in operation anywhere in the world, it draws hundreds of entries each year, awarding the very best submissions in a series of medium-based categories.
Waterfront Redevelopment and Urban Revitalization in Mumbai: Forging a New Dawn for Darukhana
A transformative waterfront redevelopment project reimagining Darukhana’s shipbreaking heritage into an inclusive urban future.
OUT-OF-MAP: A Call for Postcards on Feminist Narratives of Public Space
Rhizoma Design and Research Lab invites artists, designers, architects, researchers, and students to reflect on how feminist perspectives can reshape public space. Selected works will be exhibited in Barcelona, October 2026. Submissions open until 15 April 2026.
Documentation Work on Buddhist Wooden Temple
Architectural syncretism and cultural hybridity: A comparative study of the Buddhist temples in Chattogram Hill tracks
Explore Architecture Competitions
Discover active competitions in this discipline
The International Standard for Design Portfolios
The Global Benchmark for Architecture Dissertation Awards
The Global Benchmark for Graduation Excellence
Challenge to reimagine the Iron Throne
Comments (0)
Please login or sign up to add comments
No comments yet. Be the first to comment!