Mirae High School of Science & Technology Cafeteria Extension: A Contemporary School Cafeteria Architecture Design by Bare Ground Architects
A contemporary cafeteria extension redefining school architecture through open, light-filled spaces and strategic site integration.
Transforming Underserved Spaces Through Strategic Design
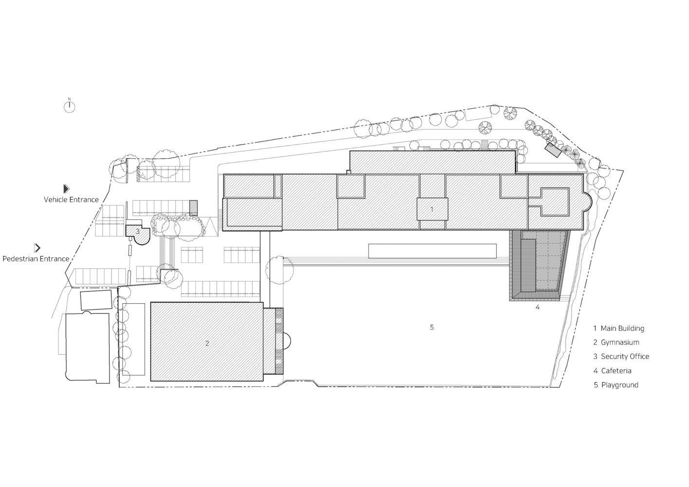
In 2024, Bare Ground Architects completed the cafeteria extension at Mirae High School of Science & Technology in South Korea—a project that redefines school cafeteria architecture design through spatial intelligence and site sensitivity. Facing limitations in the building-to-land ratio, the architects devised a strategy that capitalized on the site’s underutilized structures while prioritizing spatial openness, natural connectivity, and aesthetic harmony with the surrounding landscape.



Addressing Site Challenges and Spatial Constraints
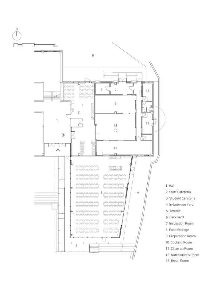
Originally, the school's plan was to allocate the new kitchen to an open extension and place the cafeteria within an existing low-ceilinged (3.3 meters) underground building. While technically logical—since commercial kitchens benefit from vertical space for ventilation and mechanical systems—Bare Ground Architects identified a more impactful solution. Rather than confining the cafeteria indoors, they proposed reorienting it toward the adjacent playground and the expansive views of Mt. Bulamsan.


This move not only improved the experiential quality of the space but addressed circulation, daylight, and psychological well-being. The integration of stairs, terraces, and a yard made it possible to bridge the two-meter level difference between the building and the outdoor playfield, encouraging a seamless transition between interior and exterior spaces.


Designing for Light, Air, and Interaction
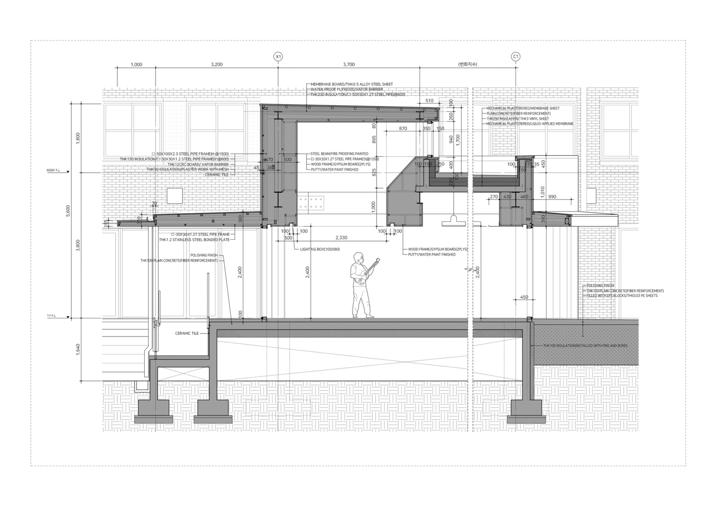
Central to the project's architectural identity is its light-filled, open-plan dining space. The architects installed clerestory windows to mitigate the low ceiling challenge and to shape a three-dimensional interior volume. These high windows, placed along the axis of movement toward the playground, allow for generous daylight penetration, softening the spatial atmosphere and encouraging visual continuity with the outdoors.



As students and faculty enter the cafeteria from the hallway, they are greeted by a ribbon of soft, filtered light that leads the eye out toward the playground. The clerestory design features deep louvers, which balance both shading and form, enhancing the building's long elevation and proportion in relation to its site and surrounding structures.



A Unified Architectural Language
The architectural language of the extension is cohesive and refined. A generous south-facing eave not only shelters outdoor seating areas but also harmonizes the transition between internal and external movements. Transparent glazing connects the cafeteria to the yard and terrace, allowing nature and light to become integral elements of the dining experience.



This thoughtful school cafeteria architecture design ensures that students are not confined to a traditional institutional atmosphere. Instead, they are encouraged to engage with their environment, fostering a sense of openness, community, and well-being.





A New Standard in School Dining Design
Bare Ground Architects' extension of the Mirae High School cafeteria represents a forward-thinking approach to school cafeteria architecture design. The project demonstrates how careful spatial planning, connection to nature, and light manipulation can turn a modest extension into a vibrant hub of student life. It elevates everyday routines like dining into opportunities for social interaction and visual delight, setting a new precedent for educational architecture in South Korea and beyond.








All photographs are works of Kim Yongsu
Popular Articles
Popular articles from the community
Louis Malle Cinema: A Limestone Cultural Landmark Revitalizing Community Life in Prayssac
Limestone cinema extension with public forecourt, blending heritage and modern design to create flexible cultural spaces and strengthen community interaction.
Solar Steam: A Climate-Responsive Architecture That Redefines the Monument
A climate-responsive memorial architecture that transforms heat, decay, and time into a living system reflecting humanity’s ecological impact.
Treehouse Apartment: A Warm Timber Interior Blending Craft, Play, and Contemporary Living
Warm timber apartment with integrated treehouse, combining natural materials, craftsmanship, and playful design to create a flexible, family-oriented living environment.
Inverted Architecture Installation by Studio Link-Arc: Exploring the Intersection of Architecture and Living Organisms
Inverted Architecture Installation by Studio Link-Arc blends mycelium, sustainability, inverted design, ecological cycles, and urban adaptive architecture in Shenzhen.
Similar Reads
You might also enjoy these articles
Top 15 Architecture Competitions to Enter in 2026
From student-friendly idea competitions to prestigious international awards, here are the best architecture competitions open for entries in 2026. Updated regularly.
DIY & Engineering in Computational Design : Enter the BeeGraphy Design Awards
Showcase Your Creativity with Computational Design and Open Source Projects

Innovative Design Solutions: Award-Winning Projects from Recent Architecture Competitions
Exploring award-winning architectural projects shaping the future of design, sustainability, and community.
Explore Architecture Competitions
Discover active competitions in this discipline
The International Standard for Design Portfolios
The Global Benchmark for Architecture Dissertation Awards
The Global Benchmark for Graduation Excellence
Challenge to design public laboratory
Comments (0)
Please login or sign up to add comments
No comments yet. Be the first to comment!