Modern Apartment Renovation in Copan Building: Copan D Apartment by Estúdio BRA Arquitetura
Renovation of Copan D Apartment by Estúdio BRA maximizes skyline views in São Paulo's iconic building.
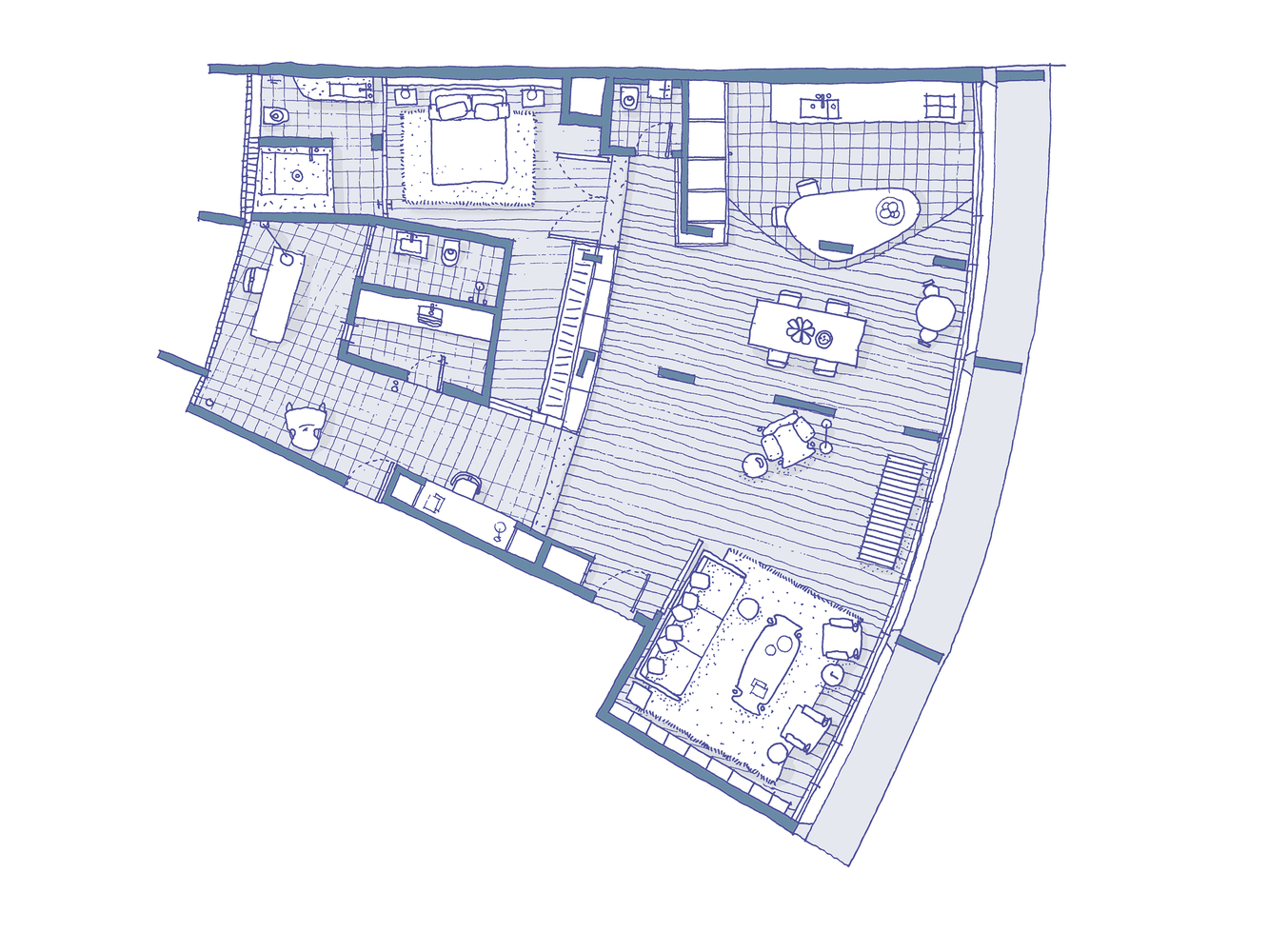
Nestled in the heart of São Paulo within the iconic Copan Building, designed by Oscar Niemeyer in 1966, the Copan D Apartment underwent a transformative renovation by Estúdio BRA Arquitetura. Completed in 2023, this 175 square meter apartment was reimagined to maximize city skyline views, catering to the desires of a young mother and her son.







Design Strategy and Spatial Reconfiguration
The renovation involved a strategic reconfiguration of the apartment's layout to enhance the visual connection with São Paulo's urban landscape. By removing partitions adjacent to the glass facade, the architects introduced a new usage concept that prioritizes open, fluid spaces. The kitchen, previously confined, now occupies a prime location along the glass facade, featuring tauarí wood and Spirit Santo stone countertops, seamlessly integrating social areas.








Maximizing Views and Natural Light
The design ingeniously positions the dining room and living areas to exploit the panoramic views from the nineteenth floor, overlooking São Paulo's architectural tapestry and the distant Cantareira mountain range. The private spaces, aligned with the building's cobogó facade, benefit from a raised floor, enhancing the interior's spatial perception and connection to the exterior.










Materiality and Custom Features
The renovation emphasizes materiality and custom-built features, including a library of thin metal sheets and a versatile office space that doubles as a guest suite. The master bedroom and bathroom are delineated by wood and glass windows, promoting natural light and ventilation, while precast concrete elements add a contemporary touch to the bathing area.
The Copan D Apartment by Estúdio BRA Arquitetura represents a thoughtful reinterpretation of living spaces within a historical architectural landmark. Through careful spatial planning and material selection, the apartment offers a modern living experience that respects the original building's character while providing a fresh perspective on urban apartment living.







All Photographs are the work of Maíra Acayaba
Popular Articles
Popular articles from the community
Flamboyant House by Juliana Camargo + Prumo Projetos
Modern Brazilian house integrating existing tree, pool, and volumes with glass, wood, and transitional spaces blending interior, exterior, and landscape seamlessly.
Atelier Macri Concept Store Interior Design by CASE-REAL
Atelier Macri store features a "ko" counter, walnut wood details, cork displays, blending retail, gallery, and seamless customer experiences.
Louis Malle Cinema: A Limestone Cultural Landmark Revitalizing Community Life in Prayssac
Limestone cinema extension with public forecourt, blending heritage and modern design to create flexible cultural spaces and strengthen community interaction.
Inverted Architecture Installation by Studio Link-Arc: Exploring the Intersection of Architecture and Living Organisms
Inverted Architecture Installation by Studio Link-Arc blends mycelium, sustainability, inverted design, ecological cycles, and urban adaptive architecture in Shenzhen.
Similar Reads
You might also enjoy these articles
The Ken Roberts Memorial Delineation Competition (Krob)
As the most senior architectural drawing competition currently in operation anywhere in the world, it draws hundreds of entries each year, awarding the very best submissions in a series of medium-based categories.
Waterfront Redevelopment and Urban Revitalization in Mumbai: Forging a New Dawn for Darukhana
A transformative waterfront redevelopment project reimagining Darukhana’s shipbreaking heritage into an inclusive urban future.
OUT-OF-MAP: A Call for Postcards on Feminist Narratives of Public Space
Rhizoma Design and Research Lab invites artists, designers, architects, researchers, and students to reflect on how feminist perspectives can reshape public space. Selected works will be exhibited in Barcelona, October 2026. Submissions open until 15 April 2026.
Documentation Work on Buddhist Wooden Temple
Architectural syncretism and cultural hybridity: A comparative study of the Buddhist temples in Chattogram Hill tracks
Explore Architecture Competitions
Discover active competitions in this discipline
The International Standard for Design Portfolios
The Global Benchmark for Architecture Dissertation Awards
The Global Benchmark for Graduation Excellence
Challenge to design luxury tourism on rails
Comments (0)
Please login or sign up to add comments
No comments yet. Be the first to comment!