Multigenerational Modern House Design in Taiwan by FLOAT DESIGN STUDIO
A minimalist, nature-integrated modern house in Taiwan designed to support multigenerational living through spatial clarity and flexibility.
A Contemporary Home for Four Generations
In the heart of Taiwan, FLOAT DESIGN STUDIO has reimagined a family residence as a beacon of multigenerational modern house design, balancing minimalist elegance with practical living for four generations. The 512 m² home stands where a narrow, shadowy dwelling once stood, now reborn as a light-filled, spatially generous retreat. The project embraces Japanese simplicity and modernist ideals, all framed by west-facing floor-to-ceiling windows that open up to a mountainous backdrop.





A Design Philosophy of “Less is More”
FLOAT DESIGN STUDIO rooted the entire project in the principle of less is more. The clean white façade extends into the interiors through a disciplined use of neutral tones, simple lines, and a limited palette of materials—wood, glass, exposed steel, and concrete with a wood grain texture. This deliberate restraint creates visual clarity and enhances the spaciousness of each room while allowing the natural surroundings to remain the star of the experience.



Spatial Zoning for Generational Harmony
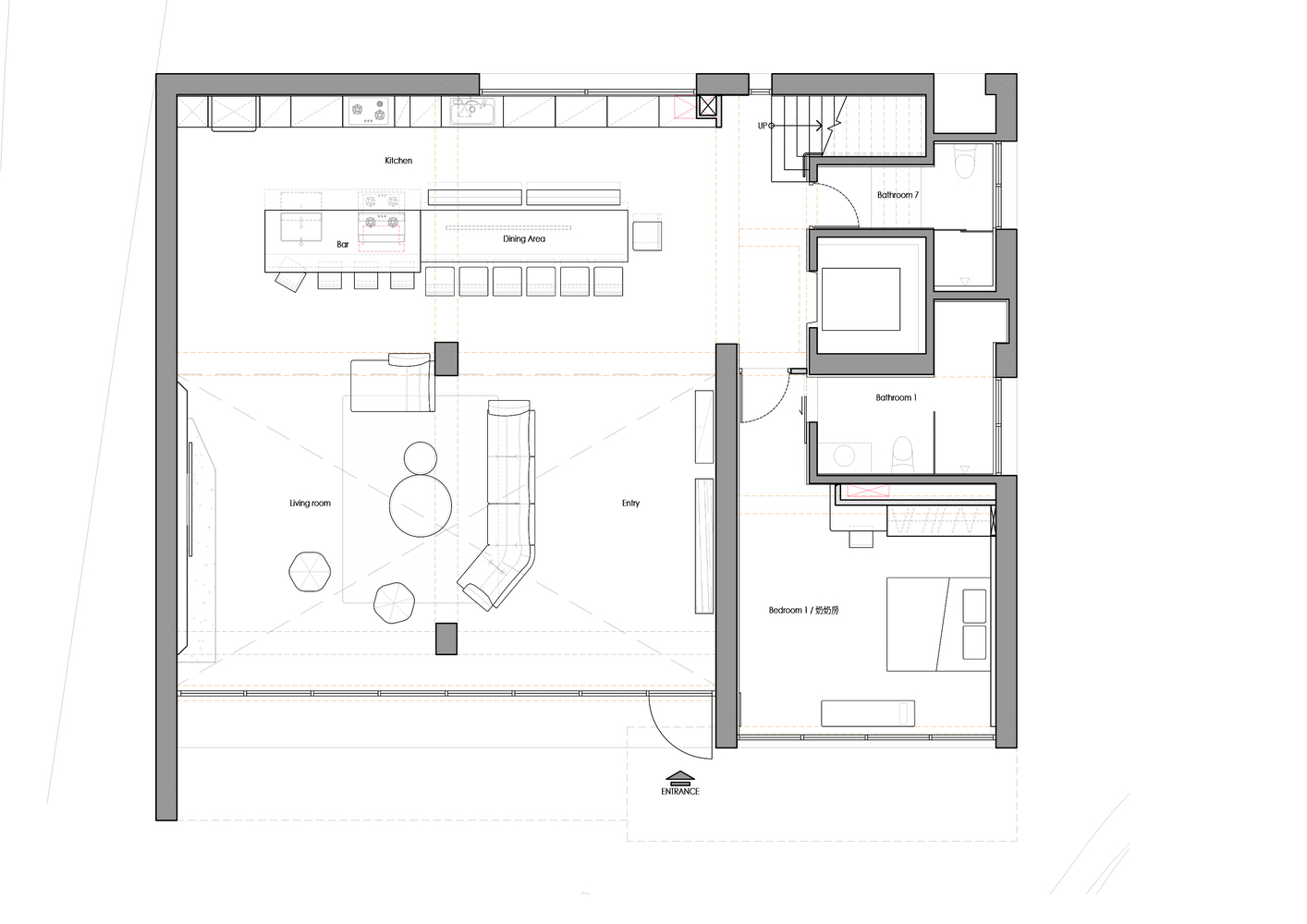
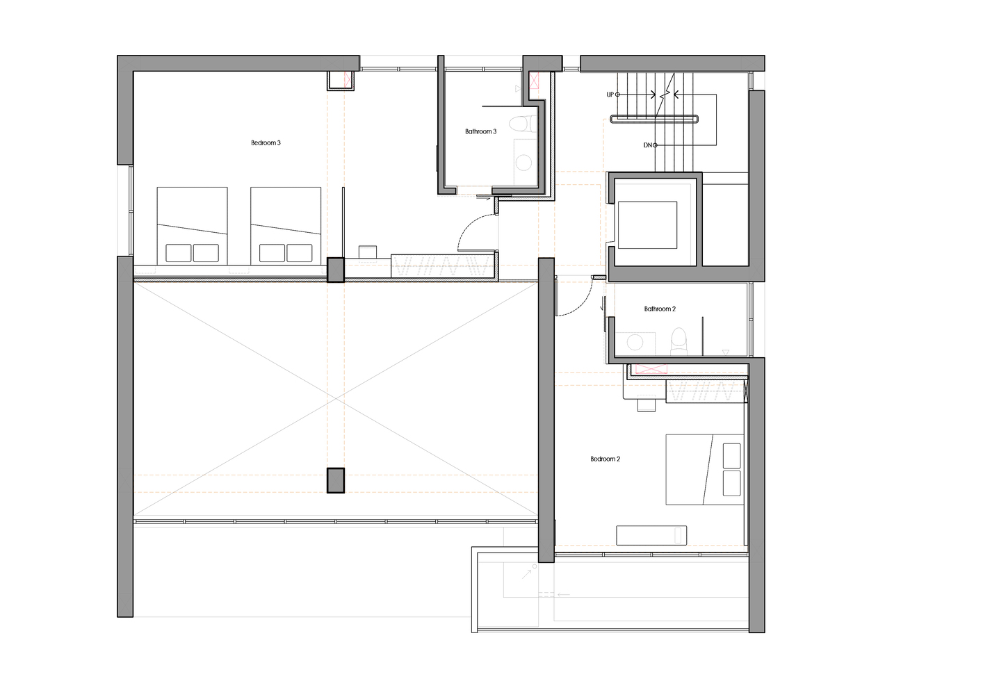
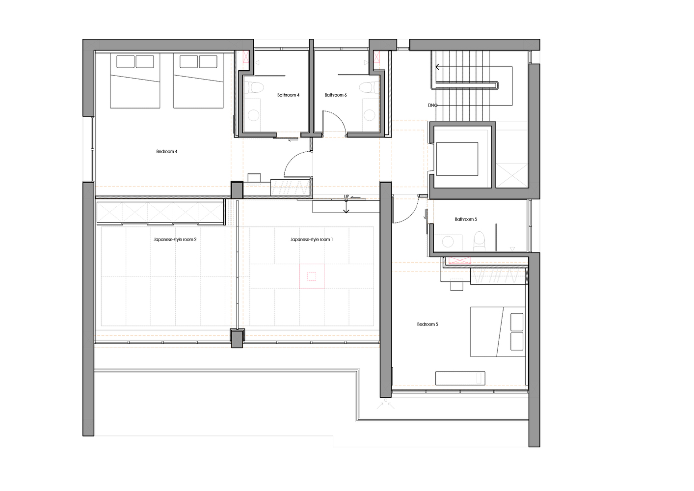
The layout of this multigenerational house is strategically divided across three floors. Each level supports different functions and age groups, promoting both privacy and togetherness. The first floor features an open-plan living and dining area with a kitchen island that doubles as a communal dining table. The third floor offers a flexible platform room with panoramic mountain views, designed for both group activities and individual relaxation. This spatial separation ensures that family members of all ages can coexist without compromising comfort or autonomy.




Integrating Nature with Architecture
A seamless indoor-outdoor connection is achieved through full-height windows and natural materials. The house not only welcomes in sunlight and ventilation but also uses an outdoor pool as a microclimate control element. Natural ventilation, cross-breezes, and thoughtful material selection reduce reliance on mechanical systems, embodying a sustainable living strategy rooted in climate responsiveness.




Flexibility and Flow in Every Detail
The design emphasizes fluidity and openness. Curved staircases, different ceiling heights, and vertical-horizontal surface interplay create a spatial rhythm that directs movement and attention. By removing all non-load-bearing interior walls, the architects maximized the flexibility of each space. Functional zones—kitchen, dining, living—are articulated through subtle architectural cues rather than physical divisions, aligning with the ideals of free plan modernism.





Unified Aesthetic, Layered Experience
The interiors speak a refined language of geometric modernism, with artful contrasts of texture and form. Monochrome tones of black, gray, and white are warmed by wood, softened by natural light, and layered with curated furniture and artworks. The structure maintains a modern architectural vocabulary while ensuring that its human-centered design responds to the diverse needs of a four-generation household.



A Home Designed for Connection
FLOAT DESIGN STUDIO has not only designed a residence—it has created an architectural framework for generational connection. The project is as much about family dynamics and evolving needs as it is about spatial beauty. From its adaptable room configurations to its emphasis on shared and private zones, this house is a blueprint for contemporary multigenerational living in harmony with its natural and cultural context.



All photographs are works of WHOSE IMAGE STUDIO
Popular Articles
Popular articles from the community
Treehouse Apartment: A Warm Timber Interior Blending Craft, Play, and Contemporary Living
Warm timber apartment with integrated treehouse, combining natural materials, craftsmanship, and playful design to create a flexible, family-oriented living environment.
Flamboyant House by Juliana Camargo + Prumo Projetos
Modern Brazilian house integrating existing tree, pool, and volumes with glass, wood, and transitional spaces blending interior, exterior, and landscape seamlessly.
On the Brooks House by Monsoon Collective – A Contemporary Kerala Home Rooted in Tradition
Kerala home blending tradition and modernity with water-inspired design, brick architecture, courtyard planning, and sustainable rainwater harvesting strategies.
Inverted Architecture Installation by Studio Link-Arc: Exploring the Intersection of Architecture and Living Organisms
Inverted Architecture Installation by Studio Link-Arc blends mycelium, sustainability, inverted design, ecological cycles, and urban adaptive architecture in Shenzhen.
Similar Reads
You might also enjoy these articles
Top 15 Architecture Competitions to Enter in 2026
From student-friendly idea competitions to prestigious international awards, here are the best architecture competitions open for entries in 2026. Updated regularly.
DIY & Engineering in Computational Design : Enter the BeeGraphy Design Awards
Showcase Your Creativity with Computational Design and Open Source Projects

Innovative Design Solutions: Award-Winning Projects from Recent Architecture Competitions
Exploring award-winning architectural projects shaping the future of design, sustainability, and community.
Explore Architecture Competitions
Discover active competitions in this discipline
The International Standard for Design Portfolios
The Global Benchmark for Architecture Dissertation Awards
The Global Benchmark for Graduation Excellence
Challenge to reimagine the Iron Throne
Comments (0)
Please login or sign up to add comments
No comments yet. Be the first to comment!