Pina Contemporânea Museum: A Modern Architectural Transformation Integrating Heritage and Urban Spaces
The Pina Contemporânea Museum in São Paulo showcases modern architecture blending heritage restoration, sustainable design, and urban connectivity.
Introduction to Pina Contemporânea Museum
The Pina Contemporânea Museum, a masterpiece by Arquitetos Associados, represents a harmonious blend of historic preservation and modern architectural innovation. Located in São Paulo, Brazil, this project redefines how contemporary architecture can respect historical roots while enhancing urban connectivity and public accessibility. Completed in 2021, the 6,858 m² structure integrates Luz Park and listed heritage sites into a cohesive, multifunctional space.





Acknowledging the Urban Context
The project prioritizes its urban surroundings through a meticulous acknowledgment of its pre-existing context. Positioned near Luz Park, Ribeiro de Lima Street, and Tiradentes Avenue, the museum acts as an urban articulation axis, connecting the Pinacoteca building, Luz Park, and neighboring historical landmarks. This connection not only restores visual and pedestrian flow but also enriches public engagement with the space.





A standout feature is the creation of an open public square, which serves as both an access hub and a transitional zone. This square functions as a continuation of the park's foliage and the school's historic patio, reinforcing visual continuity with surrounding landmarks, including Paulo Mendes da Rocha's intervention on the Pinacoteca Luz building.





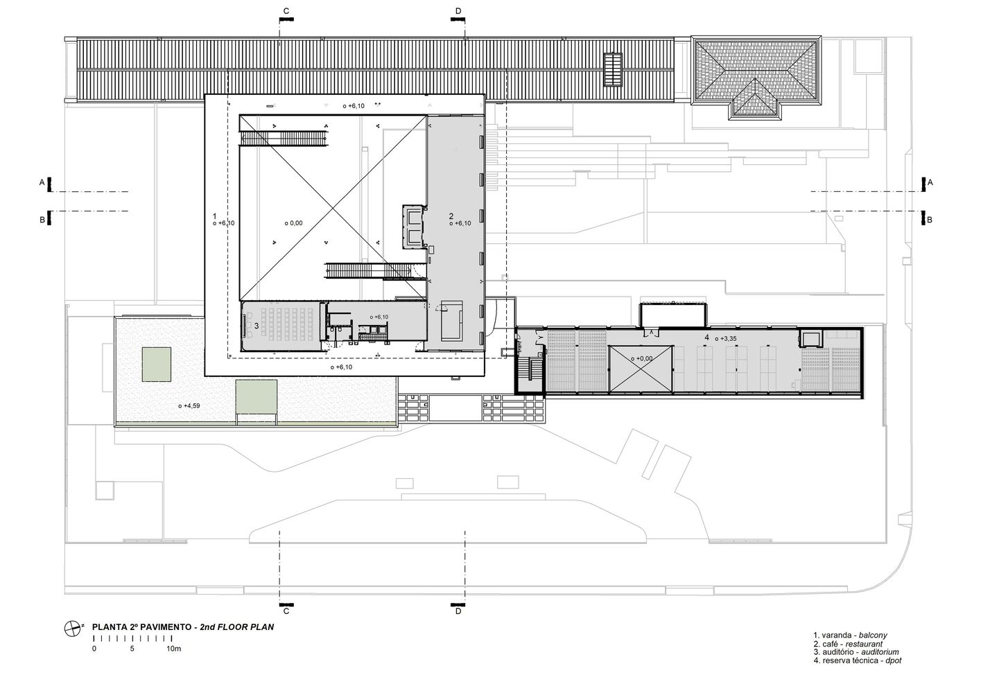
Restoration of Listed Buildings
The Pina Contemporânea project respects and restores significant architectural elements, particularly the EEPG Prudente de Moraes school building. Designed by Hélio Duarte, the school showcases modernist architecture through its modular structural system. The southern block, now housing the Library and Documentation Center, integrates seamlessly with the public square while maintaining acoustic isolation from Tiradentes Avenue.




To ensure functional adaptability, the central span of the building was reimagined, allowing for HVAC and exhaust system installation without interfering with the original architectural integrity. Additionally, classroom spaces were converted into expansive double-height rooms for the museum's technical reserves, accommodating larger artworks and ensuring environmental control.




Integrating Escola Modelo
On the western side of the site, the Escola Modelo remnants were restored to host key museum functions, such as ateliers, galleries, administrative spaces, and a museum shop. By demolishing dissonant additions, the intervention restores the building's symmetrical aesthetic and strengthens its visual connection with Luz Park and the Park Administrator’s House.




The Gouvea Telles Family Pavilion, another critical historical element, underwent a significant transformation. Metallic porticos, previously concealed, were revealed to create an open, visually permeable exhibition space. A newly designed roof with thermo-acoustic protection emphasizes the pavilion’s horizontal character, integrating it with the square and park.




Design of Flexible and Sustainable Spaces
One of the defining principles of Pina Contemporânea is its emphasis on flexibility and sustainability. The Great Gallery, situated underground, preserves the prominence of the listed buildings by avoiding intrusive new volumes. This underground level enhances exhibition possibilities while maintaining the visual integrity of the surrounding spaces.




Above ground, a mezzanine connects the south wing of the modernist building with the square, offering panoramic views of the site. Constructed with a lightweight metallic structure, the mezzanine minimizes the impact on the existing building while allowing for infrastructural integration and potential reversibility.



The illuminated glulam timber roof, inspired by Pinacoteca Luz’s iconic glass ceiling, reinterprets natural light and shadow play, mimicking the dappled effects of Luz Park's tree canopy. By incorporating sustainable materials and industrialized construction methods, the roof reduces environmental impact and enhances the overall unity of the architectural set.



Enhancing Urban Connectivity and Public Interaction
The Pina Contemporânea Museum fosters both physical and visual integration with its urban surroundings. The removal of walls bordering Tiradentes Avenue and Luz Park enhances permeability and accessibility. The addition of railings, designed with vertical elements, reinforces the museum's open and inviting character while maintaining clear boundaries.



The museum’s design also prioritizes urban flow by connecting significant cultural and historical landmarks. These include the Luz Metro Station, Religious Art Museum, São Cristóvão’s Monastery, Coronel Prestes Square, and Bom Retiro neighborhood. This interconnection transforms the museum into a vital cultural hub within São Paulo’s urban fabric.


A Harmonious Fusion of Past and Present
The Pina Contemporânea Museum by Arquitetos Associados is a testament to the transformative potential of architecture. By integrating heritage buildings, modern design principles, and urban spaces, the project creates a dynamic, flexible, and sustainable environment. Through thoughtful interventions, the museum successfully balances historical preservation with contemporary functionality, setting a benchmark for architectural innovation.


















All Photographs are work of Manuel Sá, Nelson Kon
Popular Articles
Popular articles from the community
Split House: A Compact Urban Home Blending Privacy, Light, and Flexible Living in Japan
Compact Japanese home featuring DOMA space, flexible café potential, passive lighting, privacy zoning, and sustainable urban living design.
Atelier Macri Concept Store Interior Design by CASE-REAL
Atelier Macri store features a "ko" counter, walnut wood details, cork displays, blending retail, gallery, and seamless customer experiences.
The Ken Roberts Memorial Delineation Competition (Krob)
As the most senior architectural drawing competition currently in operation anywhere in the world, it draws hundreds of entries each year, awarding the very best submissions in a series of medium-based categories.
Similar Reads
You might also enjoy these articles
The Ken Roberts Memorial Delineation Competition (Krob)
As the most senior architectural drawing competition currently in operation anywhere in the world, it draws hundreds of entries each year, awarding the very best submissions in a series of medium-based categories.
Waterfront Redevelopment and Urban Revitalization in Mumbai: Forging a New Dawn for Darukhana
A transformative waterfront redevelopment project reimagining Darukhana’s shipbreaking heritage into an inclusive urban future.
OUT-OF-MAP: A Call for Postcards on Feminist Narratives of Public Space
Rhizoma Design and Research Lab invites artists, designers, architects, researchers, and students to reflect on how feminist perspectives can reshape public space. Selected works will be exhibited in Barcelona, October 2026. Submissions open until 15 April 2026.
Documentation Work on Buddhist Wooden Temple
Architectural syncretism and cultural hybridity: A comparative study of the Buddhist temples in Chattogram Hill tracks
Explore Architecture Competitions
Discover active competitions in this discipline
The International Standard for Design Portfolios
The Global Benchmark for Architecture Dissertation Awards
The Global Benchmark for Graduation Excellence
Challenge to reimagine the Iron Throne
Comments (0)
Please login or sign up to add comments
No comments yet. Be the first to comment!