Sustainable Home Renovation Design: Mila House by Isla Architects
This article explores Mila House by Isla Architects, showcasing a sustainable home renovation design that blends tradition with modern architectural ingenuity.
A Visionary Approach to Home Transformation
Mila House by Isla Architects redefines sustainable home renovation design, seamlessly integrating contemporary architectural solutions with an adaptive reuse strategy. Situated in Spain, this mid-terrace home underwent a radical transformation when the architects acquired an adjacent plot, expanding the spatial possibilities and allowing for an infusion of natural light through various innovative openings. The project embraces sustainability, material simplicity, and functional adaptability, creating a modern yet timeless living space.



Reimagining Space Through Expansion and Light
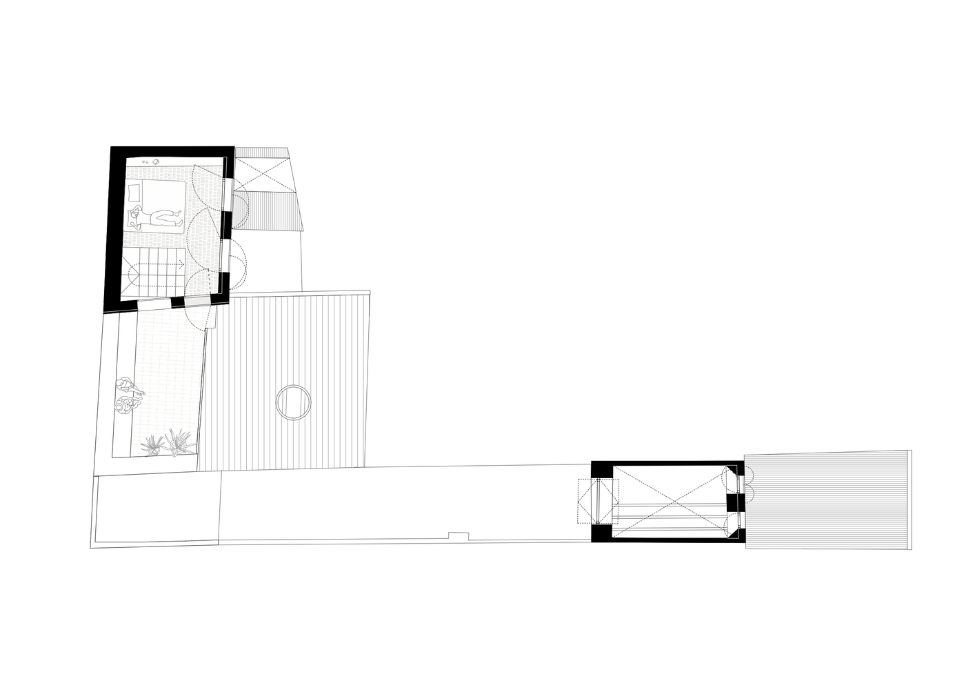
The renovation of Mila House began as a simple interior refurbishment but evolved into a comprehensive reconfiguration with the acquisition of a neighboring narrow plot measuring 25 meters in length and 2.5 meters in width. This additional space enabled the creation of a courtyard, fundamentally changing the home’s orientation and enhancing ventilation, daylighting, and spatial fluidity. Various window systems—including sliding panels, arched French doors, circular skylights, and guillotine-style windows—were introduced to maximize the interplay of light and shadow throughout the home.




A Harmonious Balance Between Old and New
Inside the main house, spaces were strategically reconfigured to enhance connectivity and usability. An old garage was transformed into a spacious living room facing the alley, while the kitchen was relocated to establish a direct relationship with the courtyard. The first floor was reimagined with a playroom illuminated by overhead light, and bedrooms were carefully stacked and linked through a series of new staircases. This restructuring not only optimized the home’s circulation but also preserved its historical essence while introducing contemporary design elements.



A Thoughtful Addition: The Guest House and Studio
The elongated plot, referred to as the "llonganissa," provided the perfect setting for a compact yet fully functional guest house. Designed to utilize the entire width of the structure, this secondary dwelling features an open courtyard-facing façade with a kitchen that transforms into a "chiringuito" through a liftable window system. The first-floor bedroom is nestled within a striking double-height space, while the southern end accommodates a linear bathroom between the staircase and corridor. A garage-studio completes the northern edge of the courtyard, adding versatility to the overall design.




Sustainable Materiality and Local Craftsmanship
Mila House is a testament to sustainable home renovation design, emphasizing locally sourced materials and traditional craftsmanship. The project’s material palette is distilled into three primary elements: lime mortar, green unified carpentry, and a custom Palladian-style floor. The lime mortar, applied in smooth white finishes for the interiors and textured earthy tones for the façades, establishes a harmonious contrast. The custom flooring, developed specifically for the project, features irregularly placed tiles that create a sense of warmth and continuity between the main house and the guest home.





A Model for Future Renovation Projects
Mila House exemplifies how sustainable home renovation design can breathe new life into traditional structures while respecting their historical and environmental context. Through intelligent spatial planning, innovative lighting solutions, and a commitment to locally crafted materials, Isla Architects have crafted a home that not only meets modern living standards but also serves as an architectural model for future renovation projects. This project highlights the potential of adaptive reuse in urban settings, offering a blueprint for homeowners and architects seeking to merge sustainability with design excellence.



All Photographs are works of Luis Díaz Díaz
Popular Articles
Popular articles from the community
Inverted Architecture Installation by Studio Link-Arc: Exploring the Intersection of Architecture and Living Organisms
Inverted Architecture Installation by Studio Link-Arc blends mycelium, sustainability, inverted design, ecological cycles, and urban adaptive architecture in Shenzhen.
Solar Steam: A Climate-Responsive Architecture That Redefines the Monument
A climate-responsive memorial architecture that transforms heat, decay, and time into a living system reflecting humanity’s ecological impact.
Fifth NRE Jazz Club – De Bever Architecten: Eindhoven’s Revitalized Cultural Hub
Historic gas factory transformed into Fifth NRE Jazz Club blending modern sustainability, jazz culture, dining, and heritage architecture seamlessly.
Free Architecture Competitions You Can Enter Right Now
No entry fees, real prizes. Here are the best free architecture competitions open for submissions in 2026.
Similar Reads
You might also enjoy these articles
The Ken Roberts Memorial Delineation Competition (Krob)
As the most senior architectural drawing competition currently in operation anywhere in the world, it draws hundreds of entries each year, awarding the very best submissions in a series of medium-based categories.
Waterfront Redevelopment and Urban Revitalization in Mumbai: Forging a New Dawn for Darukhana
A transformative waterfront redevelopment project reimagining Darukhana’s shipbreaking heritage into an inclusive urban future.
OUT-OF-MAP: A Call for Postcards on Feminist Narratives of Public Space
Rhizoma Design and Research Lab invites artists, designers, architects, researchers, and students to reflect on how feminist perspectives can reshape public space. Selected works will be exhibited in Barcelona, October 2026. Submissions open until 15 April 2026.
Documentation Work on Buddhist Wooden Temple
Architectural syncretism and cultural hybridity: A comparative study of the Buddhist temples in Chattogram Hill tracks
Explore Architecture Competitions
Discover active competitions in this discipline
The International Standard for Design Portfolios
The Global Benchmark for Architecture Dissertation Awards
The Global Benchmark for Graduation Excellence
Challenge to reimagine the Iron Throne
Comments (0)
Please login or sign up to add comments
No comments yet. Be the first to comment!