Sustainable Timber Home Design Unveiled in Austria
Sustainable Timber Construction: A Masterpiece by Moser und Hager Architekten
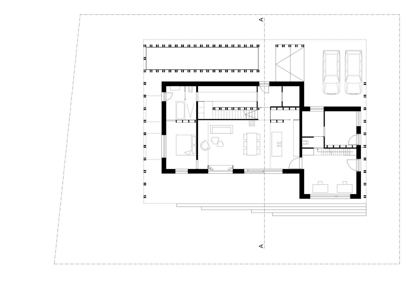
Discover the harmonious blend of sustainability and architectural innovation in the "House SF" by Moser und Hager Architekten, situated in Altenberg bei Linz, Austria. Completed in 2017, this exceptional residence showcases an intelligently designed timber construction, seamlessly integrating living and working spaces under one roof.



The Concept of Integrated Design
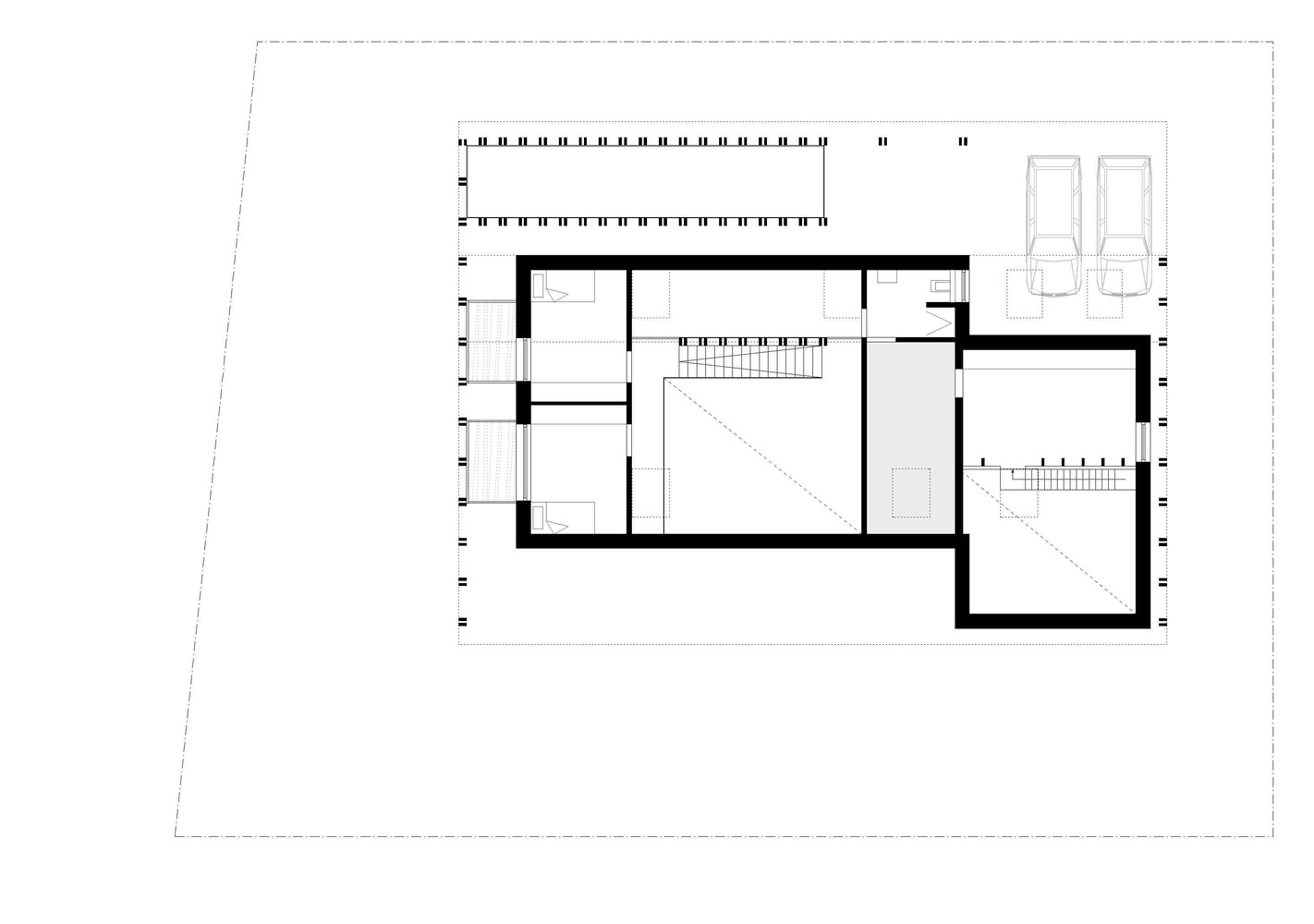
Embracing the theme of "under one roof," the architects strategically placed functional boxes for living and working, defining covered open spaces for terrace, carport, and storage areas. The ingenious use of large roof overhangs creates a sheltered transition, blurring the boundaries between indoor and outdoor realms.









Timber Excellence in Construction
Timber takes center stage as a versatile structural element, showcasing its diversity and flexibility. The design adheres to a fixed timber construction grid, enhancing spatial aesthetics. Rows of double columns not only contribute to the open spatial structure but also serve as potential shelves or platforms for galleries and balconies.






Implementation and Sustainability
To the north, the interior is closed, providing a cocoon-like atmosphere, while the south opens up to untouched landscapes. White glazed panels cover interior walls and the soffit, creating a bright and welcoming ambiance. The entire building, excluding the reinforced concrete floor plate, is a testament to sustainable timber frame construction. Heating and ventilation are efficiently managed by an air heat pump, aligning with principles of responsible resource use.


The Heart of the Home
The focal point of "House SF" is the spacious two-story living area with a kitchen, connecting different zones as the pulsating heart of the design. This central space acts as a mediator between work areas and private retreats, fostering a sense of unity and functionality.







Moser und Hager Architekten's House SF" is more than a residence; it's a sustainable living masterpiece. Explore the seamless integration of living and working spaces, where timber construction meets eco-conscious design, setting new standards for modern architecture.
All Photographs are the work of Gregor Graf
Popular Articles
Popular articles from the community
Solar Steam: A Climate-Responsive Architecture That Redefines the Monument
A climate-responsive memorial architecture that transforms heat, decay, and time into a living system reflecting humanity’s ecological impact.
On the Brooks House by Monsoon Collective – A Contemporary Kerala Home Rooted in Tradition
Kerala home blending tradition and modernity with water-inspired design, brick architecture, courtyard planning, and sustainable rainwater harvesting strategies.
A Contemporary Take on Iranian Residential Architecture
A modern interior design in Mashhad that reinterprets brick, light, and spatial flow to create a warm, contemporary residential architecture.
Atelier Macri Concept Store Interior Design by CASE-REAL
Atelier Macri store features a "ko" counter, walnut wood details, cork displays, blending retail, gallery, and seamless customer experiences.
Similar Reads
You might also enjoy these articles
Top 15 Architecture Competitions to Enter in 2026
From student-friendly idea competitions to prestigious international awards, here are the best architecture competitions open for entries in 2026. Updated regularly.
DIY & Engineering in Computational Design : Enter the BeeGraphy Design Awards
Showcase Your Creativity with Computational Design and Open Source Projects

Innovative Design Solutions: Award-Winning Projects from Recent Architecture Competitions
Exploring award-winning architectural projects shaping the future of design, sustainability, and community.
Explore Architecture Competitions
Discover active competitions in this discipline
The International Standard for Design Portfolios
The Global Benchmark for Architecture Dissertation Awards
The Global Benchmark for Graduation Excellence
Challenge to design mud housing for contemporary communities
Comments (0)
Please login or sign up to add comments
No comments yet. Be the first to comment!