Swap in the Park
Fostering connection through intergenerational architecture that brings young and old together in shared public spaces.
Winner Entry of the Huddle Competition By Dawei Nie, Han Wang, Xiao Yang, Zongxiang Yang
In a time where urban spaces often segregate by age, “Swap in the Park” redefines community through intergenerational architecture. The project introduces “Swap,” a spatial and programmatic strategy that fosters equal exchanges between younger and older generations. Rather than adhering to the traditional model of one-way care, the design promotes mutual learning and shared experience.


Spatial Strategy and Architectural Typology
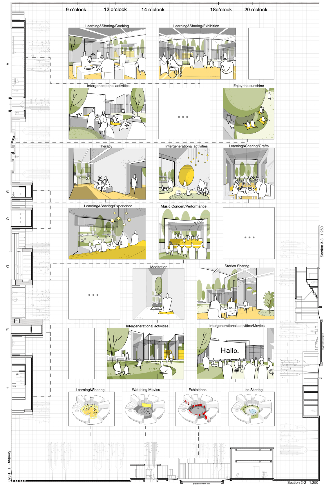
The design is anchored in a tranquil park setting, with architecture that harmonizes with nature while providing rich, flexible functionality. The primary structure acts as the Control Center of the Swap program — a place where daily intergenerational activities are coordinated and celebrated.
The spatial typology is defined by a "Continuous Folding Plate," a rhythmic architectural element that wraps around a central courtyard. This fold creates two primary types of spaces: the Pavilion, which supports more intimate or programmed activities, and the Courtyard, which encourages spontaneous interaction and openness. The circular arrangement enhances connectivity while fostering a sense of inclusion, visibility, and collective identity.
The central courtyard is a key feature — it becomes a vibrant, dynamic gathering place used for gardening, storytelling, outdoor games, water play, therapy, performances, and meditation. These overlapping uses support both quiet contemplation and lively participation, reflecting the diverse needs of different age groups.
Responsive Site Design
The building’s footprint and orientation are sensitive to the existing site conditions, particularly the surrounding tree canopy. Instead of displacing trees, the design adapts to them, creating a symbiotic relationship between architecture and landscape. This flexibility is integral to the Swap concept — each implementation of the system can be tailored to different urban or rural contexts while maintaining its core values.


Programmatic Diversity Throughout the Day
From morning to evening, the spaces come alive with a spectrum of intergenerational activities:
- Morning: Cooking classes, craft-making, therapy sessions
- Midday: Shared meals, exhibitions, outdoor storytelling
- Afternoon: Music concerts, movie screenings, experiential learning
- Evening: Meditation, shared games, and open-air performances
This temporal layering transforms the space into a continuously evolving environment, breaking down age-related barriers through common purpose and playful exchange.
A Model for Sustainable Urban Integration
Beyond architecture, "Swap in the Park" envisions a city-wide network of intergenerational nodes, connected through cooperation with governments, enterprises, schools, and community organizations. The operational model relies on shared funding, policy support, and active civic participation. The design demonstrates how intergenerational architecture can be a tool for sustainable urbanism — fostering lifelong learning, social inclusion, and public health.
The system is designed to be replicable, forming an expandable infrastructure of care and connection that can evolve with the needs of its users. As the social fabric of cities continues to age, designs like this are not only relevant — they are essential.
Swap in the Park offers a hopeful, human-centered vision of public architecture — one that acknowledges the wisdom of age, the vitality of youth, and the transformative potential of shared space.


Popular Articles
Popular articles from the community
Atelier Macri Concept Store Interior Design by CASE-REAL
Atelier Macri store features a "ko" counter, walnut wood details, cork displays, blending retail, gallery, and seamless customer experiences.
The Ken Roberts Memorial Delineation Competition (Krob)
As the most senior architectural drawing competition currently in operation anywhere in the world, it draws hundreds of entries each year, awarding the very best submissions in a series of medium-based categories.
On the Brooks House by Monsoon Collective – A Contemporary Kerala Home Rooted in Tradition
Kerala home blending tradition and modernity with water-inspired design, brick architecture, courtyard planning, and sustainable rainwater harvesting strategies.
Solar Steam: A Climate-Responsive Architecture That Redefines the Monument
A climate-responsive memorial architecture that transforms heat, decay, and time into a living system reflecting humanity’s ecological impact.
Similar Reads
You might also enjoy these articles
The Ken Roberts Memorial Delineation Competition (Krob)
As the most senior architectural drawing competition currently in operation anywhere in the world, it draws hundreds of entries each year, awarding the very best submissions in a series of medium-based categories.
Waterfront Redevelopment and Urban Revitalization in Mumbai: Forging a New Dawn for Darukhana
A transformative waterfront redevelopment project reimagining Darukhana’s shipbreaking heritage into an inclusive urban future.
OUT-OF-MAP: A Call for Postcards on Feminist Narratives of Public Space
Rhizoma Design and Research Lab invites artists, designers, architects, researchers, and students to reflect on how feminist perspectives can reshape public space. Selected works will be exhibited in Barcelona, October 2026. Submissions open until 15 April 2026.
Documentation Work on Buddhist Wooden Temple
Architectural syncretism and cultural hybridity: A comparative study of the Buddhist temples in Chattogram Hill tracks
Comments (0)
Please login or sign up to add comments
No comments yet. Be the first to comment!