The Hainan Energy Trading Building: A Marvel of Sustainable High-Rise ArchitectureThe Hainan Energy Trading Building: A Marvel of Sustainable High-Rise Architecture

The Hainan Energy Trading Building: A Marvel of Sustainable High-Rise Architecture

UNI Editorial
UNI Editorial published Story under Architecture, Educational Building on

The Hainan Energy Trading Building, designed by the renowned architecture firm KRIS YAO | ARTECH, stands as a symbol of innovation in sustainable high-rise architecture. Completed in 2022, this 65,726-square-meter structure is located in Jiangdong New District, Haikou, China, and is the new headquarters of the Yankuang Group. From its energy-efficient design to its harmonious integration of nature, the building sets a benchmark for environmentally conscious construction in urban centers.

Article image
Article image

Architectural Vision and Context

Jiangdong New District, Haikou, is an emerging hub for industrial, financial, and residential development. The Hainan Energy Trading Building positions itself as a pioneer in this rapidly developing region. Its owner, Yankuang Group, a leader in mining and green energy, envisioned a structure that represents its forward-thinking ethos. The building’s "floating box" design, with its landscaped ground floor and central courtyard, reflects this vision by blending cutting-edge technology with natural harmony.

Article image
Article image

Innovative Design Features

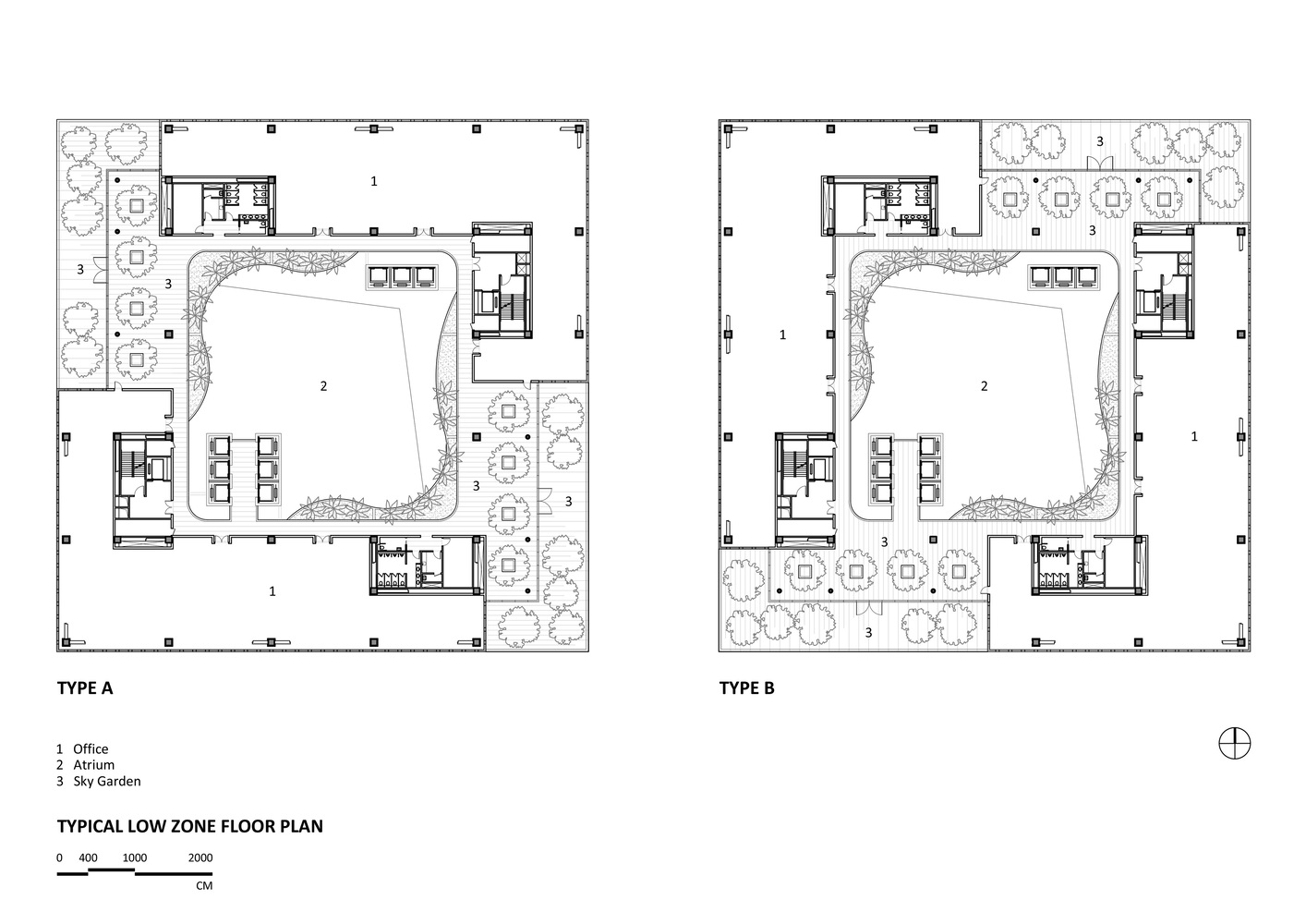
Sky Gardens for a Greener Future

The sky gardens punctuate the building’s rigid exterior, creating a balance of softness and structure. Positioned on alternating corners every four floors, these gardens rotate 90 degrees each time, offering a visually dynamic and ecologically functional element. These spaces are lushly planted, contributing to the well-being of the building's occupants by fostering a connection with nature.

Central Atrium and Microclimate Control

At the heart of the building lies a 75-meter-high central atrium, which functions as more than an aesthetic centerpiece. Leveraging shading techniques and stack ventilation, the atrium maintains a comfortable indoor environment. Fresh air flows in at the base, rising as it warms and exiting through a roof opening. This passive cooling strategy reduces the need for energy-intensive air-conditioning systems.

Article image
Article image

Energy Efficiency and Double-Skin Façade

One of the most striking features of the Hainan Energy Trading Building is its double-skin façade. The outer layer comprises high-transparency glass, showcasing the sleek structural framework, while the inner layer provides thermal insulation. Between these layers, electric louvers, controlled by a solar tracking system, adjust automatically to optimize daylight and minimize heat gain.

This intelligent façade design accomplishes:

  • Enhanced natural lighting, reducing the need for artificial lighting.
  • Shading corridors and interior spaces to prevent overheating.
  • Increased comfort for occupants while lowering energy consumption.
Article image
Article image

Structural Innovation for Sustainability

The building’s cantilevered structure achieves an impressive 14-meter overhang without compromising safety or stability. This feat is made possible by mega-bracings, which enhance earthquake resistance and minimize lateral deflection. By eliminating intrusive support pillars, the design maximizes usable space while seamlessly integrating the sky gardens into the overall structure.

Article image

Cultural Inspiration in Modern Design

The slanted roof design pays homage to traditional Jiangnan homes, where rainwater flows down sloped planes into a central courtyard. In the Hainan Energy Trading Building, this concept is modernized to symbolize prosperity and good fortune while enhancing water management efficiency.

Article image

Sustainability in Every Aspect

The Hainan Energy Trading Building is a model of sustainable high-rise architecture, utilizing the following strategies:

  • Daylight Optimization: Large windows and strategically positioned sky gardens flood the interior with natural light.
  • Solar Control: Electric louvers and shading devices minimize energy use for cooling.
  • Greenery Integration: Interior and exterior planting reduces the urban heat island effect and enhances air quality.
  • Natural Ventilation: The central atrium facilitates air circulation, reducing dependency on HVAC systems.
Article image
Article image

Impact on Green Architecture

By embracing sustainable design principles, the Hainan Energy Trading Building contributes significantly to the global conversation on environmentally friendly construction. Its innovative features not only reduce its environmental footprint but also set an example for future urban developments.

The Hainan Energy Trading Building by KRIS YAO | ARTECH redefines the potential of sustainable high-rise architecture. Combining cutting-edge engineering, cultural symbolism, and ecological sensitivity, it stands as a beacon of what is possible in the future of green urban design.

Whether it’s the striking double-skin façade, the dynamic sky gardens, or the energy-efficient atrium, every element of this building demonstrates how architecture can harmonize with the environment without sacrificing aesthetics or functionality.

Article image
Article image

All photographs are Courtesy of Hainan Energy Trading Building © MLee Studio

UNI Editorial

UNI Editorial

Where architecture meets innovation, through curated news, insights, and reviews from around the globe.

Share your ideas with the world

Share your ideas with the world

Write about your design process, research, or opinions. Your voice matters in the architecture community.

Comments (0)

No comments yet. Be the first to comment!

Similar Reads

You might also enjoy these articles

publishedStory6 days ago
The Ken Roberts Memorial Delineation Competition (Krob)
publishedStory1 month ago
Waterfront Redevelopment and Urban Revitalization in Mumbai: Forging a New Dawn for Darukhana
publishedStory1 month ago
OUT-OF-MAP: A Call for Postcards on Feminist Narratives of Public Space
publishedStory1 month ago
Documentation Work on Buddhist Wooden  Temple

Explore Architecture Competitions

Discover active competitions in this discipline

UNI Editorial
Search in