The New and Old House: A Seamless Renovation Blending History and Modern Design
The New and Old House by Julian King Architect blends historical preservation with modern design, creating a harmonious living space.
The renovation of a small, dilapidated house built in 1926 has transformed it into a stunning three-bedroom home that artfully combines old-world charm with contemporary architectural elements. Designed by Julian King Architect, this project sought to preserve the historical integrity of the original structure while integrating a modern, sculptural addition. Completed in 2024, the renovated home serves as a perfect example of how architectural innovation can merge with nature and history.



The Genesis of the Project: From Decay to Inspiration
When Julian King first encountered the house, it was in a state of disrepair. The vine that had grown through a gap in the basement’s concrete block foundation symbolized the house’s dilapidated condition. However, this absurdity sparked a creative idea—an opportunity to honor the old structure while embracing new design concepts. What seemed like an irreparable house became the starting point for an inspiring renovation that would blend modern aesthetics with the home’s historical roots.



The Process of Renovation and Preservation
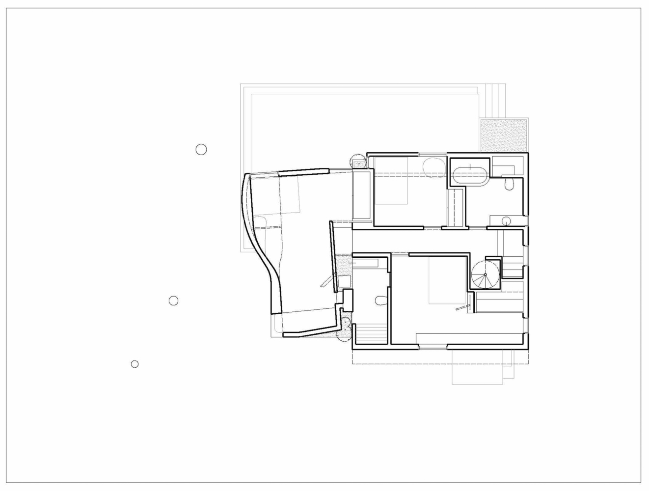
The renovation involved stripping away the Dutch Colonial trim and false eaves that had been added over the years, restoring the house to its original square gabled form. This design decision paid homage to the area’s agricultural past, where similar structures were once commonplace. The house was then clad in reclaimed barn wood siding, further connecting the new design with the past while maintaining a clear distinction between the old and the new.


The renovation added 1,800 square feet of living space, including three bedrooms, two bathrooms, and a home office/playroom. A key aspect of the renovation was the extension of the southern wall, which added much-needed space while accommodating the needs of modern living. The addition was carefully designed to coexist with the surrounding landscape, creating a stark contrast between the old and the new.


A Sculptural Addition Inspired by Nature
The new addition, which twists around the adjacent pine trees, is a sculptural masterpiece that complements the natural surroundings. The bulging form of the addition appears to grow out from under the tree canopy, creating a visual connection between the built environment and the natural world. A gap between the old house and the new addition enhances this relationship, allowing light to filter in and providing space for the trees to grow.


Stepping outside the old house, a glass floor leads into this skylit gap, designed as a version of the Japanese engawa. This outdoor space serves as a transition between the house’s interior and the surrounding nature, where trees emerge from concealed planters, much like the vine that once grew in the basement. The addition’s curved skylight creates an immersive experience, allowing residents to feel as though they are living within the canopy of the surrounding trees.



Juxtaposing Old and New: A Dialogue Between Two Architectural Worlds
At its core, the renovation of the New and Old House poses the question of what constitutes the "old" and the "new." By juxtaposing a traditional, square gabled structure with a modern addition, the project explores the intersection of historical and contemporary design. The old house, with its barn-like proportions, stands as a testament to humanity’s struggle against the elements, while the new addition embraces a contemporary approach that celebrates harmony with nature. Together, they reveal the overlapping truths of time, design, and living spaces.



A Home Where Past Meets Present
The New and Old House is a stunning example of how to honor history while embracing modernity. Through thoughtful design and an intimate connection with the surrounding landscape, the house tells a story of resilience and transformation. Julian King Architect has successfully created a space where the past is not merely preserved but celebrated, and where the new seamlessly integrates with the natural world.



All Photographs are work of julian king architect
Popular Articles
Popular articles from the community
Atelier Macri Concept Store Interior Design by CASE-REAL
Atelier Macri store features a "ko" counter, walnut wood details, cork displays, blending retail, gallery, and seamless customer experiences.
Fifth NRE Jazz Club – De Bever Architecten: Eindhoven’s Revitalized Cultural Hub
Historic gas factory transformed into Fifth NRE Jazz Club blending modern sustainability, jazz culture, dining, and heritage architecture seamlessly.
Free Architecture Competitions You Can Enter Right Now
No entry fees, real prizes. Here are the best free architecture competitions open for submissions in 2026.
Similar Reads
You might also enjoy these articles
The Ken Roberts Memorial Delineation Competition (Krob)
As the most senior architectural drawing competition currently in operation anywhere in the world, it draws hundreds of entries each year, awarding the very best submissions in a series of medium-based categories.
Waterfront Redevelopment and Urban Revitalization in Mumbai: Forging a New Dawn for Darukhana
A transformative waterfront redevelopment project reimagining Darukhana’s shipbreaking heritage into an inclusive urban future.
OUT-OF-MAP: A Call for Postcards on Feminist Narratives of Public Space
Rhizoma Design and Research Lab invites artists, designers, architects, researchers, and students to reflect on how feminist perspectives can reshape public space. Selected works will be exhibited in Barcelona, October 2026. Submissions open until 15 April 2026.
Documentation Work on Buddhist Wooden Temple
Architectural syncretism and cultural hybridity: A comparative study of the Buddhist temples in Chattogram Hill tracks
Explore Architecture Competitions
Discover active competitions in this discipline
The International Standard for Design Portfolios
The Global Benchmark for Architecture Dissertation Awards
The Global Benchmark for Graduation Excellence
Challenge to design luxury tourism on rails
Comments (0)
Please login or sign up to add comments
No comments yet. Be the first to comment!