Tropical Minimalist Architecture: Palco House by Cecchi Millan
Palco House is a refined example of tropical minimalist architecture, using open-plan design, sustainable materials, and passive cooling strategies.
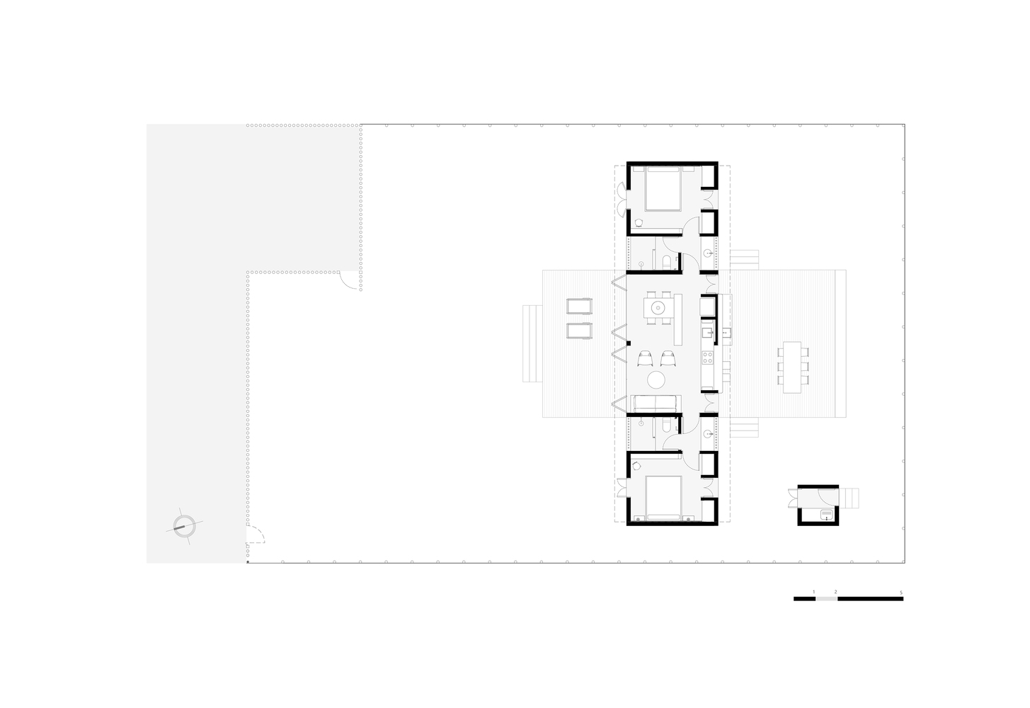
Palco House, designed by Cecchi Millan, is a refined example of tropical minimalist architecture, seamlessly integrating a contemporary pavilion with the natural beauty of Algodões Beach, Maraú, Brazil. This 70m² residence is an architectural response to its environment, prioritizing simplicity, openness, and natural ventilation. Conceived for a young artist, the house harmonizes with its surroundings, creating a light, elevated structure that embodies the essence of tropical living.




A Pavilion in Harmony with Nature
Palco House follows a linear spatial organization, ensuring an uninterrupted connection between the interior and the lush tropical landscape. The living space, kitchen, and two suites unfold in a single open-plan volume, promoting seamless transitions between rooms while embracing cross-ventilation and natural lighting. Floor-to-ceiling openings dissolve the boundary between architecture and nature, allowing breezes to flow freely and daylight to illuminate the interiors.



Extending from the primary volume, a deck enhances the living space, offering an outdoor extension of the interior. This platform creates a fluid relationship between built form and landscape, making the house feel like a natural extension of its environment.



Minimalist Design with Sustainable Principles
The structural design of Palco House emphasizes elevated construction, minimizing its impact on the terrain while promoting lightness and permeability. Raised above ground, the house reduces soil disturbance, encourages air circulation beneath the structure, and provides protection from humidity.


Material selection further reinforces the simplicity and authenticity of the design. Locally sourced materials contribute to sustainability and regional craftsmanship, enhancing the tactile quality of the architecture. The palette consists of wood, concrete, and glass, each selected for its durability and harmonious integration with the surroundings. This restrained material approach embodies the principles of tropical minimalism, where architecture exists as a backdrop to the natural landscape rather than dominating it.


Blurring the Boundaries Between Indoors and Outdoors
A defining characteristic of tropical minimalist architecture is its ability to dissolve the limits between built space and nature. Palco House achieves this through expansive windows, sliding doors, and an open layout, ensuring that every room maintains a visual and physical connection with the outdoors.


This openness creates an immersive experience where residents engage with their surroundings, feeling the rhythm of the coastal breeze, the shifting sunlight, and the ambient sounds of nature. By prioritizing transparency and spatial fluidity, the house cultivates a sense of tranquility and retreat, embracing a lifestyle that is both modern and deeply rooted in its natural setting.


A Paradigm of Tropical Minimalist Living
Palco House stands as an exemplar of tropical minimalist architecture, where design simplicity, environmental responsiveness, and spatial fluidity define a new way of living. It reinterprets modernist principles through the lens of tropical sensibilities, creating a home that is at once functional, elegant, and deeply connected to nature.


By integrating local materials, passive cooling strategies, and a seamless connection to the outdoors, this project highlights the potential of minimalist tropical design in shaping contemporary coastal dwellings. Palco House is not merely a residence—it is an architectural statement on how modern homes can coexist with the natural world, offering a blueprint for sustainable, climate-responsive living.



All Photographs are works of Pedro Ingber, Oka Fotografia
Popular Articles
Popular articles from the community
Fifth NRE Jazz Club – De Bever Architecten: Eindhoven’s Revitalized Cultural Hub
Historic gas factory transformed into Fifth NRE Jazz Club blending modern sustainability, jazz culture, dining, and heritage architecture seamlessly.
The Ken Roberts Memorial Delineation Competition (Krob)
As the most senior architectural drawing competition currently in operation anywhere in the world, it draws hundreds of entries each year, awarding the very best submissions in a series of medium-based categories.
Inverted Architecture Installation by Studio Link-Arc: Exploring the Intersection of Architecture and Living Organisms
Inverted Architecture Installation by Studio Link-Arc blends mycelium, sustainability, inverted design, ecological cycles, and urban adaptive architecture in Shenzhen.
Louis Malle Cinema: A Limestone Cultural Landmark Revitalizing Community Life in Prayssac
Limestone cinema extension with public forecourt, blending heritage and modern design to create flexible cultural spaces and strengthen community interaction.
Similar Reads
You might also enjoy these articles
Top 15 Architecture Competitions to Enter in 2026
From student-friendly idea competitions to prestigious international awards, here are the best architecture competitions open for entries in 2026. Updated regularly.
DIY & Engineering in Computational Design : Enter the BeeGraphy Design Awards
Showcase Your Creativity with Computational Design and Open Source Projects

Innovative Design Solutions: Award-Winning Projects from Recent Architecture Competitions
Exploring award-winning architectural projects shaping the future of design, sustainability, and community.
Explore Architecture Competitions
Discover active competitions in this discipline
The International Standard for Design Portfolios
The Global Benchmark for Architecture Dissertation Awards
The Global Benchmark for Graduation Excellence
Challenge to reimagine the Iron Throne
Comments (0)
Please login or sign up to add comments
No comments yet. Be the first to comment!