Urban Mixed-Use Architecture in Mexico City: A Deep Dive into QO Apartments by Archetonic
Exploring QO Apartments by Archetonic, a model of urban mixed-use architecture in Mexico City that blends living, working, and commerce seamlessly.
In the bustling heart of Mexico City, QO Apartments stand as a beacon of urban mixed-use architecture, masterfully designed by Archetonic. This project exemplifies how architecture can respond to the complexities of city living, offering a multifunctional space that blends commercial, residential, and office uses seamlessly.


Architectural Vision of QO Apartments
The Challenge of Urban Space
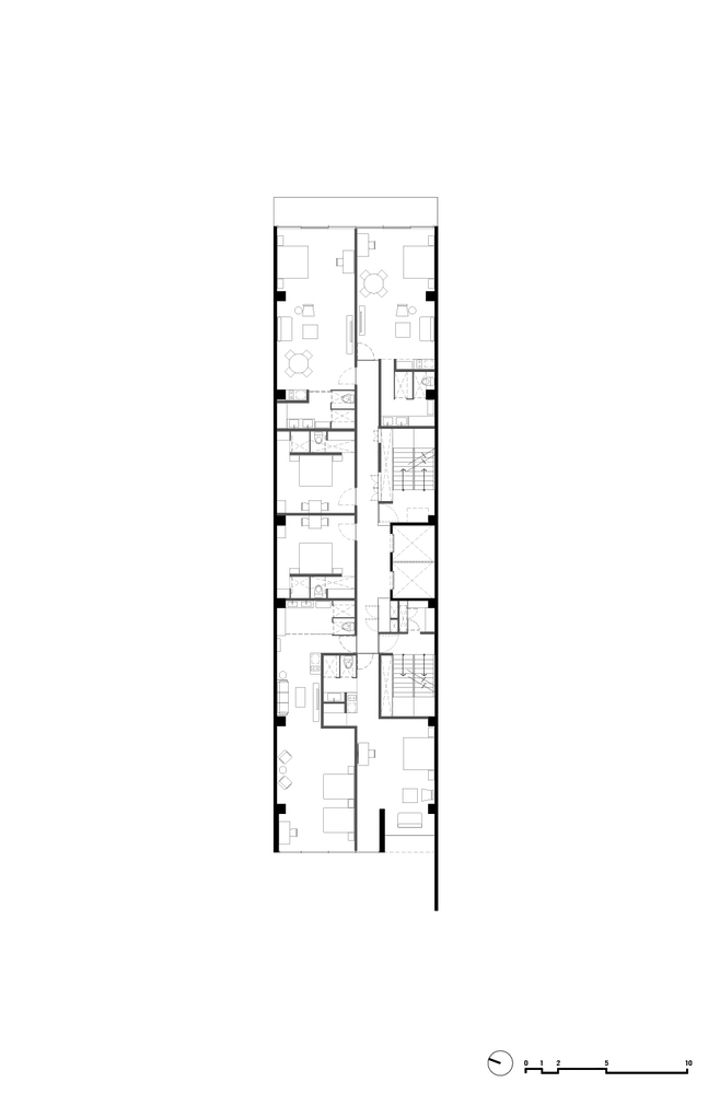
The QO Apartments project tackles the challenge of a narrow and elongated urban plot with a smart and responsive design. Spanning a full city block, this mixed-use building is a testament to thoughtful urban planning and architectural ingenuity.


A Facade that Responds to Its Surroundings
Archetonic's solution to the facade is a dialogue with the urban context, responding to each adjacent building and void. This approach not only enhances the building's aesthetic but also its interaction with the surrounding cityscape.




Inside the QO Apartments
Maximizing Light and Views
Through strategic displacement of volumes and extensive use of glass, QO Apartments maximize natural light and offer stunning views of Chapultepec Forest and Mexico City. This design choice underscores the importance of connection to the outdoors in urban architecture.





A Diverse Mix of Uses
Across its 9 levels, QO Apartments incorporates a variety of spaces, including commercial areas, residential lofts, suites, and offices. The interior design embraces exposed structural elements and minimal finishes, emphasizing the building's raw beauty and functionality.





Materiality and Integration with the Urban Fabric
Experimenting with Concrete
The side facades of QO Apartments reveal a material experimentation with exposed concrete, showcasing different shades, textures, and formats. This choice adds depth and character to the building, reflecting the diverse urban atmosphere of Mexico City.




Seamless Urban Integration
Viewed from above, QO Apartments harmonizes with the neighboring rooftops, stairs, and facades, becoming an integral part of Mexico City's vibrant urban landscape. This integration speaks to the project's success as a piece of urban mixed-use architecture.





Redefining Urban Living
QO Apartments by Archetonic represents a forward-thinking approach to urban mixed-use architecture in Mexico City. By addressing the challenges of urban density and mixed functionality, this project sets a new standard for architectural excellence in the city. As we continue to explore solutions for sustainable and livable urban environments, QO Apartments serve as a benchmark for innovation and integration.





All photographs are work of Andrés Cedillo, Marcelo Rodríguez, Arturo Arrieta
Popular Articles
Popular articles from the community
A Contemporary Take on Iranian Residential Architecture
A modern interior design in Mashhad that reinterprets brick, light, and spatial flow to create a warm, contemporary residential architecture.
Atelier Macri Concept Store Interior Design by CASE-REAL
Atelier Macri store features a "ko" counter, walnut wood details, cork displays, blending retail, gallery, and seamless customer experiences.
Louis Malle Cinema: A Limestone Cultural Landmark Revitalizing Community Life in Prayssac
Limestone cinema extension with public forecourt, blending heritage and modern design to create flexible cultural spaces and strengthen community interaction.
Treehouse Apartment: A Warm Timber Interior Blending Craft, Play, and Contemporary Living
Warm timber apartment with integrated treehouse, combining natural materials, craftsmanship, and playful design to create a flexible, family-oriented living environment.
Similar Reads
You might also enjoy these articles
Top 15 Architecture Competitions to Enter in 2026
From student-friendly idea competitions to prestigious international awards, here are the best architecture competitions open for entries in 2026. Updated regularly.
DIY & Engineering in Computational Design : Enter the BeeGraphy Design Awards
Showcase Your Creativity with Computational Design and Open Source Projects

Innovative Design Solutions: Award-Winning Projects from Recent Architecture Competitions
Exploring award-winning architectural projects shaping the future of design, sustainability, and community.
Explore Architecture Competitions
Discover active competitions in this discipline
The International Standard for Design Portfolios
The Global Benchmark for Architecture Dissertation Awards
The Global Benchmark for Graduation Excellence
Challenge to reimagine the Iron Throne
Comments (0)
Please login or sign up to add comments
No comments yet. Be the first to comment!