WO House Indonesia: Modern Tropical Interior Design by Matter of Something
WO House blends modern tropical design, functionality, and natural materials, creating a serene and timeless family residence in Indonesia.
WO House, a residential masterpiece by Matter of Something, is located in Kecamatan Lima Puluh, Indonesia. Completed in 2023, this architectural gem embodies modern tropical interior design principles, blending functionality and aesthetics to create a seamless living environment. The project reimagines a former car garage into a dynamic extended family residence, showcasing a harmonious balance between the existing architectural structure and innovative interior design.


The project places emphasis on adapting to Indonesia's tropical climate, utilizing natural materials and design techniques that respond to the environment while maintaining a timeless modern appeal.


Architecture and Spatial Transformation
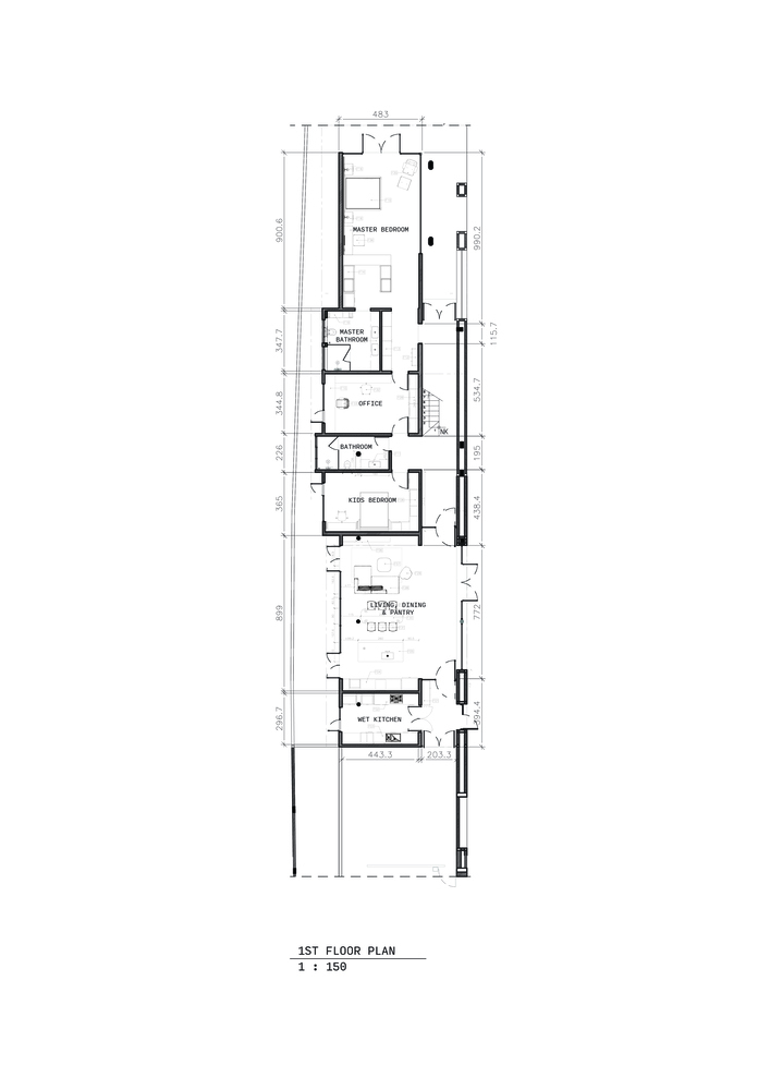
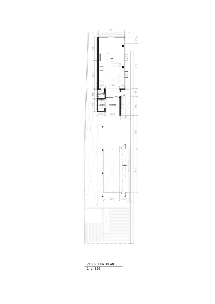
WO House’s design embraces the tropical architectural roots of the original structure. The transformation involved repurposing the ground floor into a cohesive living space that includes the kitchen, pantry, dining, and living areas, as well as the main bedroom and two smaller bedrooms.

The main bedroom serves as a central retreat, designed for maximum comfort and privacy. Above this space, a gym occupies the second floor, while the library stands out as a unique feature of the home. The library provides a tranquil, engaging environment for hobbies and relaxation while maintaining its connection to the house's core.

The spatial transformation of WO House exemplifies a thoughtful approach to maximizing functionality within the existing footprint, creating a layout that is both practical and elegant.

Interior Design Approach
The interior design of WO House focuses on complementing the existing architecture while introducing modern and timeless elements. The choice of materials was central to achieving this vision. Natural materials like wood, stone, and marble dominate the design, bringing durability and warmth to the spaces. These materials were paired with a neutral color palette to create a serene and inviting atmosphere.

Stone accent walls and preserved ceiling textures in the living area add character to the home while maintaining harmony with the existing architectural features. This integration ensures a balanced aesthetic that reflects both the structure's history and the interior's modern updates.

The design also emphasizes the connection between spaces, creating an open and flexible layout. The flow between rooms is seamless, fostering a sense of unity and expansiveness throughout the home.

Tropical Design Principles
WO House integrates tropical design principles that respond to Indonesia’s climate. The design maximizes natural ventilation and light while using materials that offer durability and cooling properties. The emphasis on openness ensures that spaces remain comfortable year-round, enhancing the residents' quality of life.



The combination of tropical design principles with a modern aesthetic results in a home that is both practical for the environment and visually stunning. This thoughtful approach reflects Matter of Something’s expertise in creating spaces that resonate with the local climate and culture.


WO House by Matter of Something is a testament to the power of thoughtful design and its ability to transform spaces. By blending modern tropical design principles with timeless materials and a cohesive layout, the architects have created a home that celebrates both functionality and aesthetics.




This residence not only adapts to its environment but also enhances the daily lives of its inhabitants, offering a serene, flexible, and visually engaging space. WO House is a model of modern tropical interior design, setting a benchmark for future residential projects in Indonesia and beyond.


All Photographs are work of Steven Sundjaja, Oktobianto Dwi Prasetyo
Popular Articles
Popular articles from the community
The Ken Roberts Memorial Delineation Competition (Krob)
As the most senior architectural drawing competition currently in operation anywhere in the world, it draws hundreds of entries each year, awarding the very best submissions in a series of medium-based categories.
Alton Cliff House: A Harmonious Retreat by f2a Architecture in Lake Country, Canada
Alton Cliff House blends corten steel, prefabrication, and sustainable design, creating a luxurious, energy-efficient retreat perched on Canadian cliffs.
Inverted Architecture Installation by Studio Link-Arc: Exploring the Intersection of Architecture and Living Organisms
Inverted Architecture Installation by Studio Link-Arc blends mycelium, sustainability, inverted design, ecological cycles, and urban adaptive architecture in Shenzhen.
Similar Reads
You might also enjoy these articles
The Ken Roberts Memorial Delineation Competition (Krob)
As the most senior architectural drawing competition currently in operation anywhere in the world, it draws hundreds of entries each year, awarding the very best submissions in a series of medium-based categories.
Waterfront Redevelopment and Urban Revitalization in Mumbai: Forging a New Dawn for Darukhana
A transformative waterfront redevelopment project reimagining Darukhana’s shipbreaking heritage into an inclusive urban future.
OUT-OF-MAP: A Call for Postcards on Feminist Narratives of Public Space
Rhizoma Design and Research Lab invites artists, designers, architects, researchers, and students to reflect on how feminist perspectives can reshape public space. Selected works will be exhibited in Barcelona, October 2026. Submissions open until 15 April 2026.
Documentation Work on Buddhist Wooden Temple
Architectural syncretism and cultural hybridity: A comparative study of the Buddhist temples in Chattogram Hill tracks
Explore Architecture Competitions
Discover active competitions in this discipline
The International Standard for Design Portfolios
The Global Benchmark for Architecture Dissertation Awards
The Global Benchmark for Graduation Excellence
Challenge to reimagine the Iron Throne
Comments (0)
Please login or sign up to add comments
No comments yet. Be the first to comment!