Wonderful Wooman by IDR Architects: A Masterpiece of Urban Infill Architecture in Suwon-si
A refined urban infill project blending brick tradition, mixed-use flexibility, and a rooftop pool in Suwon-si by IDR Architects.
Integrating Modern Living into the Historic Texture of South Korean Neighborhoods
In Suwon-si, South Korea, Wonderful Wooman by IDR Architects presents a refined example of urban infill architecture, skillfully merging contemporary design with the layered memory of its neighborhood. Located near the Suwon World Cup Stadium, this four-story mixed-use structure reinterprets the 1970s-era brick house vernacular—red bricks, white railings, and modest footprints—that still defines many low-rise districts in Korea. Rather than disrupting its surroundings, the project harmonizes with its context through carefully calibrated material choices and architectural language.




A Contemporary Take on Brick Typologies
Responding to the prevalent three-story brick houses of the past, Wonderful Wooman adopts a lighter red-toned brick façade. This subtle variation allows the building to stand out while preserving visual continuity within the streetscape. The structure neither mimics nor overshadows its neighbors but carves a quiet distinction by modernizing tradition. In doing so, it reinforces the power of urban infill architecture to balance innovation with contextual sensitivity.




Spatial Adaptability in a Compact Urban Plot
On a 155-square-meter site, the building efficiently accommodates commercial spaces and a private residence across four compact levels. The first two floors feature flexible retail units that operate independently or as a single space, aided by dual entrances and foldable doors that animate the northeast façade. Glazing layers allow these floors to open to the street, fostering a dynamic yet controlled urban interface.



Above the commercial base, the residence is reached via a private internal stair or a discreet elevator entrance on the rear façade, ensuring privacy without sacrificing accessibility. The layout exemplifies programmatic agility—responding to the demands of a densely built neighborhood that eschews rigid zoning in favor of organic, adaptable design solutions.



A Gabled Retreat Anchored by Water
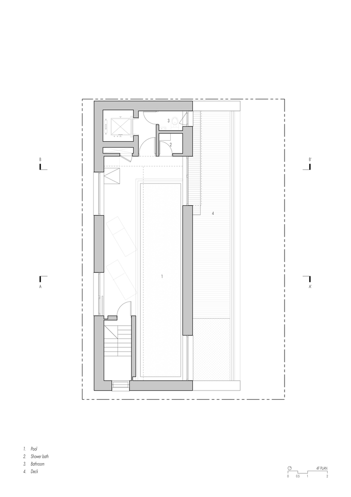
Perhaps the most compelling architectural gesture is found at the top: a private indoor swimming pool under a steeply pitched gabled roof. Measuring 2 by 10 meters, this pool not only defines the building’s identity—its name, Wonderful Uman, is a playful homage to the Korean word for pool—but also serves as a structural element. The concrete pool basin doubles as a beam that supports the building’s main span, seamlessly marrying utility and serenity.



Clerestory windows and high ceilings flood the pool area with natural light during the day. At night, a combination of underwater and indirect lighting transforms the space into a tranquil sanctuary floating above the city. It’s a poetic reinterpretation of leisure in an urban context—something rare and luxurious within such a tight urban footprint.

Design Details that Elevate Functionality
Attention to detail distinguishes this project further. One standout example is the overflow gutter of the pool: eschewing the usual metal grates, the architects opted for a tiled cover matching the pool floor. Water drains through narrow joints, creating an almost invisible mechanism that aligns function with visual purity. This reflects the broader design ethos of Wonderful Wooman—an urban infill architecture project that prioritizes harmony, versatility, and restraint.




A Quietly Radical Urban Infill
More than just a mixed-use building, Wonderful Wooman is a testament to the transformative potential of urban infill architecture. It is a gentle yet bold statement about living, working, and relaxing within the constraints—and possibilities—of a dense city fabric. Thoughtfully embedded in its context, it sets a precedent for future urban interventions that aim not to overwrite the past but to build upon it with intelligence and grace.




All photographs are works of Rohspace
Popular Articles
Popular articles from the community
Split House: A Compact Urban Home Blending Privacy, Light, and Flexible Living in Japan
Compact Japanese home featuring DOMA space, flexible café potential, passive lighting, privacy zoning, and sustainable urban living design.
Fifth NRE Jazz Club – De Bever Architecten: Eindhoven’s Revitalized Cultural Hub
Historic gas factory transformed into Fifth NRE Jazz Club blending modern sustainability, jazz culture, dining, and heritage architecture seamlessly.
Inverted Architecture Installation by Studio Link-Arc: Exploring the Intersection of Architecture and Living Organisms
Inverted Architecture Installation by Studio Link-Arc blends mycelium, sustainability, inverted design, ecological cycles, and urban adaptive architecture in Shenzhen.
Free Architecture Competitions You Can Enter Right Now
No entry fees, real prizes. Here are the best free architecture competitions open for submissions in 2026.
Similar Reads
You might also enjoy these articles
Bamboo Housing Challenge 2026: Design Affordable, Sustainable Homes Using Bamboo
An international design competition by Bamboo U and IBUKU inviting architects and designers to reimagine affordable housing using bamboo — with the winning design built full-scale in Bali.
Computational Design & Education: Beegraphy Design Awards Introduces 7th Category (Featuring Jiyun's Innovative Approach)
Dive into Beegraphy’s 7th Design Awards category, where computational design meets education to create immersive, interactive learning tools, inspired by Jiyun’s work.
From Parametric Lighting to Urban Furniture: Join the 2nd Workshop in Beegraphy’s Computational Design Series
Dive into Cutting-Edge Design Techniques and Practical Applications with Industry Experts
Explore Architecture Competitions
Discover active competitions in this discipline
The International Standard for Design Portfolios
The Global Benchmark for Architecture Dissertation Awards
The Global Benchmark for Graduation Excellence
Challenge to reimagine the Iron Throne
Comments (0)
Please login or sign up to add comments
No comments yet. Be the first to comment!