1640 14th St by HGA: A Model of Sustainable Commercial Architecture in Santa Monica1640 14th St by HGA: A Model of Sustainable Commercial Architecture in Santa Monica

1640 14th St by HGA: A Model of Sustainable Commercial Architecture in Santa Monica

UNI Editorial
UNI Editorial published Story under Architecture on

Revitalizing Urban Space with a Sustainable Vision

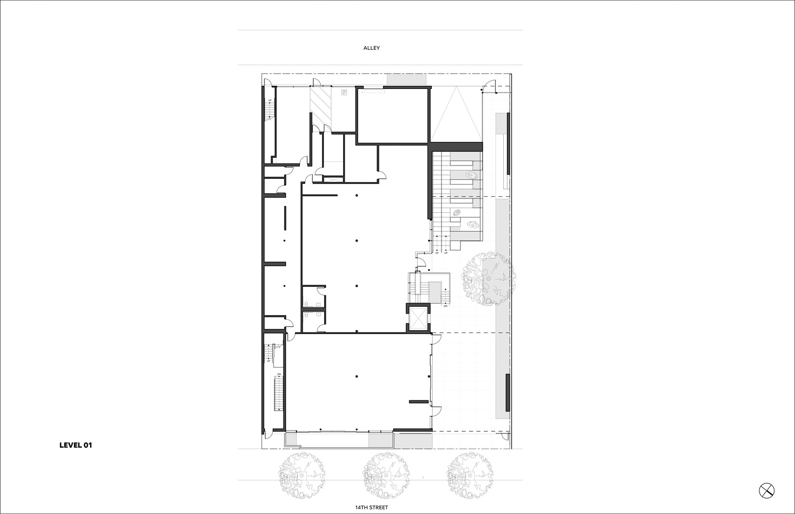
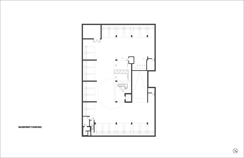
Located in a once-industrial neighborhood of Santa Monica, California, 1640 14th St is a forward-thinking mixed-use development by HGA that redefines sustainable commercial architecture. Commissioned by Los Angeles-based developer Redcar Ltd., the project breathes new life into a former tow yard by introducing a three-story commercial complex designed to foster community connection, wellness, and environmental resilience.

Article image
Article image
Article image
Article image

Urban Infill with Community at its Core

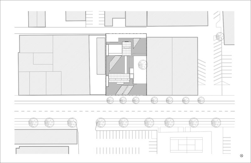
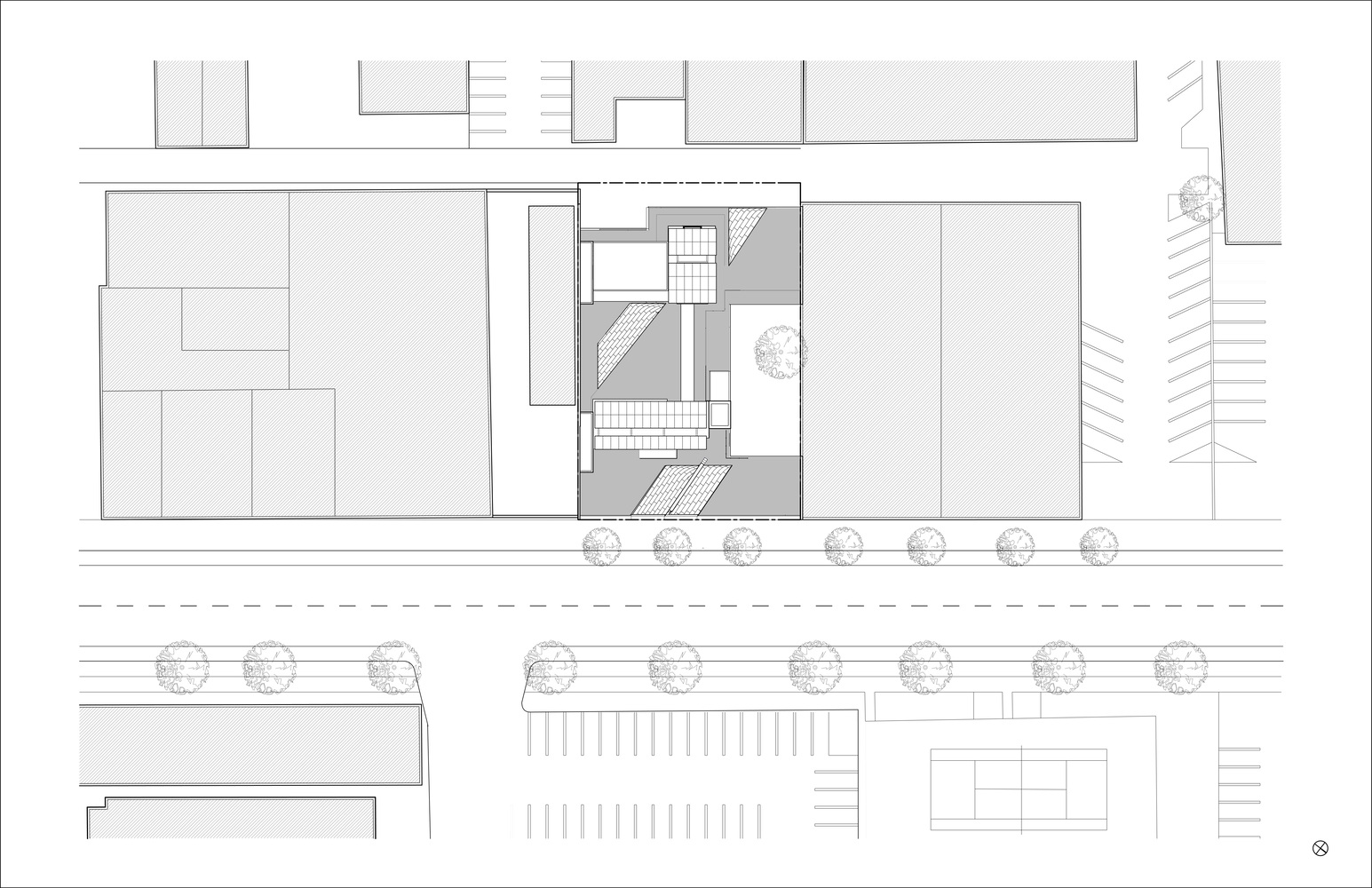
The building responds to Santa Monica’s larger civic master plan by increasing pedestrian connectivity in a city long divided by the interstate. Designed as a ground-up, urban infill project, it integrates a mix of functions—creative offices, a street-facing restaurant, and a vibrant courtyard paseo—into a site-specific solution that encourages walkability, inclusion, and neighborhood activation.

Article image
Article image
Article image
Article image

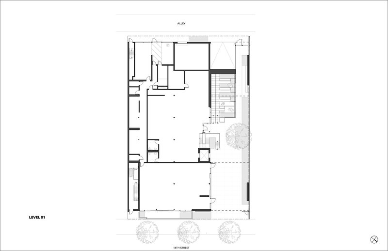
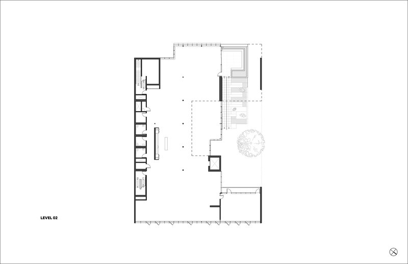
Spatial Strategy and Courtyard Integration

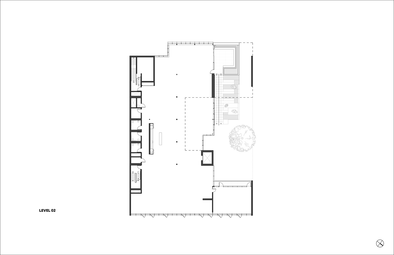
At the heart of the development is a landscaped courtyard, or paseo, which connects the public street to a nearby park. This outdoor social spine is not only a central circulation route but a dynamic public realm where tenants and passersby can interact. By organizing the program around this shared space, the architecture promotes spontaneous gathering and enhances the sense of openness throughout the site.

Article image
Article image
Article image
Article image

Architectural Form Informed by Local Heritage

The structure’s roofline features curved profiles derived from historic warehouse stick frames, a nod to the industrial past of the area. These double-height spaces are crowned with north-facing clerestories that bring in abundant daylight, reducing the need for artificial lighting and enhancing occupant comfort. Private terraces on all floors provide additional outdoor areas, reinforcing the building’s indoor-outdoor dialogue.

Article image
Article image
Article image

Passive Design Meets Renewable Innovation

A key feature of this sustainable commercial architecture is its integration of passive design strategies. The building maximizes daylight through clerestory glazing and uses high-performance, north-facing glass to minimize solar heat gain while preserving transparency. Operable windows facilitate cross-ventilation, significantly reducing the reliance on mechanical cooling systems despite generous glazing throughout the structure.

Article image
Article image

On the rooftop, a trellis-mounted solar photovoltaic array doubles the requirements of Santa Monica’s ZNE (Zero Net Energy) Reach Code. This renewable system not only powers the building but also shades rooftop gathering areas, blending energy performance with comfort and usability.

Article image
Article image

Material Strategy and Local Sourcing

Sustainability is further reinforced through thoughtful material selection. Locally fabricated steel windows and doors, along with natural and regionally sourced construction materials, contribute to a reduced carbon footprint. The emphasis on durability and low-maintenance finishes ensures the building’s longevity while aligning with environmental responsibility.

Article image

Health, Wellness, and Social Connectivity

Designed with occupant well-being in mind, 1640 14th St prioritizes natural ventilation, daylight, and biophilic design. The courtyard and rooftop garden—both landscaped with native plantings—offer tranquil, restorative environments that support mental and physical health. These green zones serve as extensions of workspaces and foster a culture of community engagement among tenants and visitors alike.

Article image

The ground-floor restaurant opens directly onto the street and paseo, transforming what was once a private, industrial lot into a vibrant public amenity. In doing so, the building not only enhances its commercial function but also contributes to the broader urban fabric of Santa Monica.

Article image

A Template for Sustainable Urban Growth

1640 14th St represents a shift in commercial development—one that values context, sustainability, and social impact. Through architectural innovation, ecological stewardship, and civic engagement, HGA’s design offers a compelling model for how sustainable commercial architecture can shape healthier cities and stronger communities.

Article image

All Photographs are works of Eric Staudenmaier

UNI Editorial

UNI Editorial

Where architecture meets innovation, through curated news, insights, and reviews from around the globe.

Share your ideas with the world

Share your ideas with the world

Write about your design process, research, or opinions. Your voice matters in the architecture community.

Comments (0)

No comments yet. Be the first to comment!

Similar Reads

You might also enjoy these articles

publishedStory6 days ago
The Ken Roberts Memorial Delineation Competition (Krob)
publishedStory1 month ago
Waterfront Redevelopment and Urban Revitalization in Mumbai: Forging a New Dawn for Darukhana
publishedStory1 month ago
OUT-OF-MAP: A Call for Postcards on Feminist Narratives of Public Space
publishedStory1 month ago
Documentation Work on Buddhist Wooden  Temple

Explore Architecture Competitions

Discover active competitions in this discipline

UNI Editorial
Search in