Back to Front House by Ian Moore Architects: A Refined Heritage House Renovation in Potts Point
A 19th-century sandstone terrace reimagined as a sustainable, modern home through a precise and layered heritage house renovation.
Reinterpreting History with Modern Precision
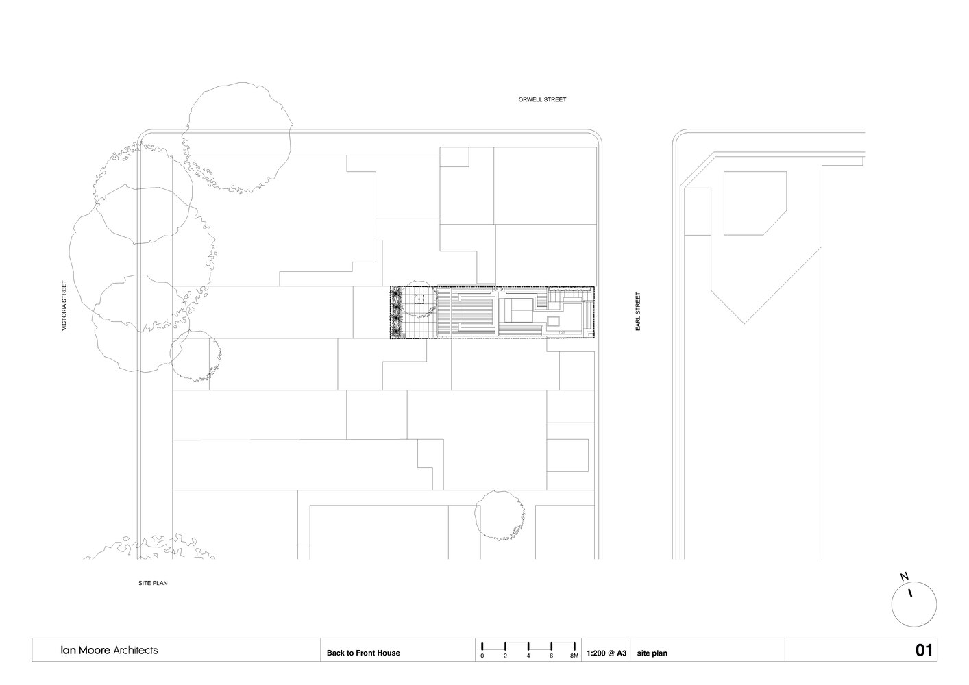
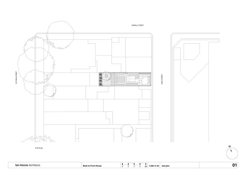
Nestled within the historic fabric of Potts Point, Sydney, the Back to Front House by Ian Moore Architects exemplifies a sensitive yet striking heritage house renovation. Originally one of four identical sandstone terrace houses from 1863, this 110 m² residence has undergone a bold transformation that bridges its rich historical legacy with contemporary architectural clarity.




A Site Inverted by Time
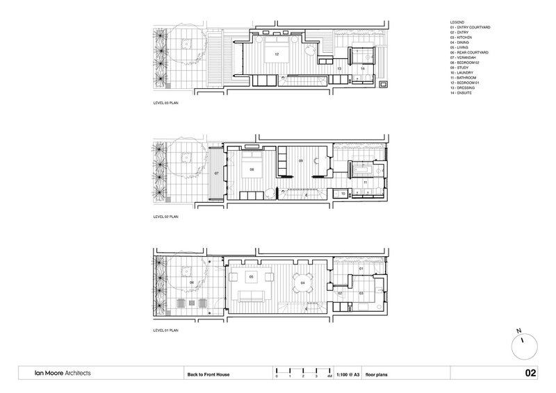
The building’s spatial identity was redefined in the 1980s when the front garden was subdivided, shifting the entrance to a rear laneway. This reorientation not only altered the house’s access but also its relationship with the surrounding streetscape. With an additional two-storey brick wing from a later era and a fragmented layout, the house faced challenges typical of heritage properties: restricted space, limited light, and planning constraints within a conservation area.



A Tower of Contrast: Steel Meets Sandstone
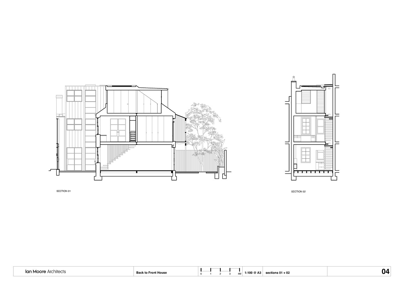
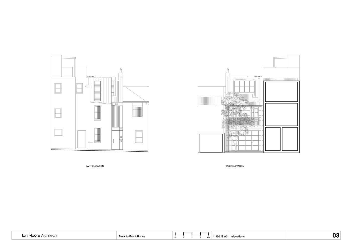
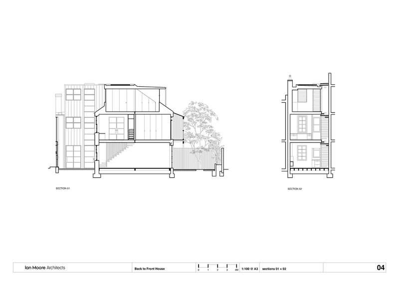
In response, the architects proposed a new three-storey steel-clad tower inserted behind the original sandstone structure. While the historical façade with its timber-framed windows and doors was meticulously preserved, the new addition boldly declares its presence with sleek steel panels, modern glazing, and sunshades. This deliberate material contrast emphasizes the timeline of interventions and respects conservation guidelines mandating the clear distinction between old and new.




Connecting Past and Present Through Light and Structure
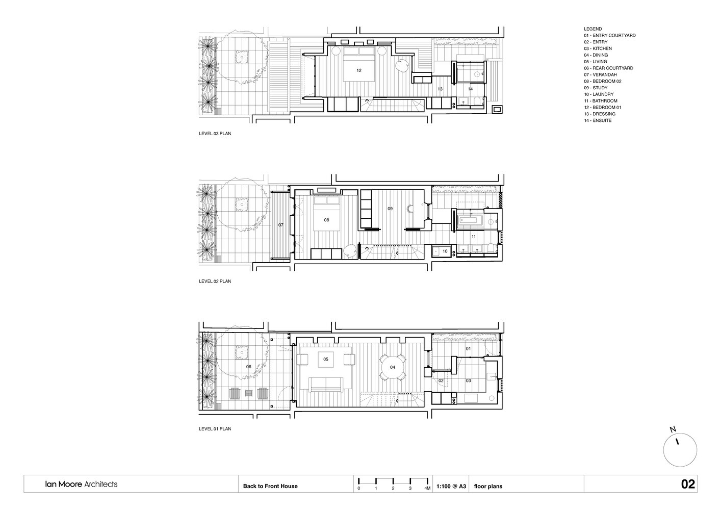
Central to the spatial redesign is a steel-and-timber staircase beneath a generous skylight, flooding the formerly dim interiors with natural light. This vertical void becomes the heart of the project, distributing daylight through all levels and reinforcing the connection between contemporary intervention and historical structure.



A glazed link bridges the steel tower and the sandstone house, where former exterior walls are now revealed indoors as tactile stone portals. This move preserves the integrity of the original envelope while allowing fluid movement between old and new.



Material Language as Architectural Narrative
Materials throughout the home were curated to articulate the project’s chronological layers. Oak flooring runs through the retained sandstone structure, while bathrooms, kitchen surfaces, and outdoor zones are defined by grey travertine slabs. These finishes create a visual and tactile rhythm that reflects the evolution of the house while enhancing durability and comfort.


A 5.2-meter steel portal facing the laneway marks the new primary entrance, featuring a gate and an upper-level privacy screen. This commanding yet minimalist gesture signals the residence's reversal in orientation while protecting its renewed interiority.


Sustainable Design for Contemporary Living
Despite its compact scale and complex context, the house operates entirely without mechanical cooling. Instead, it relies on cross-ventilation, ceiling fans, shaded openings, a highly insulated building envelope, solar hot water, and electric underfloor heating. All appliances are electric, and LED lighting is used throughout—demonstrating how heritage house renovation can incorporate sustainable technologies without compromising authenticity or comfort.



A Dialogue Between Heritage and Modernity
Ian Moore Architects’ Back to Front House isn’t simply a renovation—it is an architectural reconciliation. It reframes a compromised historic property by reinvigorating its circulation, light, and use. By highlighting what was and what is, the project offers a compelling narrative of urban evolution and architectural sensitivity, marking it as a standout in Australia’s residential transformation landscape.





All photographs are works of Clinton Weaver
Popular Articles
Popular articles from the community
Atelier Macri Concept Store Interior Design by CASE-REAL
Atelier Macri store features a "ko" counter, walnut wood details, cork displays, blending retail, gallery, and seamless customer experiences.
Louis Malle Cinema: A Limestone Cultural Landmark Revitalizing Community Life in Prayssac
Limestone cinema extension with public forecourt, blending heritage and modern design to create flexible cultural spaces and strengthen community interaction.
An Miên Lumière Cafe by xưởng xép, Ho Chi Minh City, Vietnam
An industrial-inspired café where layered steel and warm light create a dynamic, immersive environment shaped by reflection, depth, and perception.
Inverted Architecture Installation by Studio Link-Arc: Exploring the Intersection of Architecture and Living Organisms
Inverted Architecture Installation by Studio Link-Arc blends mycelium, sustainability, inverted design, ecological cycles, and urban adaptive architecture in Shenzhen.
Similar Reads
You might also enjoy these articles
Bamboo Housing Challenge 2026: Design Affordable, Sustainable Homes Using Bamboo
An international design competition by Bamboo U and IBUKU inviting architects and designers to reimagine affordable housing using bamboo — with the winning design built full-scale in Bali.
Computational Design & Education: Beegraphy Design Awards Introduces 7th Category (Featuring Jiyun's Innovative Approach)
Dive into Beegraphy’s 7th Design Awards category, where computational design meets education to create immersive, interactive learning tools, inspired by Jiyun’s work.
From Parametric Lighting to Urban Furniture: Join the 2nd Workshop in Beegraphy’s Computational Design Series
Dive into Cutting-Edge Design Techniques and Practical Applications with Industry Experts
Introducing Sphere by UNI: Pioneering a New Era in AEC Industry
Unlocking Global Potential with BIM and Agile Management
Explore Architecture Competitions
Discover active competitions in this discipline
The International Standard for Design Portfolios
The Global Benchmark for Architecture Dissertation Awards
The Global Benchmark for Graduation Excellence
Challenge to reimagine the Iron Throne
Comments (0)
Please login or sign up to add comments
No comments yet. Be the first to comment!