Blue Bottle Coffee Pop-Up Café in Shibuya by Schemata Architects: A Minimalist Beehive for Contactless Coffee Culture
Minimalist beehive-inspired café in Shibuya with glowing wood-acrylic interiors, designed for contactless coffee service by Schemata Architects.
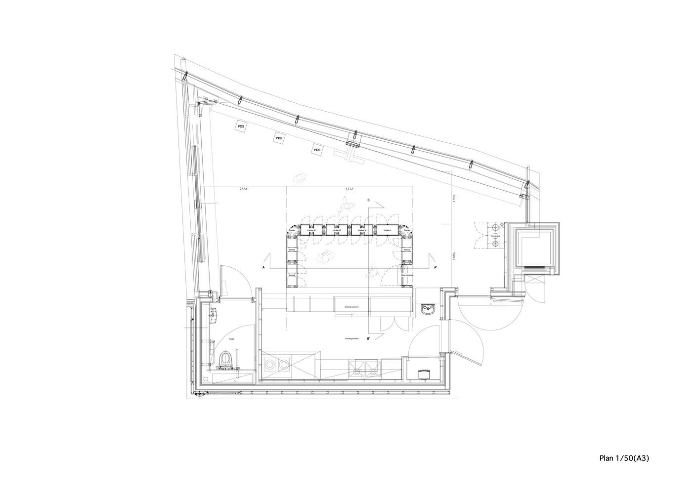
Located in the heart of Shibuya City, Tokyo, the Blue Bottle Coffee Pop-Up Café designed by Schemata Architects redefines coffee retail architecture in the post-pandemic era. Completed in 2022, this compact 60 m² space was born out of a collaboration between James Freeman, founder of Blue Bottle Coffee, and architect Jo Nagasaka of Schemata Architects. The project is a direct response to the shifting dynamics of customer interaction brought on by the COVID-19 pandemic, where indirect and contactless service became a vital necessity.


Beehive-Inspired Spatial Concept
Schemata Architects drew inspiration from the natural structure of a beehive—a metaphor for order, connectivity, and subtle community interactions. This conceptual foundation shaped the design of a locker-style sales fixture, which now functions as the café’s central design element. Unlike traditional cafés that invite guests in with an open counter facing the entrance, this pop-up embraces a new model of spatial interaction—warmth through materiality and light, not physical proximity.


Architecture That Glows with Indirect Warmth
In response to the loss of face-to-face hospitality, the architects focused on creating an emotive spatial experience through material tactility and ambient light. The interior features a wooden framework enveloped in frosted acrylic panels. This design choice allows light to glow softly outward as the door opens and closes, subtly replicating the welcoming atmosphere once delivered through human interaction.
The space is minimal yet emotionally resonant—a honeycomb of light and texture that quietly acknowledges customers while prioritizing efficiency and safety.


A Future-Forward Model of Coffee Service
The front of the store features a streamlined digital ordering terminal, replacing the traditional barista counter. Customers can place orders via this terminal and collect their drinks from the adjacent locker unit. This setup reduces direct contact, shortens wait times, and opens the path to full mobile app-based ordering, aligning with the growing trend toward seamless, tech-integrated retail.
Schemata Architects anticipate that this locker-based system will be further adopted across other Blue Bottle locations as part of a broader shift toward decentralized, low-contact service models.
The Blue Bottle Coffee Pop-Up Café in Shibuya is a powerful example of adaptive design responding to social and environmental shifts. Through material innovation, spatial reconfiguration, and digital integration, the project successfully creates a modern coffee experience rooted in intimacy, even at a distance.


All Photographs are works of Takumi Ota
Popular Articles
Popular articles from the community
Inverted Architecture Installation by Studio Link-Arc: Exploring the Intersection of Architecture and Living Organisms
Inverted Architecture Installation by Studio Link-Arc blends mycelium, sustainability, inverted design, ecological cycles, and urban adaptive architecture in Shenzhen.
Solar Steam: A Climate-Responsive Architecture That Redefines the Monument
A climate-responsive memorial architecture that transforms heat, decay, and time into a living system reflecting humanity’s ecological impact.
Atelier Macri Concept Store Interior Design by CASE-REAL
Atelier Macri store features a "ko" counter, walnut wood details, cork displays, blending retail, gallery, and seamless customer experiences.
Similar Reads
You might also enjoy these articles
The Ken Roberts Memorial Delineation Competition (Krob)
As the most senior architectural drawing competition currently in operation anywhere in the world, it draws hundreds of entries each year, awarding the very best submissions in a series of medium-based categories.
Waterfront Redevelopment and Urban Revitalization in Mumbai: Forging a New Dawn for Darukhana
A transformative waterfront redevelopment project reimagining Darukhana’s shipbreaking heritage into an inclusive urban future.
OUT-OF-MAP: A Call for Postcards on Feminist Narratives of Public Space
Rhizoma Design and Research Lab invites artists, designers, architects, researchers, and students to reflect on how feminist perspectives can reshape public space. Selected works will be exhibited in Barcelona, October 2026. Submissions open until 15 April 2026.
Documentation Work on Buddhist Wooden Temple
Architectural syncretism and cultural hybridity: A comparative study of the Buddhist temples in Chattogram Hill tracks
Explore Architecture Competitions
Discover active competitions in this discipline
The International Standard for Design Portfolios
The Global Benchmark for Architecture Dissertation Awards
The Global Benchmark for Graduation Excellence
Challenge to reimagine the Iron Throne
Comments (0)
Please login or sign up to add comments
No comments yet. Be the first to comment!