Caropá House by ARKITITO Arquitetura
Caropá House blends modern renovation with preserved heritage, featuring open-plan living, garden integration, natural light, and sustainable materials.
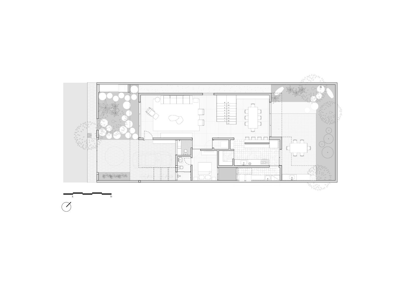
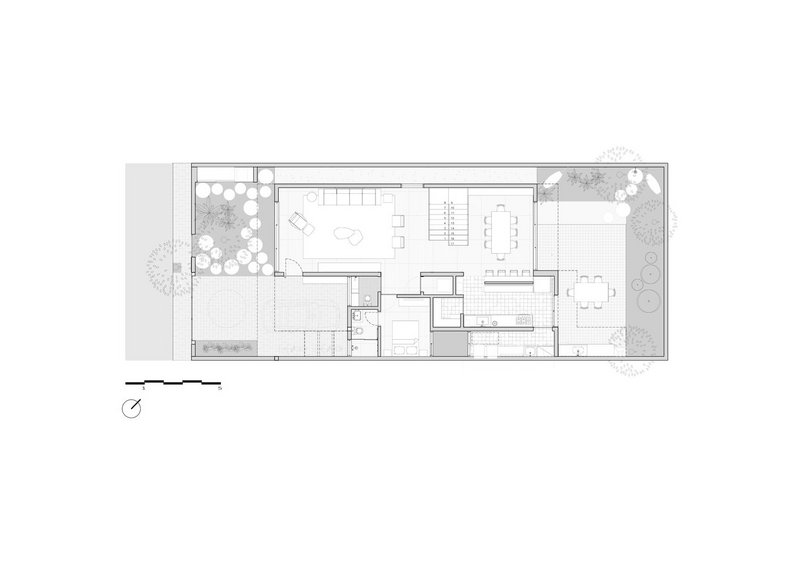
Nestled in the vibrant and leafy neighborhood of Vila Madalena, near Praça Vicentina de Carvalho, Caropá House embodies a sensitive renovation that balances contemporary living with respect for the original character of the home. The architectural intervention by ARKITITO Arquitetura focused on transforming a formerly dark and compartmentalized interior into a bright, open, and fluid space while preserving key historical and structural elements of the residence.


Spatial Reconfiguration and Ground Floor Design
Designed for a young couple and their two children, the 260m² house was reimagined to foster family interaction and outdoor connection. The ground floor was restructured to create a seamless indoor-outdoor flow, placing the main social areas—living, dining, and kitchen—between two lush gardens. A large rear opening connects the interior to a casual barbecue area and a modest yet expressive garden, reinforcing a sense of openness and natural continuity.
The integration of landscape and interior was carefully considered to maximize natural lighting and ventilation, reducing reliance on mechanical systems. The result is a harmonious blend of interior architecture and garden design that enhances the sensory and environmental quality of everyday living.


Vertical Connection and Material Expression
One of the most striking new elements is the metal staircase with cumarú wood steps, which connects the ground floor to the private spaces above. Light, perforated, and visually unobtrusive, the staircase enhances transparency and maintains visual dialogue between the living and dining areas, avoiding the interruption of spatial flow. Its white metal frame and open railing contribute to a sense of levity while maximizing spatial perception.


Upper Floor and Passive Design Strategies
The upper level houses the bedrooms, bathrooms, and a home office. Minimal structural changes were made here, but the architects enhanced natural light by expanding the original skylights and adding new windows in the bathrooms. These strategic interventions increase daylight access and reduce energy consumption, aligning the project with sustainable architectural practices.
In addition, a rooftop solarium was created, transforming the roof into a functional and light-filled space that radiates natural light throughout both floors. This addition not only supports passive thermal regulation but also offers an elevated space for leisure and relaxation.



Materials, Manufacturers, and Finishes
The renovation incorporated high-quality finishes and materials from brands like Lepri Cerâmicas, Deca, Portobello Shop, and Santa Luzia, ensuring durability and aesthetic coherence. The furniture and built-in elements emphasize clean lines and natural textures, contributing to the overall warmth and elegance of the home.


All Photographs are works of Filipe Redondo
Popular Articles
Popular articles from the community
Free Architecture Competitions You Can Enter Right Now
No entry fees, real prizes. Here are the best free architecture competitions open for submissions in 2026.
The Ken Roberts Memorial Delineation Competition (Krob)
As the most senior architectural drawing competition currently in operation anywhere in the world, it draws hundreds of entries each year, awarding the very best submissions in a series of medium-based categories.
Split House: A Compact Urban Home Blending Privacy, Light, and Flexible Living in Japan
Compact Japanese home featuring DOMA space, flexible café potential, passive lighting, privacy zoning, and sustainable urban living design.
Alton Cliff House: A Harmonious Retreat by f2a Architecture in Lake Country, Canada
Alton Cliff House blends corten steel, prefabrication, and sustainable design, creating a luxurious, energy-efficient retreat perched on Canadian cliffs.
Similar Reads
You might also enjoy these articles
The Ken Roberts Memorial Delineation Competition (Krob)
As the most senior architectural drawing competition currently in operation anywhere in the world, it draws hundreds of entries each year, awarding the very best submissions in a series of medium-based categories.
Waterfront Redevelopment and Urban Revitalization in Mumbai: Forging a New Dawn for Darukhana
A transformative waterfront redevelopment project reimagining Darukhana’s shipbreaking heritage into an inclusive urban future.
OUT-OF-MAP: A Call for Postcards on Feminist Narratives of Public Space
Rhizoma Design and Research Lab invites artists, designers, architects, researchers, and students to reflect on how feminist perspectives can reshape public space. Selected works will be exhibited in Barcelona, October 2026. Submissions open until 15 April 2026.
Documentation Work on Buddhist Wooden Temple
Architectural syncretism and cultural hybridity: A comparative study of the Buddhist temples in Chattogram Hill tracks
Explore Architecture Competitions
Discover active competitions in this discipline
The International Standard for Design Portfolios
The Global Benchmark for Architecture Dissertation Awards
The Global Benchmark for Graduation Excellence
Challenge to reimagine the Iron Throne
Comments (0)
Please login or sign up to add comments
No comments yet. Be the first to comment!