Church Conversion House Design: Junction Semi House by StudioAC
Junction Semi House is a stunning church conversion into a multi-generational home, balancing historic character with modern living needs.
Transforming Sacred Space into Modern Multi-Generational Living
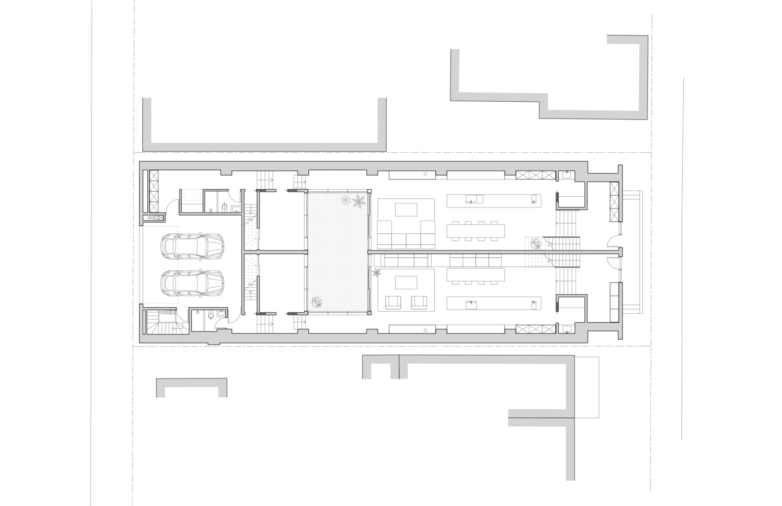
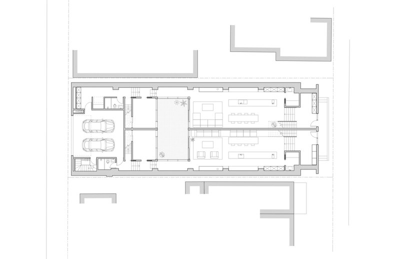
The Junction Semi House by StudioAC in Toronto’s west end is a standout example of church conversion house design, merging historical reverence with contemporary domestic needs. Once a place of worship serving various denominations, the original church structure now functions as a dual-family residence that gracefully balances communal and private living. In this project, architecture becomes a vessel for continuity—honoring the past while shaping a new narrative for the future.



Located slightly below street level, the home feels both protected and discreet. The site, which spans the full depth of the lot, allowed StudioAC to strategically carve out generous spaces that bring light deep into the building's interior. This transformation maintains the structure’s essence as a gathering space, adapting it to modern family life while preserving its spiritual undertones.


A Dual-Dwelling Home Rooted in Connection
This project reimagines the traditional home through a multi-generational lens. The building is divided into two equal semi-detached units along a north-south axis. Each family enjoys autonomy while also sharing communal zones such as the garage, courtyard, rooftop urban farm, and bedroom terraces. These shared outdoor areas were designed to foster intergenerational bonds without sacrificing privacy.


At the heart of the plan lies a central courtyard, the spatial anchor that defines circulation and function. By removing select portions of the original church structure, light now penetrates the deepest sections of the home. StudioAC retained the exposed steel framing and original wood beams as part of a sustainability-forward approach that reduced waste and emphasized the historical character of the building.



Sculpting Light and Form Through Subtraction
Unlike typical renovations, which often rely on additive design, the Junction Semi House takes a subtractive approach. The architects sculpted space by removing mass rather than adding to it. This results in a series of openings that frame views, enhance natural light, and define zones without relying on interior walls.


On the ground floor, the layout remains monolithic but is subtly articulated through carefully placed voids that introduce daylight and create spatial rhythm. The second floor builds upon this language with more defined volumes. Bedrooms are designed as quiet retreats, opening onto terraces and gardens that serve both functional and meditative purposes.


The home’s dramatic centerpiece is a double-height atrium, which begins near the entrance and floods both levels with light from above. This atrium connects residents to the time of day and weather patterns—turning light into an architectural material. A skylight and large window above introduce a warm cascade of sunlight, while a Japanese maple planted in the adjacent courtyard provides dappled privacy and seasonal variation.


Material Palette That Honors History and Light
One of the strongest features of this church conversion house design is its textured, tactile material palette. Rather than using bold colors or flamboyant finishes, StudioAC opted for restraint—choosing materials that age gracefully and respond to changing light conditions.



Limewash paint and microcement walls create a soft, matte finish that enhances shadows and diffuses natural light. Original brickwork and exposed beams are retained, not only as structural necessities but as historical artefacts, grounding the contemporary renovation in its past. The interior becomes a canvas for light and time, rather than an exhibition of materials.




From Sacred to Domestic: A Layered Transformation
The Junction Semi House exemplifies how adaptive reuse can result in deeply livable architecture. It honors the social, spiritual, and spatial functions of the original church while boldly reprogramming it for 21st-century life. StudioAC has designed a house that does more than shelter—it nurtures relationships, adapts to growth, and offers a quiet elegance born of light and memory.


As cities evolve and the demand for sustainable housing increases, church conversion house design will continue to emerge as a meaningful typology. The Junction Semi House proves that transformation can be both poetic and practical—revealing that some of our most sacred spaces are just waiting to be reimagined as homes.




All Photographs are works of Felix Michaud
Popular Articles
Popular articles from the community
Rede Arquitetos Builds an Open-Air School in Fortaleza That Doubles as a Neighborhood Living Room
Educar II SESC-CE folds sports, dance, and community gathering into a courtyard campus wrapped in mesh and tropical color.
TGK Nirasaki Plant: A Smart Factory Blending Technology, Landscape, and Wellness
Smart factory in Japan blending IoT manufacturing, scenic trail design, natural ventilation, and landscape integration to enhance user experience and sustainability.
Magic Box Office Barcelona Innovative Sustainable Workplace Design
Innovative sustainable office design featuring triangular form, ceramic façade, flexible interiors, natural light optimization, and creative workspace for modern work culture.
Alton Cliff House: A Harmonious Retreat by f2a Architecture in Lake Country, Canada
Alton Cliff House blends corten steel, prefabrication, and sustainable design, creating a luxurious, energy-efficient retreat perched on Canadian cliffs.
Similar Reads
You might also enjoy these articles
Bamboo Housing Challenge 2026: Design Affordable, Sustainable Homes Using Bamboo
An international design competition by Bamboo U and IBUKU inviting architects and designers to reimagine affordable housing using bamboo — with the winning design built full-scale in Bali.
Computational Design & Education: Beegraphy Design Awards Introduces 7th Category (Featuring Jiyun's Innovative Approach)
Dive into Beegraphy’s 7th Design Awards category, where computational design meets education to create immersive, interactive learning tools, inspired by Jiyun’s work.
From Parametric Lighting to Urban Furniture: Join the 2nd Workshop in Beegraphy’s Computational Design Series
Dive into Cutting-Edge Design Techniques and Practical Applications with Industry Experts
Explore Architecture Competitions
Discover active competitions in this discipline
The International Standard for Design Portfolios
The Global Benchmark for Architecture Dissertation Awards
The Global Benchmark for Graduation Excellence
Challenge to reimagine the Iron Throne
Comments (0)
Please login or sign up to add comments
No comments yet. Be the first to comment!