Church Renovation in Dallas: Transforming All Saints Dallas by Cunningham ArchitectsChurch Renovation in Dallas: Transforming All Saints Dallas by Cunningham Architects

Church Renovation in Dallas: Transforming All Saints Dallas by Cunningham Architects

UNI Editorial
UNI Editorial published Story under Architecture on

Renovating historical buildings into functional modern spaces presents unique challenges and opportunities. In Dallas, the transformation of a former auto dealership into All Saints Dallas by Cunningham Architects exemplifies a thoughtful approach to church renovation in Dallas, blending historical preservation with contemporary design.

Article image
Article image
Article image

Project Overview: All Saints Dallas

Historical Background and Architectural Challenge

Originally built in the early twentieth century as an auto dealership, the building that now houses All Saints Church had fallen into significant disrepair. The architectural challenge was to revitalize this historic structure, preserving its essential elements while adapting it to meet the needs of a dynamic and growing congregation.

Article image
Article image
Article image

Design Strategy and Execution

Cunningham Architects focused on maintaining the original structural framework, enhancing it with modern materials and innovative architectural solutions. The project involved careful preservation combined with strategic interventions to ensure the building met both the spiritual and functional requirements of the church community.

Article image
Article image
Article image

Key Features of the Renovation

Creation of Entry Courts and Open Spaces

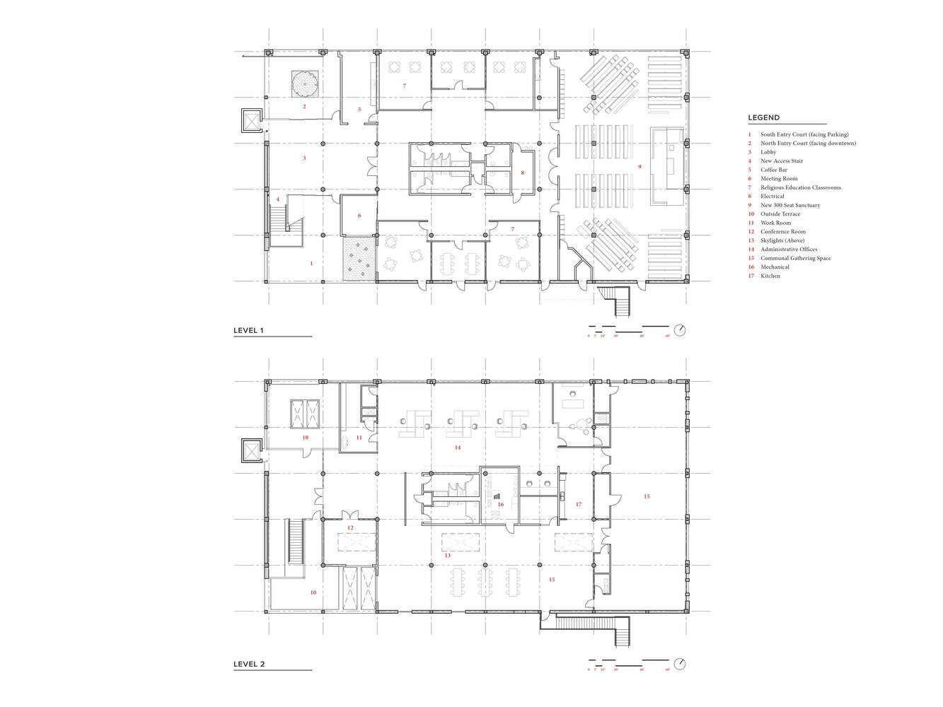
A major architectural intervention was the removal of several exterior masonry walls to establish two inviting entry courts. These courts, one facing the parking area and another toward downtown Dallas, are connected to a central interior lobby. Large sliding glass doors bridge the indoor and outdoor spaces, fostering a welcoming, open environment that can be transformed into a vast gathering area when the doors are open.

Article image
Article image
Article image

The Sanctuary: A Blend of Tradition and Modernity

The heart of the renovation is the new Sanctuary, designed to be a serene yet simple space for worship. It features expansive glass windows that introduce natural light while offering views of the surrounding cityscape. The exposed original structure within the Sanctuary adds a layer of historical authenticity and aesthetic appeal.

Article image
Article image

Sustainability and Community Impact

Enhancing Community Engagement

The renovation of All Saints Dallas not only provided a new spiritual home for its congregation but also revitalized a part of the city. By converting a disused and deteriorating structure into a vibrant community hub, the project has had a significant positive impact on the local area, encouraging community engagement and urban renewal.

Article image
Article image
Article image

Integration with Urban Environment

The church’s location near downtown Dallas and its open, welcoming design integrate it seamlessly into the urban fabric. This integration helps the church to serve not just as a place of worship but as a community landmark accessible to all city residents.

Article image
Article image

A New Benchmark for Church Renovations

The transformation of All Saints Dallas sets a new benchmark for church renovation in Dallas, showcasing how adaptive reuse of buildings can serve contemporary needs while respecting historical integrity. This project by Cunningham Architects demonstrates the potential of architectural innovation to create spaces that are both spiritually enriching and community-oriented.

Article image
Article image
Article image

All photographs are work of Robert Tsai

UNI Editorial

UNI Editorial

Where architecture meets innovation, through curated news, insights, and reviews from around the globe.

Share your ideas with the world

Share your ideas with the world

Write about your design process, research, or opinions. Your voice matters in the architecture community.

Comments (0)

No comments yet. Be the first to comment!

Similar Reads

You might also enjoy these articles

publishedStory1 day ago
The Ken Roberts Memorial Delineation Competition (Krob)
publishedStory3 weeks ago
Waterfront Redevelopment and Urban Revitalization in Mumbai: Forging a New Dawn for Darukhana
publishedStory3 weeks ago
OUT-OF-MAP: A Call for Postcards on Feminist Narratives of Public Space
publishedStory1 month ago
Documentation Work on Buddhist Wooden  Temple

Explore Architecture Competitions

Discover active competitions in this discipline

UNI Editorial
Search in