Community Center Architecture: “House” for Matsuyama Tomo-no-Kai by Ogawa Nishikori Architects
An architectural exploration of the “House” for Matsuyama Tomo-no-Kai, blending community-centered design with adaptable, light-filled spaces.
Introduction to Community Center Architecture in Japan
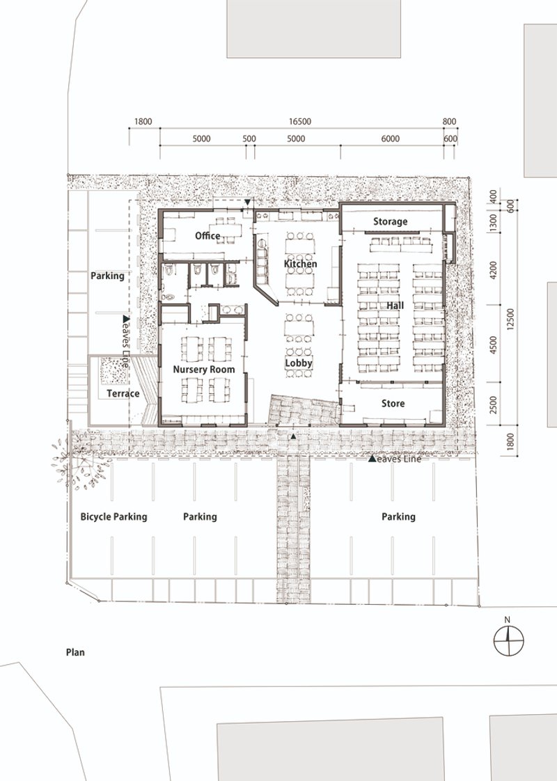
The “House” for Matsuyama Tomo-no-Kai, designed by Ogawa Nishikori Architects, exemplifies contemporary community center architecture rooted in local culture and functional adaptability. Located in the suburbs of Matsuyama, Ehime Prefecture, Japan, this 210 m² building is a reconstructed facility that serves as a social hub for residents, spanning from infants to the elderly.



A Vision for Multigenerational Community Living
At the heart of this project is the goal of sharing household knowledge and improving family life. The architecture fosters diverse activities, blending educational programs with social events in a space designed for all generations. The building’s form and layout prioritize flexibility, supporting both intimate gatherings and large-scale events while nurturing a warm, human-scaled atmosphere.



The Role of the Gabled Roof in Community Center Architecture
A prominent feature of the design is its large gabled roof, giving the building the familiar silhouette of a “big house.” This roof not only establishes the structure’s identity within the neighborhood but also unifies the various interior spaces. Under this sweeping form, rooms are organized around a central lobby that acts as the community’s core, allowing smooth transitions between spaces and ensuring accessibility for diverse activities.



Enhancing Natural Light and Ventilation
The design integrates high-side windows by strategically lifting sections of the gabled roof. These openings invite natural light deep into the interior while promoting cross-ventilation, responding thoughtfully to the region’s prevailing winds. Throughout the day, shifting patterns of light animate the interior, creating a dynamic and ever-changing atmosphere.


Indoor-Outdoor Connections with Semi-Sheltered Spaces
Deep eaves extending to the south and west form semi-sheltered outdoor spaces that blur the line between inside and outside. These transitional areas serve as both open extensions of the interior and comfortably scaled zones for social interaction. They encourage casual meetings and outdoor activities while offering shelter from the elements, enhancing the building’s adaptability across seasons.



Structural Expression and Spatial Rhythm
A dense framework of beams and knee braces forms the structural backbone of the project. This approach minimizes the need for long-span timber, making use of standard materials while maintaining a rhythmic, visually engaging pattern. The repeated structural elements break down the large roof’s scale, creating spatial variety and a playful interplay of light and shadow. This thoughtful balance of structure and space strengthens the building’s architectural identity while supporting its community-centered mission.




An Adaptable Model for Future Community Center Architecture
Ogawa Nishikori Architects’ design for the “House” for Matsuyama Tomo-no-Kai stands as a remarkable example of community center architecture that combines clear structural logic with social purpose. By creating a versatile and engaging environment, the architects have delivered a space that nurtures community ties, encourages shared learning, and enhances everyday life for residents of all ages.


All the photographs are works of Nao Takahashi
Popular Articles
Popular articles from the community
Solar Steam: A Climate-Responsive Architecture That Redefines the Monument
A climate-responsive memorial architecture that transforms heat, decay, and time into a living system reflecting humanity’s ecological impact.
Alton Cliff House: A Harmonious Retreat by f2a Architecture in Lake Country, Canada
Alton Cliff House blends corten steel, prefabrication, and sustainable design, creating a luxurious, energy-efficient retreat perched on Canadian cliffs.
The Ken Roberts Memorial Delineation Competition (Krob)
As the most senior architectural drawing competition currently in operation anywhere in the world, it draws hundreds of entries each year, awarding the very best submissions in a series of medium-based categories.
Similar Reads
You might also enjoy these articles
Bamboo Housing Challenge 2026: Design Affordable, Sustainable Homes Using Bamboo
An international design competition by Bamboo U and IBUKU inviting architects and designers to reimagine affordable housing using bamboo — with the winning design built full-scale in Bali.
Computational Design & Education: Beegraphy Design Awards Introduces 7th Category (Featuring Jiyun's Innovative Approach)
Dive into Beegraphy’s 7th Design Awards category, where computational design meets education to create immersive, interactive learning tools, inspired by Jiyun’s work.
From Parametric Lighting to Urban Furniture: Join the 2nd Workshop in Beegraphy’s Computational Design Series
Dive into Cutting-Edge Design Techniques and Practical Applications with Industry Experts
Explore Architecture Competitions
Discover active competitions in this discipline
The International Standard for Design Portfolios
The Global Benchmark for Architecture Dissertation Awards
The Global Benchmark for Graduation Excellence
Challenge to reimagine the Iron Throne
Comments (0)
Please login or sign up to add comments
No comments yet. Be the first to comment!