Contemporary House Design in Kuwait: Cleft House by TAEP&AAP
Cleft House by TAEP/AAP exemplifies contemporary house design in Kuwait, blending sculptural purity, climate adaptation, and cultural sensitivity.
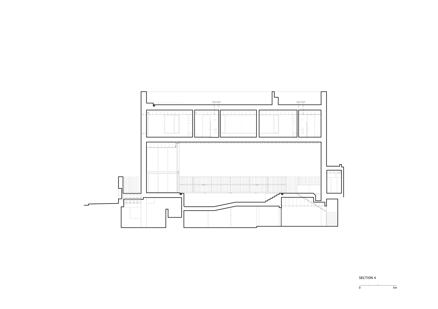
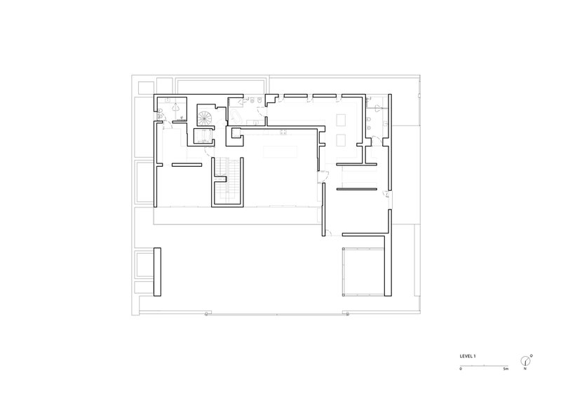
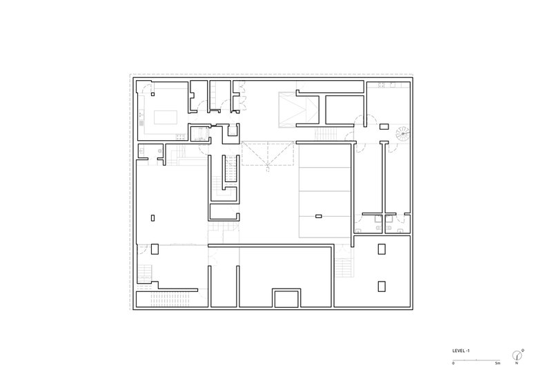
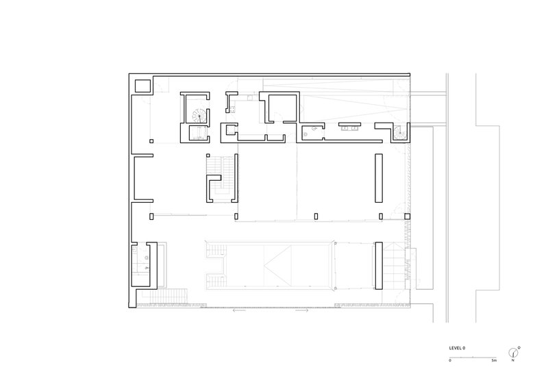
The contemporary house design in Kuwait is evolving as architects respond to dense urban conditions, climatic challenges, and cultural needs. Cleft House, designed by TAEP/AAP in Abdullah Al-Salem, is a striking example of this architectural movement. With a total built area of 1085 m², the house harmonizes sculptural purity with environmental responsiveness, creating a refined balance between privacy, openness, and climate adaptability.





Sculptural Purity and Urban Integration
The house’s exterior is defined by clean white volumes framed by a dark steel perimeter fence. This minimalist composition allows the building to stand out while engaging seamlessly with its urban surroundings. The north-facing façade adopts a simple and geometric expression, anchoring the house in its dense neighborhood, while the west-facing façade—overlooking a park—features selective openings that regulate light, maintain privacy, and provide climatic comfort. This careful balance between exposure and seclusion highlights the adaptive nature of contemporary house design in Kuwait.




Light, Voids, and Environmental Response
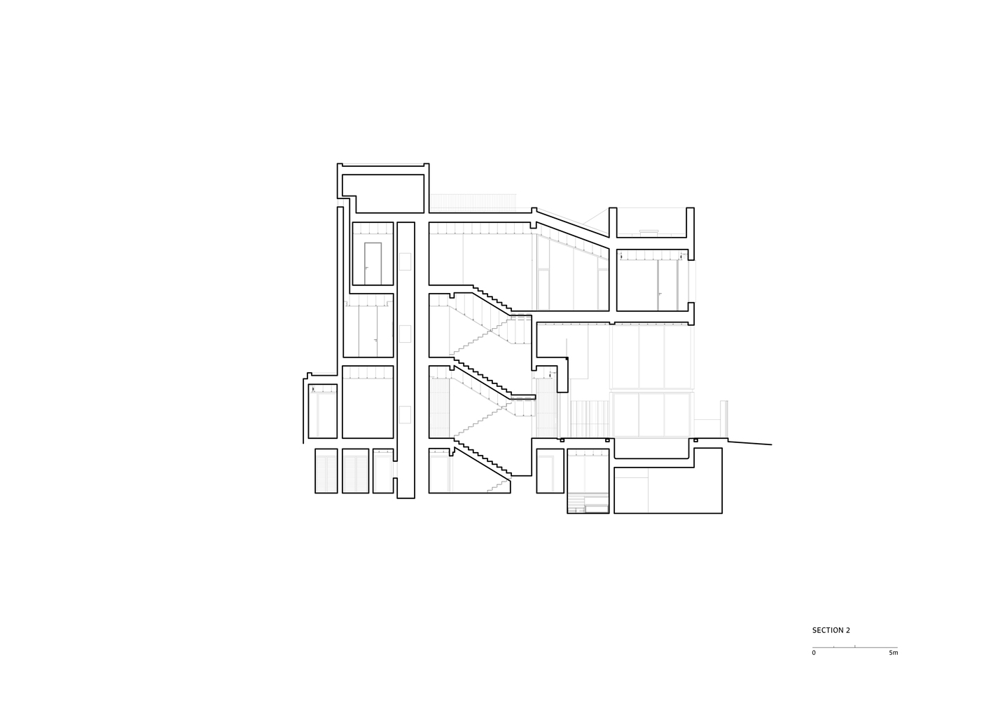
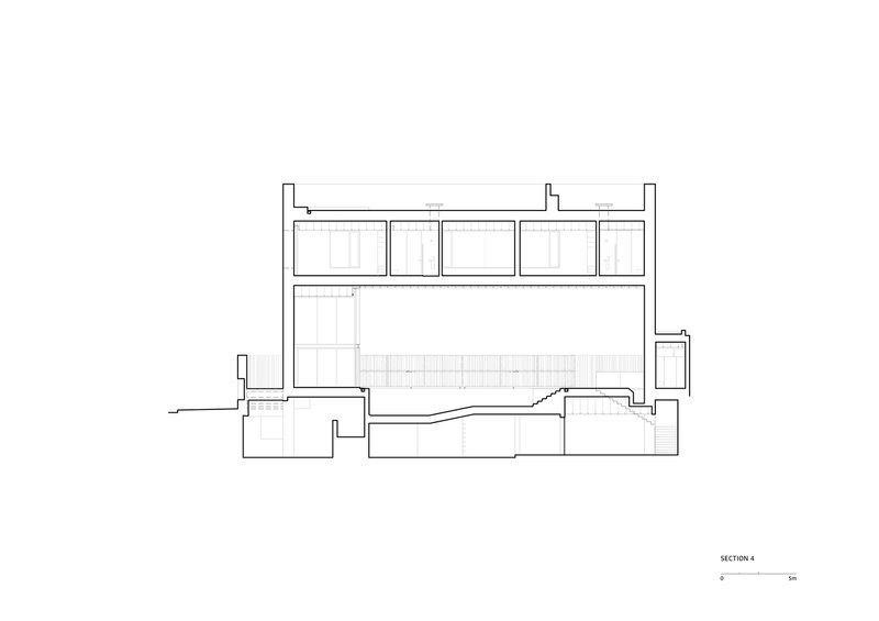
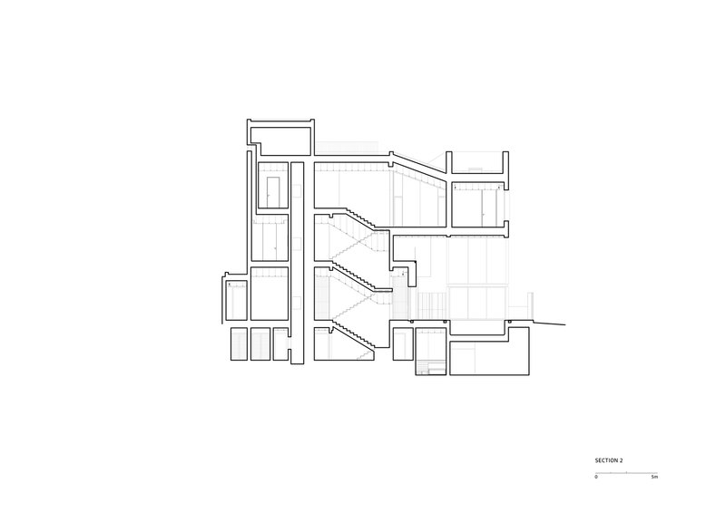
At the core of Cleft House lies its mastery of voids and openings. These voids act as dynamic spaces, mediating between interior and exterior conditions. More than aesthetic gestures, they regulate light, promote ventilation, and create a rhythm of privacy and openness. A narrow central void links the home vertically, amplifying natural light and airflow across multiple levels. This integration ensures the house responds naturally to Kuwait’s climate while maintaining intimacy.




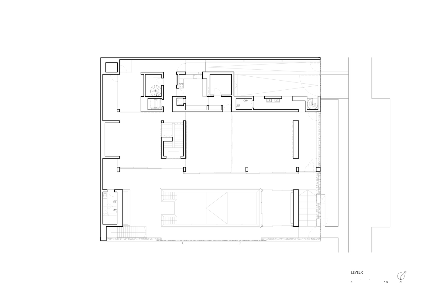
Social Spaces and Outdoor Integration
The ground floor functions as the social heart of the residence. Large glass openings connect a generous living space to the outdoor portico and pool area. The portico acts as both a shading device and transitional element, creating a fluid indoor-outdoor connection while controlling solar exposure. Throughout the day, shifting light and shadow animate the interiors, offering residents a constantly evolving sensory experience.



Climate-Sensitive Outdoor Living
Contemporary house design in Kuwait often incorporates shaded terraces and adaptive outdoor spaces. Cleft House embraces this with a large west-facing terrace designed for winter months, offering shaded comfort and extended living opportunities. A staircase leads to a rooftop terrace above the portico, providing sweeping panoramic views of the city. This layered approach to outdoor living ensures residents can enjoy different seasons while maintaining protection from harsh conditions.




Cultural and Functional Spaces
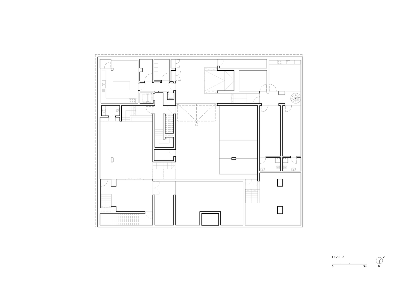
The basement of Cleft House accommodates culturally significant and practical functions. The diwaniya, designed with its own independent entrance, preserves its autonomy while reinforcing traditional Kuwaiti hospitality. Adjacent to it, service areas, a garage, and technical facilities are seamlessly integrated to maintain efficiency without compromising spatial elegance.



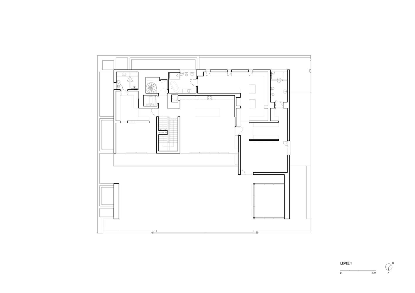
Private Realms and Family Life
The upper floors are reserved for private family spaces, including bedrooms and terraces. Openings are strategically placed to frame views while maintaining seclusion. Recessed volumes allow natural light to penetrate deeper into the interiors, particularly shaded spaces such as the portico and pool. This careful modulation of openness and privacy enhances the residents’ daily lives, offering moments of calm and introspection.





Light, Shadow, and Architectural Experience
The architecture of Cleft House is deeply rooted in the interplay of light and shadow. Throughout the day, sunlight shifts across the portico, terraces, and interior walls, transforming the ambiance. This temporal quality underscores the adaptability of contemporary house design in Kuwait, where buildings are expected to evolve with natural cycles while accommodating modern lifestyles.

Cleft House by TAEP/AAP stands as a masterful example of contemporary house design in Kuwait, merging cultural traditions, climatic intelligence, and sculptural refinement. Through its voids, terraces, and transitions, the residence becomes more than a home—it embodies a responsive architecture that adapts to its environment and enriches everyday living.

Popular Articles
Popular articles from the community
Gads Hill Early Learning Center by JGMA: Adaptive Reuse Shaping Community-Focused Educational Architecture
Adaptive reuse transforms fragmented structure into vibrant early learning center with playful façade, natural light, and community-focused sustainable design.
The Ken Roberts Memorial Delineation Competition (Krob)
As the most senior architectural drawing competition currently in operation anywhere in the world, it draws hundreds of entries each year, awarding the very best submissions in a series of medium-based categories.
Atelier Macri Concept Store Interior Design by CASE-REAL
Atelier Macri store features a "ko" counter, walnut wood details, cork displays, blending retail, gallery, and seamless customer experiences.
Alton Cliff House: A Harmonious Retreat by f2a Architecture in Lake Country, Canada
Alton Cliff House blends corten steel, prefabrication, and sustainable design, creating a luxurious, energy-efficient retreat perched on Canadian cliffs.
Similar Reads
You might also enjoy these articles
Bamboo Housing Challenge 2026: Design Affordable, Sustainable Homes Using Bamboo
An international design competition by Bamboo U and IBUKU inviting architects and designers to reimagine affordable housing using bamboo — with the winning design built full-scale in Bali.
Computational Design & Education: Beegraphy Design Awards Introduces 7th Category (Featuring Jiyun's Innovative Approach)
Dive into Beegraphy’s 7th Design Awards category, where computational design meets education to create immersive, interactive learning tools, inspired by Jiyun’s work.
From Parametric Lighting to Urban Furniture: Join the 2nd Workshop in Beegraphy’s Computational Design Series
Dive into Cutting-Edge Design Techniques and Practical Applications with Industry Experts
Explore Architecture Competitions
Discover active competitions in this discipline
The International Standard for Design Portfolios
The Global Benchmark for Architecture Dissertation Awards
The Global Benchmark for Graduation Excellence
Challenge to reimagine the Iron Throne
Comments (0)
Please login or sign up to add comments
No comments yet. Be the first to comment!