Discovering Modern Concrete Architecture: MC House by Cristián Romero Valente
Explore the MC House by Cristián Romero Valente, a stunning example of modern concrete architecture blending privacy with open living spaces.
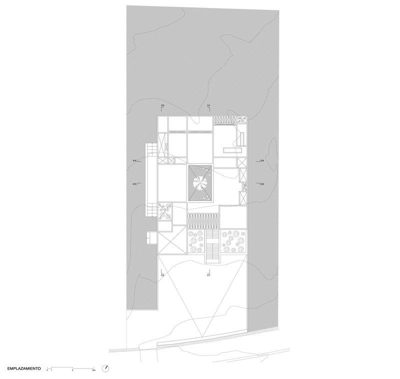
Concrete has become a staple in modern architectural design, known for its versatility, durability, and aesthetic flexibility. The MC House, situated in the scenic Chicureo Estate of Santiago, Chile, exemplifies the innovative use of concrete in contemporary homes. Designed by Cristián Romero Valente, this residence integrates modern architectural principles with the natural landscape.




Architectural Design of MC House
Strategic Use of Concrete
The MC House showcases the sophisticated use of reinforced concrete to create a structure that is both sturdy and visually striking. The concrete walls not only ensure the home's stability and security but also contribute to its minimalist aesthetic. This solid facade facing the street contrasts with the transparent back facade, which opens to the gardens, illustrating concrete’s versatility in modern architecture.




Privacy and Openness
A unique feature of MC House is its dual approach to privacy and openness. While the street-facing facade presents a solid, private exterior, the rear of the house opens up with large glass windows and terraces, fostering a connection with the outdoor environment. This design approach reflects a core principle of modern concrete architecture: balancing secure, private spaces with open, airy living areas.




Core Features and Layout
Central Courtyard and Indoor Pool
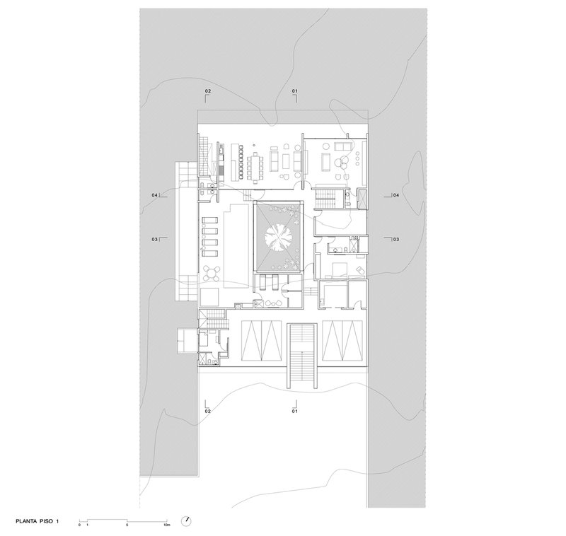
At the heart of MC House is a double-height central courtyard, which acts as a light well and a spatial organizer for the home. Surrounding this courtyard are key living areas, including an indoor pool and spa, which enhance the home’s luxury and functionality. The courtyard not only unifies the various spaces but also introduces natural light and greenery into the core of the home.



Spatial Dynamics
The first floor is designed with transparency and fluidity in mind, allowing for unobstructed views across different areas and into the central courtyard. This openness is facilitated by the strategic use of concrete and glass, which defines the spaces while maintaining a sense of continuity.


Sustainable Features and Interior Design
Natural Lighting and Ventilation
MC House incorporates several eco-friendly features, such as skylights and strategically placed eaves, to maximize natural lighting and reduce the need for artificial illumination. These elements, combined with the home’s layout, promote natural ventilation, helping to maintain a comfortable interior climate throughout the year.


Material Selection and Interior Aesthetics
The interior of MC House blends the cool, industrial feel of concrete with the warmth of wood cladding and furniture. This material combination enriches the home’s texture and color palette, creating a cozy yet modern living environment. The careful selection of materials reflects the architect’s commitment to sustainable and aesthetic design principles.





The Future of Modern Concrete Architecture
MC House by Cristián Romero Valente stands as a testament to the possibilities of modern concrete architecture. It demonstrates how concrete can be used to achieve both aesthetic beauty and functional design in residential architecture. As this architectural trend continues to evolve, projects like MC House will inspire future innovations in building and design, highlighting the enduring appeal of concrete in modern architecture.




All photographs are work of Juan Pablo Calderón
Popular Articles
Popular articles from the community
20 Most Popular Commercial Architecture Projects of 2025
From sustainable market concepts to heritage factories, the commercial buildings and proposals that drew the most attention on uni.xyz this year.
Magic Box Office Barcelona Innovative Sustainable Workplace Design
Innovative sustainable office design featuring triangular form, ceramic façade, flexible interiors, natural light optimization, and creative workspace for modern work culture.
Split House: A Compact Urban Home Blending Privacy, Light, and Flexible Living in Japan
Compact Japanese home featuring DOMA space, flexible café potential, passive lighting, privacy zoning, and sustainable urban living design.
Marvila Apartment Renovation in Lisbon: A Bright Minimalist Attic Transformation by KEMA Studio
Bright attic transformed into minimalist Lisbon apartment with skylights, sustainable materials, open plan layout, and industrial-inspired interior design elements.
Similar Reads
You might also enjoy these articles
Filtering Space: A Gradual Spatial Experience
From urban intensity to spatial calm.
The Ken Roberts Memorial Delineation Competition (Krob)
As the most senior architectural drawing competition currently in operation anywhere in the world, it draws hundreds of entries each year, awarding the very best submissions in a series of medium-based categories.
Waterfront Redevelopment and Urban Revitalization in Mumbai: Forging a New Dawn for Darukhana
A transformative waterfront redevelopment project reimagining Darukhana’s shipbreaking heritage into an inclusive urban future.
OUT-OF-MAP: A Call for Postcards on Feminist Narratives of Public Space
Rhizoma Design and Research Lab invites artists, designers, architects, researchers, and students to reflect on how feminist perspectives can reshape public space. Selected works will be exhibited in Barcelona, October 2026. Submissions open until 15 April 2026.
Explore Architecture Competitions
Discover active competitions in this discipline
The International Standard for Design Portfolios
The Global Benchmark for Architecture Dissertation Awards
The Global Benchmark for Graduation Excellence
Challenge to reimagine the Iron Throne
Comments (0)
Please login or sign up to add comments
No comments yet. Be the first to comment!