El Tome House: A Minimalist Second Home Immersed in Chile’s Natural Landscape
El Tome House is a minimalist Chilean retreat with sliding glass openings, mountain views, and black pine cladding that blends seamlessly with nature.
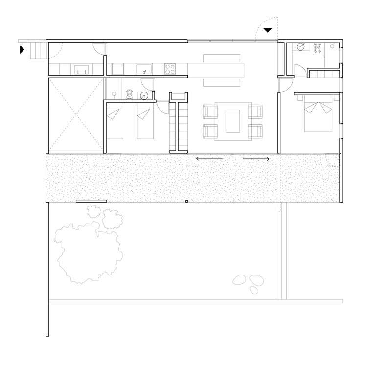
El Tome House by COLECTIVO is a serene second home nestled in the secluded hills of Papudo, within the municipality of La Ligua, Chile. Surrounded by gentle slopes, native shrub vegetation, and sweeping views of the northern mountain range, the project uses the landscape as its primary design generator. The architectural team envisioned a compact yet expressive volume that would open generously to the surrounding topography, allowing the natural environment to shape the living experience.

A Home Designed Around the Landscape
From the beginning, the brief emphasized creating a retreat that celebrates its remote setting. The architects responded with a horizontal volume that ensures the interior spaces remain visually connected to the terrain. The public areas—living room and dining space—are positioned at the heart of the house, offering unobstructed views across both fronts of the building. This dual orientation allows sunlight, fresh air, and natural elements to flow into the home throughout the day.


Indoor–Outdoor Integration Through Sliding Glazed Openings
To enhance openness toward the mountains and maximize natural light, COLECTIVO incorporated full-height sliding windows along the northern façade. These windows can be completely opened, merging the living area with the exterior terrace and blurring the boundary between indoor comfort and outdoor living.
Along this same façade, a continuous shading structure was designed. This element serves multiple purposes:
- It encourages climbing vegetation to grow naturally across the structure.
- It controls intense summer sunlight by creating a living green filter.
- It allows warm sunlight to pass through during winter months.
This strategy reinforces the home’s seasonal adaptability while visually weaving the architecture into the surrounding landscape.


Light-Filled Interiors and Optimized Orientation
All bedrooms are oriented north to capture mountain views and abundant morning light. The kitchen, however, turns inward, avoiding southern exposure. Instead, it is illuminated by a large skylight that floods the space with natural light while also marking the home’s main entrance. This vertical opening becomes an architectural gesture that enhances both functionality and spatial experience.


Materiality that Blends with Nature
The architects opted for black-painted pine paneling throughout the exterior walls, skylight, and privacy screens. This material palette allows the home to sit quietly in the landscape, reducing its visual impact and complementing the surrounding vegetation. The dark tone creates a minimalist, contemporary character while ensuring the building harmonizes with its rural context.


A Thoughtful Retreat in the Chilean Hills
El Tome House stands as a testament to COLECTIVO’s ability to craft spaces that respond to climate, orientation, and terrain. Sited in the peaceful hills of Papudo, the home balances openness and privacy, minimalism and warmth, durability and sensitivity to nature. With its strategic views, natural light, and immersive landscape connection, the house becomes an ideal second-home retreat—simple, functional, and deeply rooted in its environment.


All the photographs are works of Carlos Molina
Popular Articles
Popular articles from the community
Gads Hill Early Learning Center by JGMA: Adaptive Reuse Shaping Community-Focused Educational Architecture
Adaptive reuse transforms fragmented structure into vibrant early learning center with playful façade, natural light, and community-focused sustainable design.
The Ken Roberts Memorial Delineation Competition (Krob)
As the most senior architectural drawing competition currently in operation anywhere in the world, it draws hundreds of entries each year, awarding the very best submissions in a series of medium-based categories.
Alton Cliff House: A Harmonious Retreat by f2a Architecture in Lake Country, Canada
Alton Cliff House blends corten steel, prefabrication, and sustainable design, creating a luxurious, energy-efficient retreat perched on Canadian cliffs.
Inverted Architecture Installation by Studio Link-Arc: Exploring the Intersection of Architecture and Living Organisms
Inverted Architecture Installation by Studio Link-Arc blends mycelium, sustainability, inverted design, ecological cycles, and urban adaptive architecture in Shenzhen.
Similar Reads
You might also enjoy these articles
The Ken Roberts Memorial Delineation Competition (Krob)
As the most senior architectural drawing competition currently in operation anywhere in the world, it draws hundreds of entries each year, awarding the very best submissions in a series of medium-based categories.
Waterfront Redevelopment and Urban Revitalization in Mumbai: Forging a New Dawn for Darukhana
A transformative waterfront redevelopment project reimagining Darukhana’s shipbreaking heritage into an inclusive urban future.
OUT-OF-MAP: A Call for Postcards on Feminist Narratives of Public Space
Rhizoma Design and Research Lab invites artists, designers, architects, researchers, and students to reflect on how feminist perspectives can reshape public space. Selected works will be exhibited in Barcelona, October 2026. Submissions open until 15 April 2026.
Documentation Work on Buddhist Wooden Temple
Architectural syncretism and cultural hybridity: A comparative study of the Buddhist temples in Chattogram Hill tracks
Explore Architecture Competitions
Discover active competitions in this discipline
The International Standard for Design Portfolios
The Global Benchmark for Architecture Dissertation Awards
The Global Benchmark for Graduation Excellence
Challenge to reimagine the Iron Throne
Comments (0)
Please login or sign up to add comments
No comments yet. Be the first to comment!