Embracing Heritage through Modern Korean Restaurant Design: The Case of Nok, 錄 Restaurant by Orosy Studio
This article delves into Nok, 錄 Restaurant's innovative blend of modern design and Korean culinary tradition, emphasizing communal dining and cultural heritage.
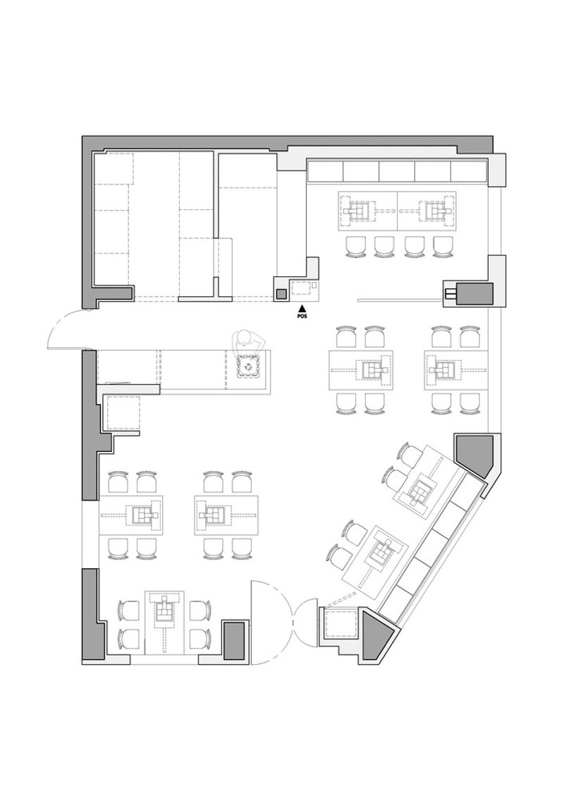
In the bustling streets of Jung-gu, South Korea, stands a testament to the harmonious blend of tradition and modernity in restaurant architecture - the nok, 錄 Restaurant. Designed by the innovative orosy studio and captured through the lens of photographer Yongjoon Choi, this 72 m² culinary haven encapsulates the essence of modern Korean restaurant design.


Concept and Inspiration
The foundation of Nok's identity is deeply rooted in the cherished memories of communal eating and the meat grilling culture that holds a significant place in Korean societal life. This restaurant aims to recreate those unforgettable dining experiences, offering a space where friends, family, and colleagues can gather to enjoy the simple pleasure of grilled meats and engaging conversations.




A Modern Take on Retro Design
Orosy studio's approach to the design of Nok, 錄 Restaurant is a masterful reinterpretation of retro elements through the use of contemporary materials. The focal point of this aesthetic marriage is the modernized briquette brazier table, a nod to the traditional Korean grilling experience, redesigned to fit the modern context.


Interior Design and Ambiance
The interior of Nok, 錄 Restaurant is a showcase of custom-made furniture and decor, all designed to reinforce the modern Korean restaurant design theme. From tables and chairs to shelving and props, every piece contributes to the establishment's unique brand identity, combining high-density modernity with touches of nostalgia.







Creating Unforgettable Moments
At the heart of Nok, 錄 Restaurant is the desire to host memorable moments. The space is designed not just for dining but for storytelling, laughter, and the creation of new memories. The restaurant's ambiance, enhanced by its thoughtful design, sets the stage for many such unforgettable experiences.




The Future of Restaurant Design
Nok, 錄 Restaurant by orosy studio is more than just a dining destination; it's a pioneering example of how modern Korean restaurant design can bridge the gap between past and present. Through its innovative reinterpretation of traditional elements, commitment to custom-designed spaces, and focus on creating a communal dining experience, Nok stands as a beacon of modernity in the architectural landscape of South Korea.


All photographs are work of Yongjoon Choi
Popular Articles
Popular articles from the community
Free Architecture Competitions You Can Enter Right Now
No entry fees, real prizes. Here are the best free architecture competitions open for submissions in 2026.
TGK Nirasaki Plant: A Smart Factory Blending Technology, Landscape, and Wellness
Smart factory in Japan blending IoT manufacturing, scenic trail design, natural ventilation, and landscape integration to enhance user experience and sustainability.
Split House: A Compact Urban Home Blending Privacy, Light, and Flexible Living in Japan
Compact Japanese home featuring DOMA space, flexible café potential, passive lighting, privacy zoning, and sustainable urban living design.
Similar Reads
You might also enjoy these articles
Bamboo Housing Challenge 2026: Design Affordable, Sustainable Homes Using Bamboo
An international design competition by Bamboo U and IBUKU inviting architects and designers to reimagine affordable housing using bamboo — with the winning design built full-scale in Bali.
Computational Design & Education: Beegraphy Design Awards Introduces 7th Category (Featuring Jiyun's Innovative Approach)
Dive into Beegraphy’s 7th Design Awards category, where computational design meets education to create immersive, interactive learning tools, inspired by Jiyun’s work.
From Parametric Lighting to Urban Furniture: Join the 2nd Workshop in Beegraphy’s Computational Design Series
Dive into Cutting-Edge Design Techniques and Practical Applications with Industry Experts
Explore Architecture Competitions
Discover active competitions in this discipline
The International Standard for Design Portfolios
The Global Benchmark for Architecture Dissertation Awards
The Global Benchmark for Graduation Excellence
Challenge to reimagine the Iron Throne
Comments (0)
Please login or sign up to add comments
No comments yet. Be the first to comment!