Exploring the Architectural Harmony of % Arabica Ho Chi Minh City Roastery
The article is about % Arabica Ho Chi Minh City Roastery by Nguyen Khai Architects & Associates, blending heritage with modern design for a unique coffee experience.
In the bustling heart of District 1, Ho Chi Minh City, % Arabica's Roastery stands as a testament to architectural fusion. Crafted by Nguyen Khai Architects & Associates, this space elegantly marries traditional elements with modern aesthetics, creating a captivating experience for coffee enthusiasts and architecture aficionados alike.






Uniting Tradition and Innovation
The Roastery's design philosophy revolves around preserving the area's rich heritage while infusing it with contemporary flair. The exterior, echoing the charm of historic buildings, seamlessly transitions into a modern interior characterized by glass expanses and industrial accents.







A Journey Through Space and Light
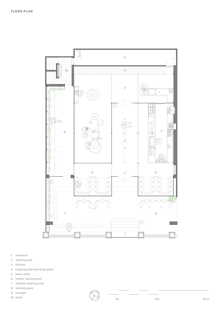
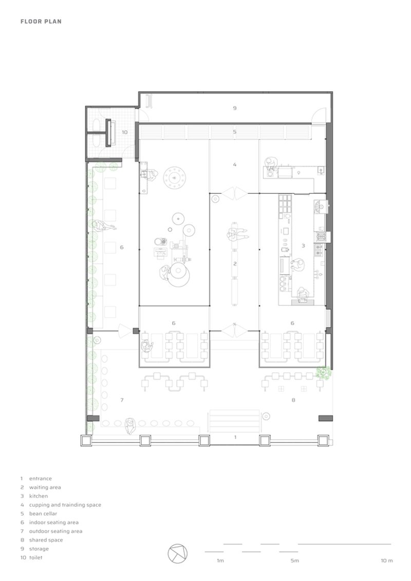
As patrons step inside, they are greeted by an inviting pathway illuminated by natural light, casting captivating shadow plays through the rattan ceiling. The layout, strategically divided into roasting areas, kitchen space, and customer seating zones, offers a harmonious flow conducive to both work and leisure.






Embracing Versatility and Elegance
The seating areas, divided between indoor and outdoor spaces, reflect a meticulous attention to detail. Glass partitions enhance the sense of openness, allowing patrons to choose between scenic outdoor views and the mesmerizing coffee-making process indoors.





Industrial Chic Meets Warm Hospitality
The Roastery's ambiance resonates with an industrial chic vibe, accentuated by white hues, stainless steel elements, and a revival of exposed aggregate flooring. Wood accents and lush greenery add warmth, creating a welcoming environment that invites guests to linger and savor every sip.





% Arabica Ho Chi Minh City Roastery stands not just as a coffee haven but as a testament to architectural ingenuity. By seamlessly blending tradition with innovation, it offers a multi-sensory experience that transcends coffee culture, making it a must-visit destination for enthusiasts of design and gastronomy alike.



All photographs are work of Quang Dam
Popular Articles
Popular articles from the community
Rede Arquitetos Builds an Open-Air School in Fortaleza That Doubles as a Neighborhood Living Room
Educar II SESC-CE folds sports, dance, and community gathering into a courtyard campus wrapped in mesh and tropical color.
Filtering Space: A Gradual Spatial Experience
From urban intensity to spatial calm.
Alton Cliff House: A Harmonious Retreat by f2a Architecture in Lake Country, Canada
Alton Cliff House blends corten steel, prefabrication, and sustainable design, creating a luxurious, energy-efficient retreat perched on Canadian cliffs.
Free Architecture Competitions You Can Enter Right Now
No entry fees, real prizes. Here are the best free architecture competitions open for submissions in 2026.
Similar Reads
You might also enjoy these articles
20 Most Popular Commercial Architecture Projects of 2025
From sustainable market concepts to heritage factories, the commercial buildings and proposals that drew the most attention on uni.xyz this year.
Free Architecture Competitions You Can Enter Right Now
No entry fees, real prizes. Here are the best free architecture competitions open for submissions in 2026.
Top 15 Architecture Competitions to Enter in 2026
From student-friendly idea competitions to prestigious international awards, here are the best architecture competitions open for entries in 2026. Updated regularly.
DIY & Engineering in Computational Design : Enter the BeeGraphy Design Awards
Showcase Your Creativity with Computational Design and Open Source Projects
Explore Architecture Competitions
Discover active competitions in this discipline
The International Standard for Design Portfolios
The Global Benchmark for Architecture Dissertation Awards
The Global Benchmark for Graduation Excellence
Challenge to reimagine the Iron Throne
Comments (0)
Please login or sign up to add comments
No comments yet. Be the first to comment!