A Quiet Vault in Michoacán's Avocado Country
Taller Michoacán builds a narrow house in Peribán de Ramos that uses glass block, barrel vaults, and courtyards to filter light and street noise.
Peribán de Ramos is a small town in western Michoacán, known mostly for avocado orchards and the kind of tight, lot-to-lot urban grain that characterizes many Mexican municipal centers. Building a house on a narrow infill plot here means negotiating party walls, limited frontage, and the desire for privacy against a busy street. House A. Martínez by Taller Michoacán takes all of these constraints and turns them into a spatial sequence that feels generous, layered, and genuinely atmospheric.
What makes this project worth paying attention to is how it uses a small catalog of materials: glass block, timber slats, concrete, and local stone, assembled into a vocabulary of arches, courtyards, and filtered screens. The house does not try to be a manifesto. It proposes, as the architects describe, a simple way of living. But simplicity here is not reduction. It is a careful calibration of light, enclosure, and ventilation across 332 square meters stretched along a linear plan.
The Street Face


The street elevation is measured but not shy. A cantilevered upper volume pushes forward over the sidewalk, creating shade at ground level while the second and third floors step back behind planted balconies. Red flowers and trailing greenery soften the concrete, and the facade reads as layered rather than flat. Glass block panels replace conventional windows at certain points, giving the front a translucent glow without sacrificing privacy.
Overhead utility wires, visible in the street photographs, remind you that this is not a luxury enclave. It is a working town. The house sits comfortably among its neighbors, matching the scale and setback of the existing fabric while asserting its own tectonic identity through the arched openings and the careful rhythm of solid and void.
Glass Block as Luminous Membrane



Glass block does a lot of heavy lifting in this house. Along the corridor, an entire wall of it filters daylight into a long passage that connects rooms in sequence. The effect is diffuse and warm: light enters without heat, and the translucent surface acts as a privacy screen against the courtyard without requiring curtains or blinds. In the bathroom, a smaller panel of glass block sits above the vanity, casting a soft even glow that makes the timber cabinetry feel alive.
Glass block has fallen in and out of favor over the decades, sometimes dismissed as dated or industrial. Here, Taller Michoacán uses it with enough restraint and compositional intention that it reads as essential rather than nostalgic. It is a structural light filter, not decoration.
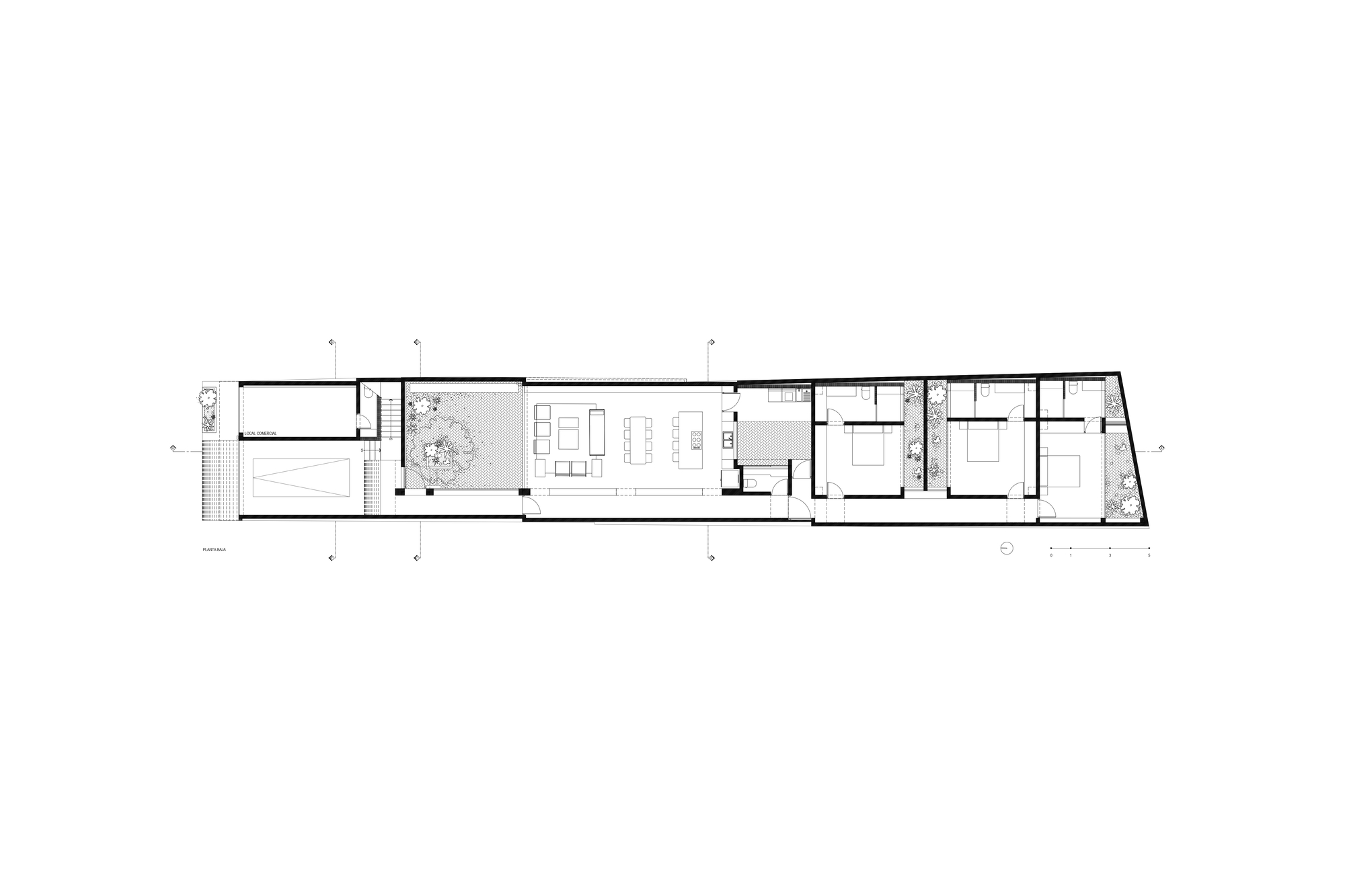
The Courtyards



Two courtyard conditions operate within the plan. The first, closest to the street, is paved in grey stone and anchored by a slender tree and a bed of yellow marigolds. At dusk, the glass block wall beside it becomes a lantern, and the space takes on a meditative quality. The second courtyard is narrower and more vertical: tiered concrete planters rise along the party wall, and a translucent roof panel overhead lets light fall softly into the gap.
These courtyards are not ornamental. On a narrow lot with limited cross-ventilation, they function as the lungs of the house, pulling air and light into the center of the plan. They also break the 332 square meters into manageable episodes, so the house never feels like a corridor despite its linear footprint.
Arched Openings and the Barrel Vault



The arch is the recurring motif. It appears at the scale of a window, where a gridded screen tops the courtyard-facing openings, and at the scale of the roof, where a barrel vault spans the kitchen and living area. In the kitchen, a timber slat arch frames the ceiling, creating a warm overhead canopy above the stone-topped island. At dusk, the arched facade opening with sliding glass doors becomes a glowing frame, the courtyard visible through it like a stage.
The vault is not just formal gesture. The exploded axonometric drawings reveal a curved structural frame with membrane assembly, suggesting that the vault works to span the narrow plan without interior columns, freeing the living spaces beneath. It is a structural decision that happens to produce beautiful spatial compression and release.
Interior Craft



Inside, the palette stays tight. Wooden cabinetry with glass-paneled upper doors runs through the kitchen and storage areas, and stone flooring unifies ground-level spaces. The arched gridded window in the main interior space casts diagonal shadows across the cabinetry and floor, a moment that changes with the sun and makes the room feel alive rather than static.
Corner landings with low concrete steps, potted ferns, and small sunlit passages create transitional moments between rooms. These are not leftover spaces. They are designed pauses, and they give the house a rhythm that would be absent if every room simply opened onto the next.
Threshold and Passage


Some of the most compelling images capture moments of passage: a figure moving through the courtyard doors, or the view from the entry hall through an arched opening toward the illuminated glass block wall. These thresholds compress space before releasing it, a technique rooted in traditional Mexican domestic architecture but executed here with a contemporary material sensibility.
The wooden folding chair visible in one courtyard shot is a telling detail. It suggests that these in-between spaces are actually inhabited, not just admired. The courtyard is a room you sit in, not a void you look at through glass.
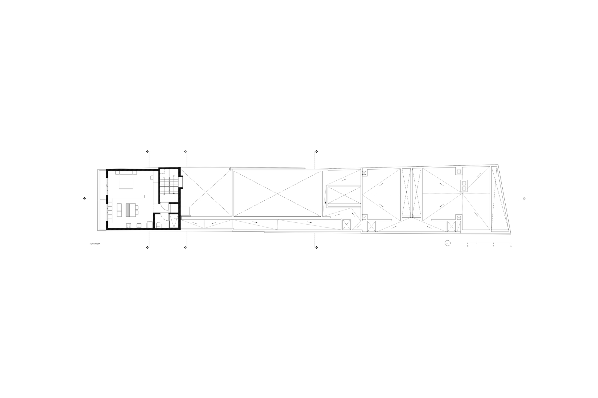
Plans and Drawings











The drawings reveal the full logic of the house. Floor plans confirm the narrow, sequential layout: rooms arranged one behind another with courtyards punctuating the chain. Sections show the interplay of ceiling heights, from the compressed entry to the double-height vaulted kitchen, to the clerestory-lit upper bedrooms. The barrel vault reads clearly in section, its curved trusses and lattice framework supporting a lightweight membrane roof.
The exploded axonometric is particularly instructive. It separates the curved structural framing from the roof membrane, making visible the construction logic that produces the vault. A construction detail section through the arched structure, complete with labeled material specifications, shows the kind of technical resolution that makes the project buildable in a regional construction economy. The front elevation drawing, with its vertical slats and planted courtyard, confirms that the street face was designed as a composed drawing, not an afterthought.
Why This Project Matters
House A. Martínez matters because it demonstrates that rigorous spatial design is not the exclusive province of large urban commissions or high-budget vacation homes. In a small Michoacán town, on a constrained lot, with accessible materials, Taller Michoacán has produced a house that manages light, air, and sequence with real skill. The barrel vault, the glass block walls, and the courtyard breaks are not imported gestures. They respond to the climate, the urban density, and the habits of domestic life in this specific place.
For architects working in similar conditions across Latin America, the project offers a quiet but forceful argument: that the constraints of a narrow lot and a modest program are not limitations to overcome but the very conditions that can generate architecture worth discussing. The house does not need a dramatic site or a limitless budget to be compelling. It needs a clear idea, well built. That is what Taller Michoacán has delivered.
House A. Martínez by Taller Michoacán (lead architects: Johana Domínguez Valencia and Jaime Guillén Castañeda). Peribán de Ramos, Michoacán, Mexico. 332 m². Completed 2025. Photography by Cesár Belio.
About the Studio
Share Your Own Work on uni.xyz
If projects like this are the kind of work you want to make, uni.xyz is a place to publish your own, find collaborators, and enter design competitions.
Popular Articles
Popular articles from the community
Magic Box Office Barcelona Innovative Sustainable Workplace Design
Innovative sustainable office design featuring triangular form, ceramic façade, flexible interiors, natural light optimization, and creative workspace for modern work culture.
Filtering Space: A Gradual Spatial Experience
From urban intensity to spatial calm.
Alton Cliff House: A Harmonious Retreat by f2a Architecture in Lake Country, Canada
Alton Cliff House blends corten steel, prefabrication, and sustainable design, creating a luxurious, energy-efficient retreat perched on Canadian cliffs.
Similar Reads
You might also enjoy these articles
STEM School Mechelen by LAVA Architecten: A Future-Ready Educational Architecture in Belgium
Flexible, sustainable STEM school in Mechelen featuring modular classrooms, acoustic innovation, and energy-efficient design supporting future-focused collaborative learning environments.
Marvila Apartment Renovation in Lisbon: A Bright Minimalist Attic Transformation by KEMA Studio
Bright attic transformed into minimalist Lisbon apartment with skylights, sustainable materials, open plan layout, and industrial-inspired interior design elements.
20 Most Popular Commercial Architecture Projects of 2025
From sustainable market concepts to heritage factories, the commercial buildings and proposals that drew the most attention on uni.xyz this year.
Magic Box Office Barcelona Innovative Sustainable Workplace Design
Innovative sustainable office design featuring triangular form, ceramic façade, flexible interiors, natural light optimization, and creative workspace for modern work culture.
Comments (0)
Please login or sign up to add comments
No comments yet. Be the first to comment!