House Z by Benoit Rotteleur Architecte: A Sustainable Renovation Transforming 1980s Architecture in Yerres, France
House Z in Yerres, France, renovated by Benoit Rotteleur Architecte, blends sustainable design, timber extension, energy efficiency, and modern open-plan living.
Located in the scenic town of Yerres, France, House Z is a striking example of sustainable residential renovation and architectural ingenuity. Originally built in the 1980s, the semi-subterranean structure featured a garage and boiler room on the ground floor, living spaces above the garden, and attic bedrooms. A 2000s extension to expand the living room quickly deteriorated, prompting years of legal disputes for the homeowners. Seeking a fresh start, the clients approached Benoit Rotteleur Architecte, who proposed a visionary approach: preserve the original structure while selectively demolishing the damaged sections, creating a modern, energy-efficient home.


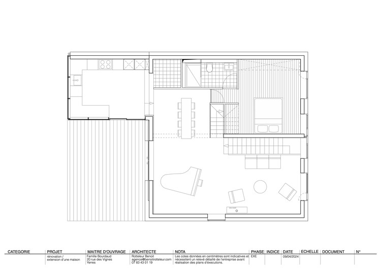
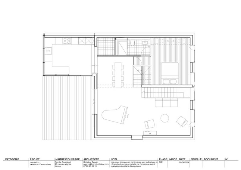
The renovation transformed House Z into a luminous, three-level residence spanning 200 m², harmoniously blending old and new architectural elements. The building envelope was thickened to integrate high-performance external insulation, and the roof was entirely rebuilt to accommodate an additional bright, spacious floor. The deteriorated garden-side extension was replaced with a new timber-framed structure, enhancing both aesthetics and structural performance.



Internally, the house was redesigned for fluid circulation and seamless connectivity across multiple levels. The former garage became the main entrance, with a lowered floor providing generous ceiling height. A striking concrete staircase leads visitors into the heart of the home, connecting the main living areas with the bedrooms located under the newly elevated roof. Full-height windows in the attic rooms eliminate the confined, attic-like feel while offering panoramic views of the surrounding greenery.



The main living space was conceived around multiple perspectives, balancing views of the valley and garden to maximize natural light. The open-plan design flows from the living room to the library, piano corner, dining area, and concludes in a bow-window kitchen, fully oriented towards the garden. Variations in floor levels create subtle spatial hierarchies, while non-essential functions were externalized to optimize insulated volume, relocating the garage to the street side.



Sustainability was central to the renovation. House Z features a double outer skin for perfect thermal insulation without bridges, insulated roof and lower floors, and triple-glazed extension windows. A dual-flow ventilation system enhances energy efficiency, complemented by a central wood stove. Solar panels on the garage roof allow for net-zero electricity consumption. Adjustable shutters on the south-facing façade maximize solar gain during winter while providing sun protection in summer. A skylight above the stairwell enables natural summer ventilation and hot air evacuation.



By retaining the existing structure, externalizing non-essential functions, and integrating modern insulation and renewable energy systems, House Z exemplifies how sustainable renovation can reduce a building’s carbon footprint while creating a comfortable, modern family home. The project demonstrates Benoit Rotteleur Architecte’s commitment to blending contemporary design, functionality, and energy-efficient solutions within the context of existing architecture.

All the photographs are works of Antoine Seguin
Popular Articles
Popular articles from the community
Free Architecture Competitions You Can Enter Right Now
No entry fees, real prizes. Here are the best free architecture competitions open for submissions in 2026.
Solar Steam: A Climate-Responsive Architecture That Redefines the Monument
A climate-responsive memorial architecture that transforms heat, decay, and time into a living system reflecting humanity’s ecological impact.
Alton Cliff House: A Harmonious Retreat by f2a Architecture in Lake Country, Canada
Alton Cliff House blends corten steel, prefabrication, and sustainable design, creating a luxurious, energy-efficient retreat perched on Canadian cliffs.
Similar Reads
You might also enjoy these articles
The Ken Roberts Memorial Delineation Competition (Krob)
As the most senior architectural drawing competition currently in operation anywhere in the world, it draws hundreds of entries each year, awarding the very best submissions in a series of medium-based categories.
Waterfront Redevelopment and Urban Revitalization in Mumbai: Forging a New Dawn for Darukhana
A transformative waterfront redevelopment project reimagining Darukhana’s shipbreaking heritage into an inclusive urban future.
OUT-OF-MAP: A Call for Postcards on Feminist Narratives of Public Space
Rhizoma Design and Research Lab invites artists, designers, architects, researchers, and students to reflect on how feminist perspectives can reshape public space. Selected works will be exhibited in Barcelona, October 2026. Submissions open until 15 April 2026.
Documentation Work on Buddhist Wooden Temple
Architectural syncretism and cultural hybridity: A comparative study of the Buddhist temples in Chattogram Hill tracks
Explore Architecture Competitions
Discover active competitions in this discipline
The International Standard for Design Portfolios
The Global Benchmark for Architecture Dissertation Awards
The Global Benchmark for Graduation Excellence
Challenge to design mud housing for contemporary communities
Comments (0)
Please login or sign up to add comments
No comments yet. Be the first to comment!