IEIE House by MASA Architects: A Spatial Dialogue Between Home and City
IEIE House by MASA Architects redefines residential architecture by integrating urban dynamics within a flexible, adaptive home in Urayasu, Japan.
Blurring the Boundaries Between Private and Public Space
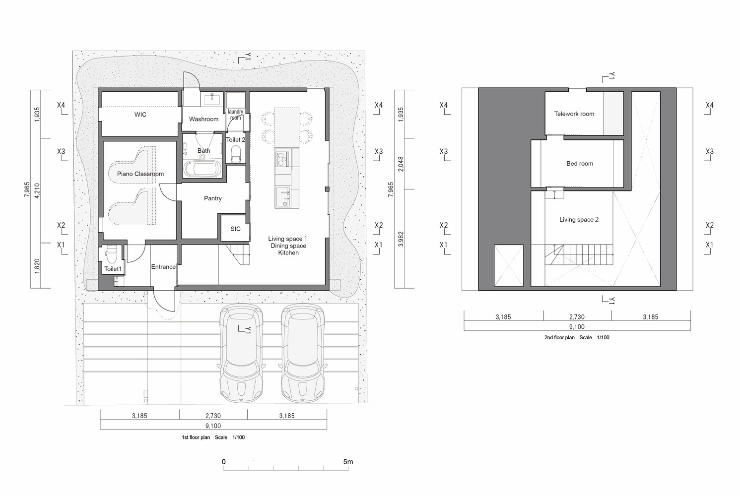
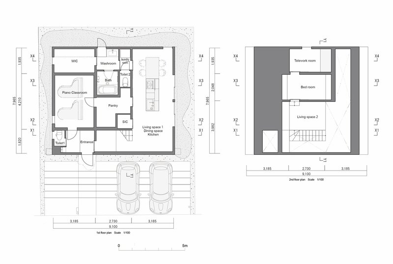
IEIE House by MASA Architects is an innovative residential project in Urayasu, Japan, designed to integrate urban life within a private home. The name "IEIE" derives from the Japanese term for "a row of houses," reflecting the architects' vision of creating a residence that subtly mirrors the complexity of cityscapes. This 93-square-meter house, designed for a couple who host piano lessons, redefines conventional residential architecture by incorporating elements of public space within private living areas.



The house challenges the traditional notion of openness in residential design. Rather than directly engaging with its surrounding neighborhood, it creates an internalized experience of the urban environment, allowing residents to perceive the dynamism of city life within their home.



A House Within a House: A Multi-Layered Architectural Approach
One of the defining aspects of IEIE House by MASA Architects is its composition of multiple house-shaped structures within a larger framework. These nested forms generate a sense of spatial fluctuation, where boundaries between rooms and exterior elements dissolve into an abstract city-like experience.


The design plays with light, shadows, and material reflections, fostering an ambiguous perception of interior and exterior spaces. The horizontal metallic steel cladding enhances this effect, reflecting changing sky conditions throughout the day and subtly shifting the house's appearance over time.


Flexible Spatial Planning for Future Adaptation
The structural framework of the IEIE House is intentionally designed to be adaptable to evolving lifestyles. The house features small, house-shaped frames within a larger, encompassing form, creating a flexible spatial hierarchy. By limiting structural walls to the perimeter and key sections, the design allows future modifications without compromising the integrity of the overall form.


This adaptability ensures that as residents' needs shift, the house can transform while maintaining its architectural essence, offering a timeless and resilient living environment.


The Urban Experience Within a Domestic Setting
IEIE House by MASA Architects draws inspiration from the organic nature of cityscapes—where windows, balconies, colors, and lights come together to create a vibrant, cohesive environment. Rather than emphasizing individual architectural elements, the design fosters a "vague perception" of urban complexity, allowing residents to feel as if they are both inside a home and immersed in a city.



This innovative approach reshapes how we define domesticity, suggesting that homes can be experiential extensions of the urban fabric, rather than isolated entities.



A Vision for Future Residential Design
By challenging traditional home design principles, IEIE House by MASA Architects presents a forward-thinking approach to residential architecture. Its ability to integrate urban dynamics within a private dwelling showcases a new way of living, where architecture not only shelters but also engages with the broader rhythms of city life.



As cities evolve and urban density increases, designs like IEIE House pave the way for flexible, interactive, and contextually aware living spaces, offering a harmonious balance between privacy and communal experience.



All Photographs are works of Masao Nishikawa
Popular Articles
Popular articles from the community
Alton Cliff House: A Harmonious Retreat by f2a Architecture in Lake Country, Canada
Alton Cliff House blends corten steel, prefabrication, and sustainable design, creating a luxurious, energy-efficient retreat perched on Canadian cliffs.
Solar Steam: A Climate-Responsive Architecture That Redefines the Monument
A climate-responsive memorial architecture that transforms heat, decay, and time into a living system reflecting humanity’s ecological impact.
Fifth NRE Jazz Club – De Bever Architecten: Eindhoven’s Revitalized Cultural Hub
Historic gas factory transformed into Fifth NRE Jazz Club blending modern sustainability, jazz culture, dining, and heritage architecture seamlessly.
Atelier Macri Concept Store Interior Design by CASE-REAL
Atelier Macri store features a "ko" counter, walnut wood details, cork displays, blending retail, gallery, and seamless customer experiences.
Similar Reads
You might also enjoy these articles
Bamboo Housing Challenge 2026: Design Affordable, Sustainable Homes Using Bamboo
An international design competition by Bamboo U and IBUKU inviting architects and designers to reimagine affordable housing using bamboo — with the winning design built full-scale in Bali.
Computational Design & Education: Beegraphy Design Awards Introduces 7th Category (Featuring Jiyun's Innovative Approach)
Dive into Beegraphy’s 7th Design Awards category, where computational design meets education to create immersive, interactive learning tools, inspired by Jiyun’s work.
From Parametric Lighting to Urban Furniture: Join the 2nd Workshop in Beegraphy’s Computational Design Series
Dive into Cutting-Edge Design Techniques and Practical Applications with Industry Experts
Explore Architecture Competitions
Discover active competitions in this discipline
The International Standard for Design Portfolios
The Global Benchmark for Architecture Dissertation Awards
The Global Benchmark for Graduation Excellence
Challenge to reimagine the Iron Throne
Comments (0)
Please login or sign up to add comments
No comments yet. Be the first to comment!