Kindergarten Renovation Design: Benfica Kindergarten by DNSJ.arq
Benfica Kindergarten’s redesign by DNSJ.arq merges modern functionality, safety, and monochromatic aesthetics, creating a student-friendly and sustainable environment.
Transforming Educational Spaces Through Architecture
The Benfica Kindergarten renovation, led by DNSJ.arq, showcases a modern approach to redesigning educational spaces. This project not only improves safety and accessibility but also emphasizes functionality, aesthetics, and sustainability, turning a 1995 structure into a contemporary, student-centered environment.




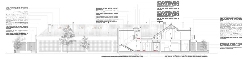
Enhancing Urban Integration with Monochromatic Aesthetics
Unified Visual Identity
To achieve a cohesive design, the architects opted for a monochromatic treatment:
- Visual Simplicity: A single shade was applied across walls, roofs, and openings to create a seamless appearance.
- Urban Contrast: This design choice differentiated the building from the surrounding disorganized urban landscape.
- Enhanced Volume: The unified treatment reinforced the building’s volumetric simplicity, giving it a modern and distinct character.




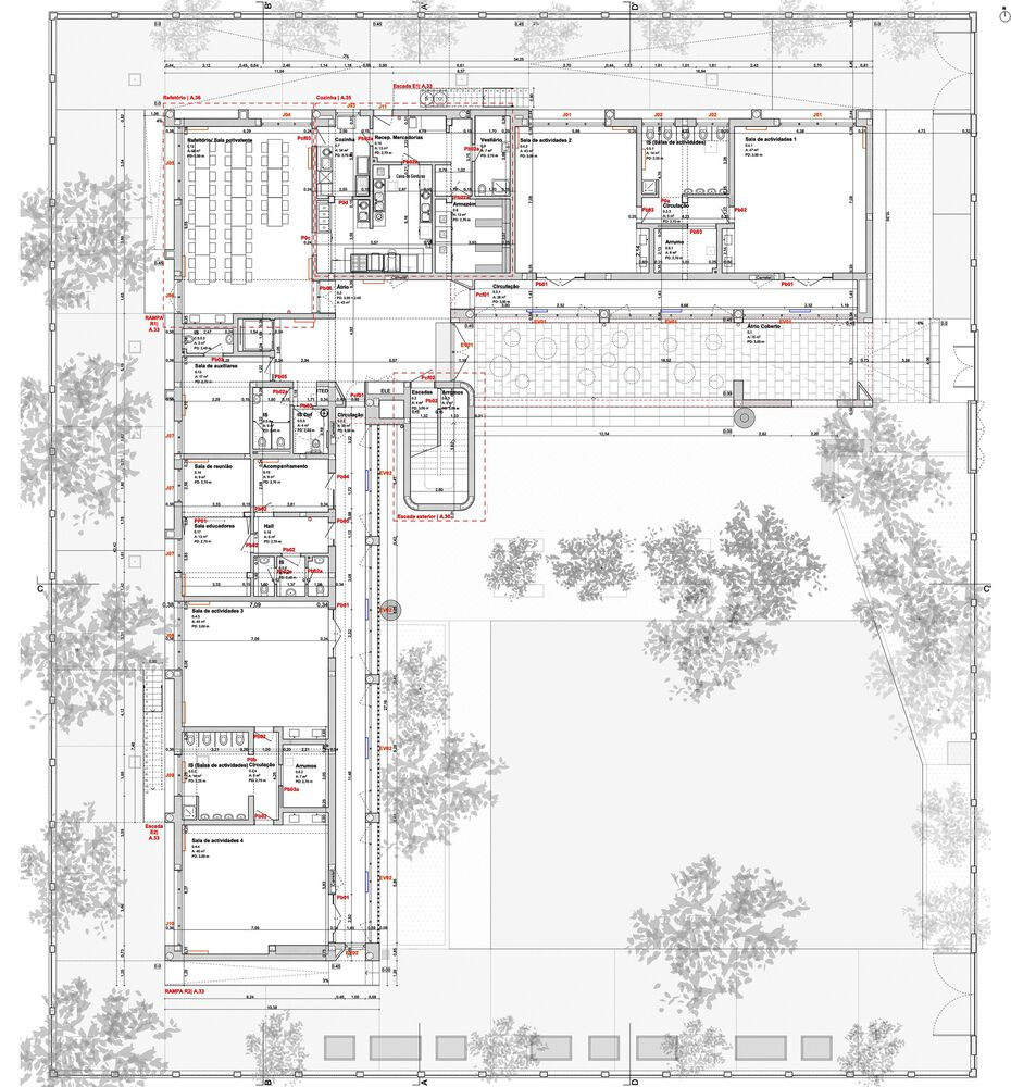
Functional Reorganization for Optimal Use
Key Spatial Changes
The renovation focused on maximizing the potential of the existing space while addressing modern needs:
- External Staircase: A new exterior staircase connects to the atrium, minimizing structural interference and improving circulation.
- Wing Differentiation:Activity rooms and restrooms were relocated to the ends of each wing for easier access.Staff and dining areas were centralized for operational efficiency.
- Activity rooms and restrooms were relocated to the ends of each wing for easier access.
- Staff and dining areas were centralized for operational efficiency.
- Glazed Galleries: The previously open covered galleries on the south and east sides were enclosed with glass, transforming them into comfortable indoor corridors.





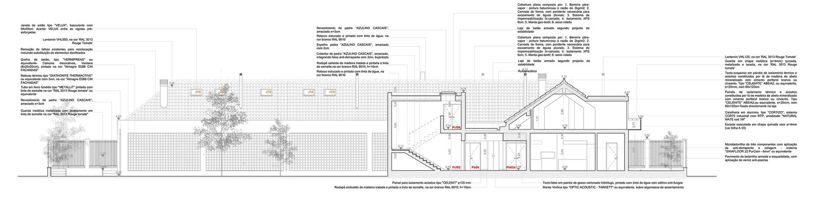
Roof and Play Area Enhancements
Utilizing the Roof
Additional support rooms with restrooms were introduced in the roof’s basement spaces, featuring:
- Adequate natural ventilation and lighting through roof openings.
- Direct outdoor exits for improved functionality.


Upgraded Play Area
A partially covered play area now includes a transparent honeycomb polycarbonate roof, allowing natural light while protecting against weather elements.


Accessibility and Safety Improvements
Modern Compliance
DNSJ.arq ensured the kindergarten adheres to contemporary safety and accessibility standards:
- Universal Design: Pathways and facilities accommodate individuals with reduced mobility.
- Enhanced Safety: Fire safety measures and modern infrastructure upgrades were implemented throughout the building.
- Covered Recreation Zone: A new articulation area serves as a covered outdoor waiting and recreation space, offering easy access to the atrium and internal corridors.






A Blueprint for Modern Kindergarten Renovation Design
The Benfica Kindergarten renovation exemplifies the transformative power of thoughtful design. By blending functionality, aesthetic harmony, and compliance with modern standards, DNSJ.arq has revitalized a dated structure into a vibrant, safe, and accessible learning space that meets the needs of contemporary education.








All Photographs are work of Carolina Delgado
Popular Articles
Popular articles from the community
Split House: A Compact Urban Home Blending Privacy, Light, and Flexible Living in Japan
Compact Japanese home featuring DOMA space, flexible café potential, passive lighting, privacy zoning, and sustainable urban living design.
Fifth NRE Jazz Club – De Bever Architecten: Eindhoven’s Revitalized Cultural Hub
Historic gas factory transformed into Fifth NRE Jazz Club blending modern sustainability, jazz culture, dining, and heritage architecture seamlessly.
Alton Cliff House: A Harmonious Retreat by f2a Architecture in Lake Country, Canada
Alton Cliff House blends corten steel, prefabrication, and sustainable design, creating a luxurious, energy-efficient retreat perched on Canadian cliffs.
Similar Reads
You might also enjoy these articles
The Ken Roberts Memorial Delineation Competition (Krob)
As the most senior architectural drawing competition currently in operation anywhere in the world, it draws hundreds of entries each year, awarding the very best submissions in a series of medium-based categories.
Waterfront Redevelopment and Urban Revitalization in Mumbai: Forging a New Dawn for Darukhana
A transformative waterfront redevelopment project reimagining Darukhana’s shipbreaking heritage into an inclusive urban future.
OUT-OF-MAP: A Call for Postcards on Feminist Narratives of Public Space
Rhizoma Design and Research Lab invites artists, designers, architects, researchers, and students to reflect on how feminist perspectives can reshape public space. Selected works will be exhibited in Barcelona, October 2026. Submissions open until 15 April 2026.
Documentation Work on Buddhist Wooden Temple
Architectural syncretism and cultural hybridity: A comparative study of the Buddhist temples in Chattogram Hill tracks
Explore Architecture Competitions
Discover active competitions in this discipline
The International Standard for Design Portfolios
The Global Benchmark for Architecture Dissertation Awards
The Global Benchmark for Graduation Excellence
Challenge to reimagine the Iron Throne
Comments (0)
Please login or sign up to add comments
No comments yet. Be the first to comment!