KLEE Sapanca House By the | work – A Contemporary Retreat Blending Nature, Privacy & Architectural Harmony
A contemporary Sapanca retreat featuring fragmented volumes, natural materials, and organic layouts designed for privacy, light, landscape integration, and serene short-stay living.
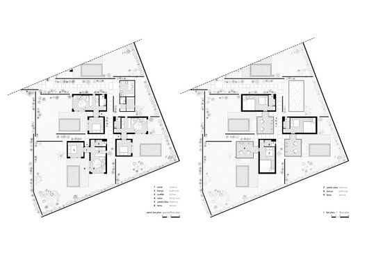
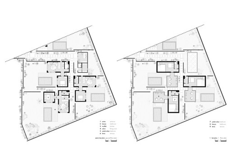
Located at the gateway of Bağdat Street in Sapanca, Türkiye, KLEE Sapanca House by the | work is a thoughtfully designed accommodation complex that redefines short-term living through contemporary architecture, landscape integration, and a sensitive approach to the region’s natural environment. The 350 m² project, completed in 2025, consists of six independent units planned in two phases, each carefully positioned to harmonize with Sapanca’s unique character and scenic lake basin.




A Prime Location Shaped by Nature & Urban Growth
Bağdat Street, situated within the Sapanca Lake basin, has evolved into a vibrant regional artery. Known for its detached residential fabric, lush landscapes, generous street widths, and growing commercial life, the area demonstrates balanced coexistence between nature and urban amenities. The project strengthens this identity by embracing the environment and contributing to the area's hospitality infrastructure.



Function-Driven Design for Modern Accommodation
Designed to meet the rising demand for short-term stays, KLEE Sapanca House is conceived as a permanent architectural development of six separate residential units. Each building is crafted with a unique personality yet forms part of a coherent whole, reflecting an architectural rhythm that responds to the needs of travelers seeking tranquility, comfort, and privacy.
The two-stage development plan ensures flexibility and allows the architecture to grow organically within its surroundings.



Organic Settlement Pattern & Environmental Integration
The design prioritizes the site’s orientation, sunlight, views, and privacy. By rotating, elevating, and angling the units, the architects created an organic, non-repetitive pattern that blends into the existing silhouette. Instead of forming rigid adjoining structures, the architecture introduces:
- Permeable pathways
- Internal streets
- Soft transitions
- Layered landscapes
- Natural corridors
These elements enhance the sense of community while maintaining individual privacy for guests.



Fragmented Massing & Sculptural Silhouette
The project’s architectural identity emerges from the two-storey fragmented masses, each forming an interplay of height, transparency, and enclosure. The units are linked by a central reception block, yet each maintains a distinct form.
Each accommodation unit features three interconnected mass components:
- Ground Floor Block – Housing a kitchen, bathroom, and a gallery-style seating area.
- Mezzanine Level – A private upper sleeping area overlooking double-height space.
- Guest Room Block – A ground-floor room topped with an open terrace, offering expansive outdoor views.
This composition enhances:
- Privacy
- Natural light flow
- Interior–exterior continuity
- Silhouette diversity
The shifting volumes create a dynamic yet harmonious skyline that feels both modern and deeply connected to its natural context.




Design Philosophy: Privacy, Transparency & Contextual Harmony
The architects strike a careful balance between open and enclosed spaces. Thoughtfully placed windows, controlled transparency, and introverted courtyard arrangements allow guests to feel immersed in nature without compromising privacy.
Through its material palette—primarily concrete with warm interior accents—the project achieves a timeless, grounded aesthetic suited to Sapanca’s landscape.
KLEE Sapanca House stands as a refined example of contemporary hospitality architecture, blending natural surroundings with intelligent spatial planning. Through fragmented volumes, lush landscape integration, and context-sensitive design, the project offers visitors an immersive retreat that celebrates both modern living and the beauty of Sapanca.


All the photographs are works of the | work
Popular Articles
Popular articles from the community
The Ken Roberts Memorial Delineation Competition (Krob)
As the most senior architectural drawing competition currently in operation anywhere in the world, it draws hundreds of entries each year, awarding the very best submissions in a series of medium-based categories.
Atelier Macri Concept Store Interior Design by CASE-REAL
Atelier Macri store features a "ko" counter, walnut wood details, cork displays, blending retail, gallery, and seamless customer experiences.
Solar Steam: A Climate-Responsive Architecture That Redefines the Monument
A climate-responsive memorial architecture that transforms heat, decay, and time into a living system reflecting humanity’s ecological impact.
Similar Reads
You might also enjoy these articles
The Ken Roberts Memorial Delineation Competition (Krob)
As the most senior architectural drawing competition currently in operation anywhere in the world, it draws hundreds of entries each year, awarding the very best submissions in a series of medium-based categories.
Waterfront Redevelopment and Urban Revitalization in Mumbai: Forging a New Dawn for Darukhana
A transformative waterfront redevelopment project reimagining Darukhana’s shipbreaking heritage into an inclusive urban future.
OUT-OF-MAP: A Call for Postcards on Feminist Narratives of Public Space
Rhizoma Design and Research Lab invites artists, designers, architects, researchers, and students to reflect on how feminist perspectives can reshape public space. Selected works will be exhibited in Barcelona, October 2026. Submissions open until 15 April 2026.
Documentation Work on Buddhist Wooden Temple
Architectural syncretism and cultural hybridity: A comparative study of the Buddhist temples in Chattogram Hill tracks
Explore Architecture Competitions
Discover active competitions in this discipline
The International Standard for Design Portfolios
The Global Benchmark for Architecture Dissertation Awards
The Global Benchmark for Graduation Excellence
Challenge to reimagine the Iron Throne
Comments (0)
Please login or sign up to add comments
No comments yet. Be the first to comment!