La Roca Student Housing: Redefining Student Housing Architecture in Bordeaux
An innovative student housing project in Bordeaux blending sustainable architecture, raw materiality, and vibrant community spaces.
Introduction to La Roca Student Housing
La Roca Student Housing by A6A is an innovative project reshaping the landscape of student housing architecture in the Bordeaux district of Brazza, France. Completed in 2024, this residence completes a broader urban development that includes a silo parking structure and a “sports cathedral,” helping transform the district into a dynamic, mixed-use environment.





A New Vision for Student Living
The layout of La Roca Student Housing breaks away from the conventional dormitory corridor model, which often lacks natural light and ventilation. Instead, the architects designed an open-air central patio that serves as the heart of the project. Circulation wraps around this landscaped courtyard, creating a continuous flow that fosters connection and engagement among residents. The patio becomes an oasis, offering shaded, green space that benefits both comfort and social interaction.




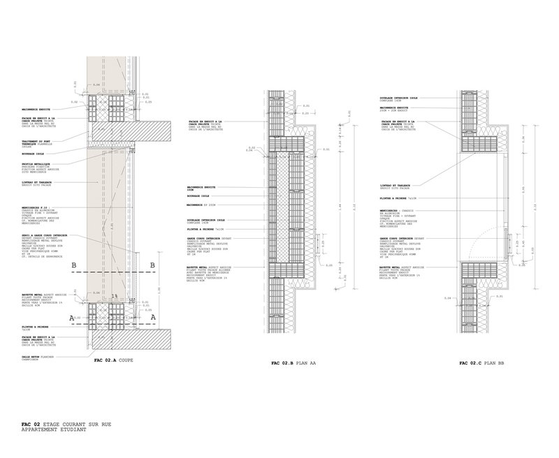
Sustainable and Raw Material Expression
A6A’s approach to student housing architecture emphasizes raw materiality and sustainability. To reduce costs while showcasing craftsmanship, finishing materials were kept minimal. Concrete floors are left raw, lime coatings are simply projected on walls, and electrical networks remain exposed, avoiding the use of false ceilings. This decision not only reveals the honest hand of construction but also enhances durability and simplifies maintenance.




Natural Ventilation and Energy Efficiency
Thanks to the open-air design, most of the common areas do not require heating or cooling, significantly lowering the building’s energy consumption. The deep-set windows on the facades create natural shading, protecting rooms from direct sunlight and contributing to a cooler, more comfortable environment. This thoughtful approach reinforces the building’s energy efficiency and supports sustainable living.




Spatial Qualities and Community Interaction
The ground floor of La Roca is distinguished by its smooth, glazed surfaces that open generously toward the street, housing the reception and communal workspaces. These areas are interconnected through a deep access porch that leads to the central patio, blending public and semi-public zones seamlessly. The design encourages residents to use the stairs and broad landings, which are softly lit by natural daylight. These transitional spaces act as informal meeting points, promoting community, interaction, and shared experiences among students.




Impact on Urban Landscape
La Roca Student Housing is not just a residential building—it plays a vital role in shaping the urban landscape of the Brazza sector. Its slender volumes, rhythmic repetition of windows, and contrast between rough and smooth textures create a striking architectural statement. By prioritizing environmental performance and social integration, the project stands as a benchmark for future student housing architecture, demonstrating how thoughtful design can foster both sustainability and community.



A Model for Future Student Housing Architecture
La Roca Student Housing by A6A exemplifies the potential of student housing architecture to go beyond functional accommodation. It creates an environment that is open, energy-efficient, socially engaging, and aesthetically refined. This project sets a new standard for student residences, showing how architecture can meaningfully contribute to the wellbeing of students and the vitality of the urban fabric.


All the photographs are works of Agnes Clotis
Popular Articles
Popular articles from the community
Inverted Architecture Installation by Studio Link-Arc: Exploring the Intersection of Architecture and Living Organisms
Inverted Architecture Installation by Studio Link-Arc blends mycelium, sustainability, inverted design, ecological cycles, and urban adaptive architecture in Shenzhen.
Alton Cliff House: A Harmonious Retreat by f2a Architecture in Lake Country, Canada
Alton Cliff House blends corten steel, prefabrication, and sustainable design, creating a luxurious, energy-efficient retreat perched on Canadian cliffs.
The Ken Roberts Memorial Delineation Competition (Krob)
As the most senior architectural drawing competition currently in operation anywhere in the world, it draws hundreds of entries each year, awarding the very best submissions in a series of medium-based categories.
Split House: A Compact Urban Home Blending Privacy, Light, and Flexible Living in Japan
Compact Japanese home featuring DOMA space, flexible café potential, passive lighting, privacy zoning, and sustainable urban living design.
Similar Reads
You might also enjoy these articles
The Ken Roberts Memorial Delineation Competition (Krob)
As the most senior architectural drawing competition currently in operation anywhere in the world, it draws hundreds of entries each year, awarding the very best submissions in a series of medium-based categories.
Waterfront Redevelopment and Urban Revitalization in Mumbai: Forging a New Dawn for Darukhana
A transformative waterfront redevelopment project reimagining Darukhana’s shipbreaking heritage into an inclusive urban future.
OUT-OF-MAP: A Call for Postcards on Feminist Narratives of Public Space
Rhizoma Design and Research Lab invites artists, designers, architects, researchers, and students to reflect on how feminist perspectives can reshape public space. Selected works will be exhibited in Barcelona, October 2026. Submissions open until 15 April 2026.
Documentation Work on Buddhist Wooden Temple
Architectural syncretism and cultural hybridity: A comparative study of the Buddhist temples in Chattogram Hill tracks
Explore Architecture Competitions
Discover active competitions in this discipline
The International Standard for Design Portfolios
The Global Benchmark for Architecture Dissertation Awards
The Global Benchmark for Graduation Excellence
Challenge to reimagine the Iron Throne
Comments (0)
Please login or sign up to add comments
No comments yet. Be the first to comment!